·Î±×ÀÎ
22
´Ù¼¼´ë(ºô¶ó)
¼­¿ï³²ºÎÁö¹æ¹ý¿ø
 °¨Á¤°¡251,000,000 ¿ø
 ÃÖÀú°¡(64%) 160,640,000 ¿ø
 º¸Áõ±Ý(20%) 32,128,000 ¿ø
 Ã»±¸¾×340,000,000 ¿ø
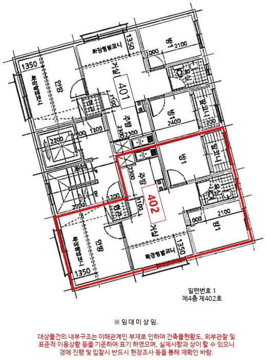
¼­¿ïƯº°½Ã °­¼­±¸ È­°î·Î68±æ 136-38, 4Ãþ 402È£ (µîÃ̵¿,À¯¸²ÆÄÅ©ºô)
¼­¿ïƯº°½Ã °­¼­±¸ µîÃ̵¿ 636-54
»ç°Ç¹øÈ£ 2024Ÿ°æ148229
°æ¸ÅÁ¾·ùºÎµ¿»ê°­Á¦°æ¸Å
¸Å°¢´ë»óÅäÁö ¹× °Ç¹°Àϰý ¸Å°¢
¸Å°¢±âÀÏ    2025.12.16(È­) 10:00 ÀÔÂû 29ÀÏÀü    
ÅäÁö¸éÀû20.23§³(6.12 Æò)
°Ç¹°¸éÀû39.90§³(12.07 Æò)
乫/¼ÒÀ¯ÀÚ¹éOO / ¹éOO
ä±ÇÀÚ¹ÚOO
ÆäÀ̽ººÏ Æ®À§ÅÍ ±¸±Û+
īī¿À½ºÅ丮
īī¿ÀÅå sms¹®ÀÚº¸³»±â
 

±âÀϳ»¿ª

°æ°ú ³¯Â¥ Àú°¨ ÃÖÀú°¡ °á°ú
Á¢¼öÀÏ 2024-12-06 °æ¸ÅÁ¢¼ö
~10ÀÏ 
2024-12-16 °æ¸Å°³½Ã°áÁ¤
~102ÀÏ 
2025-03-18 ¹è´ç¿ä±¸Á¾±âÀÏ
~207ÀÏ 
2025-07-01 100%
251,000,000
¸Å°¢
³«Âû°¡ 340,000,000 (135%)
~255ÀÏ 
2025-08-18 ¹Ì³³
~293ÀÏ 
2025-09-25 100%
251,000,000
À¯Âû
~334ÀÏ 
2025-11-05 80%
200,800,000
À¯Âû
~375ÀÏ 
2025-12-16 64%
160,640,000
ÁøÇà
¹°°Ç¸í¼¼¼­ ÇöȲÁ¶»ç¼­ ¹®°ÇÁ¢¼ö ¼Û´Þ³»¿ª

°¨Á¤Æò°¡ÇöȲ

¸ñ·Ï ÁÖ¼Ò ±¸Á¶/¿ëµµ/´ëÁö±Ç ¸éÀû ºñ°í
´ëÁö±Ç
µîÃ̵¿ 636-54 206.4ºÐÀÇ 20.23 20.23 §³
(6.12Æò)
°Ç¹°
µîÃ̵¿ 636-54 4Ãþ 402È£ ö±ÙÄÜÅ©¸®Æ®±¸Á¶ 39.9 §³
(12.07Æò)
1) À§Ä¡/µµ½ÃÁö¿ª/Áذø¾÷Áö¿ª/¹ö½ºÁ¤·ùÀå/ÁöÇÏö/ö±ÙÄÜÅ©¸®Æ®±¸Á¶/Æò½º¶óºêÁöºØ ´õº¸±â
°¨Á¤Æò°¡ ¿äÇ×Ç¥
1)À§Ä¡ ¹× ÁÖÀ§È¯°æ
´ë»ó¹°°ÇÀº ¼­¿ïƯº°½Ã °­¼­±¸ µîÃ̵¿ ¼ÒÀç "¹é¼®ÃʵîÇб³" ºÏ¼­Ãø Àαٿ¡ À§Ä¡Çϸç,
ÁÖÀ§´Â ´Üµ¶ÁÖÅÃ, ´Ù¼¼´ëÁÖÅà ¹× ±Ù¸°»ýȰ½Ã¼³ µîÀÌ ¼ÒÀçÇÏ´Â µî ÁÖÀ§È¯°æÀº º¸ÅëÀÓ.
2)±³Åë»óȲ
´ë»ó¹°°Ç±îÁö Â÷·®ÀÇ ÁøÃâÀÔ °¡´ÉÇϸç Àαٿ¡ ³ë¼± ¹ö½ºÁ¤·ùÀå ¹× ÁöÇÏö¿ª µîÀÌ ¼ÒÀçÇÏ´Â
µî ±³Åë»óȲÀº º¸ÅëÀÓ.
3)°Ç¹°ÀÇ ±¸Á¶
ö±ÙÄÜÅ©¸®Æ®±¸Á¶ (ö±Ù)ÄÜÅ©¸®Æ® Æò½º¶óºêÁöºØ 6Ãþ °Ç¹° ³» Á¦4Ãþ Á¦402È£·Î¼­,
¿Ü º® : ¼®ÀçºÙÀÓ ¹× º®µ¹½×±â ¸¶°¨ µî,
â È£ : »õ½Ã âȣ µîÀÓ.
4)ÀÌ¿ë»óÅÂ
ÀϷùøÈ£ 1Àº "´Ù¼¼´ëÁÖÅá¯À¸·Î ÀÌ¿ëÁßÀÓ.
<ÈÄ÷ "°Ç¹°ÀÌ¿ë»óȲ ¹× ÀÓ´ë»óȲ" ÂüÁ¶>
5)¼³ºñ³»¿ª
Åë»óÀÇ ±Þ¡¤¹è¼ö¼³ºñ ¹× À§»ý¼³ºñ, ³­¹æ¼³ºñ, ½Â°­±â¼³ºñ µîÀÌ µÇ¾îÀÖÀ½.



6)ÅäÁöÀÇ Çü»ó ¹× ÀÌ¿ë»óÅÂ
ÀÎÁ¢ÇÊÁö ´ëºñ µî°íÆòźÇÑ 2ÇÊ ÀÏ´ÜÀÇ ¼¼ÀåÇü ÅäÁö·Î¼­, °ÇºÎÁö·Î ÀÌ¿ëÁßÀÓ.
7)ÀÎÁ¢ µµ·Î»óŵî
´ë»ó¹°°ÇÀÇ µ¿ÃøÀ¸·Î ³ëÆø ¾à 4¹ÌÅÍÀÇ µµ·Î¿¡ Á¢ÇÔ.
8)ÅäÁöÀÌ¿ë°èȹ ¹× Á¦ÇÑ»óÅÂ
µµ½ÃÁö¿ª, Áذø¾÷Áö¿ª, Áß¿ä½Ã¼³¹°º¸È£Áö±¸(°øÇ×), °¡Ãà»çÀ°Á¦Çѱ¸¿ª(Áö¿ª°æÁ¦°ú È®ÀÎ ¿ä¸Á)
<°¡ÃàºÐ´¢ÀÇ °ü¸® ¹× À̿뿡 °üÇÑ ¹ý·ü>, °¡·Î±¸¿ªº° ÃÖ°í³ôÀÌ Á¦ÇÑÁö¿ª(2015-08-27)<°ÇÃà¹ý
>, ¿øÃßÇ¥¸é±¸¿ª(¿øÃßÇ¥¸é)<°øÇ׽ü³¹ý>, »ó´ëº¸È£±¸¿ª(°­¼­±³À°Áö¿øÃ»¿¡ ¹Ýµå½Ã È®ÀÎ ¿ä¸Á)
<±³À°È¯°æ º¸È£¿¡ °üÇÑ ¹ý·ü>, ´ë°ø¹æ¾îÇùÁ¶±¸¿ª(À§Å¹°íµµ:77-257m)<±º»ç±âÁö ¹× ±º»ç½Ã¼³
º¸È£¹ý>, °ú¹Ð¾ïÁ¦±Ç¿ª<¼öµµ±ÇÁ¤ºñ°èȹ¹ý>, (ÇѰ­)Æó±â¹°¸Å¸³½Ã¼³ ¼³Ä¡Á¦ÇÑÁö¿ª<ÇѰ­¼ö°è
»ó¼ö¿ø¼öÁú°³¼± ¹× ÁÖ¹ÎÁö¿ø µî¿¡ °üÇÑ ¹ý·ü>.
9)°øºÎ¿ÍÀÇ Â÷ÀÌ
¾øÀ½.
10)±âŸÂü°í»çÇ×(ÀÓ´ë°ü·Ê ¹× ±âŸ)
ÀÓ´ë°ü°è´Â ¹Ì»óÀ̸ç, ±âŸ»çÇ× ¾øÀ½.
Âü°í
»çÇ×
Ưº°¸Å°¢Á¶°Ç ¸Å¼ö½Åûº¸Áõ±Ý ÃÖÀú¸Å°¢°¡°ÝÀÇ 20%

°ÇÃ๰ÇöȲ

¼ÒÀçÁö ¼­¿ïƯº°½Ã °­¼­±¸ µîÃ̵¿ 636-54¹øÁö
´ëÁö¸éÀû 206.4§³
(62.55Æò)
¿¬¸éÀû 514.64§³
(155.95Æò)
°ÇÃà¸éÀû 123.48§³
(37.42Æò)
¿ëÀû·ü»êÁ¤
¿¬¸éÀû
514.64§³
(155.95Æò)
°ÇÆóÀ² 59.83% ¿ëÀû·ü 249.34%
Áö»óÃþ¼ö 6Ãþ ÁöÇÏÃþ¼ö  
ÁÖ¿ëµµ °øµ¿ÁÖÅà ±¸Á¶ ö±ÙÄÜÅ©¸®Æ®±¸Á¶
Âø°øÀÏÀÚ 2010.06.25 »ç¿ë½ÂÀÎÀÏÀÚ 2010.09.09
°ÇÃ๰Ãþº°ÇöȲ [º¸±â]


±¹ÅäºÎ½Ç°Å·¡°¡ ¼­¿ïƯº°½Ã °­¼­±¸ µîÃ̵¿

¡Ü ¸Å¸Å

¸éÀû(§³), ±Ý¾×(¸¸¿ø)

¡Ü Àü¼¼

¸éÀû(§³), ±Ý¾×(¸¸¿ø)

°è¾àÀϰǹ°¸íĪÃþ¿¬¸éÀû´ëÁö±Ý¾×°ÇÃà
24.03.30½Å¿ì½ºÅ¸Èú½º235.8730.4233,0002016
24.03.28±îÄ¡¾ÆÆ®¸Ç¼Ç176.974738,0001997
24.03.26Æ®¶ó¿ò351.0230.7341,9002016
24.03.25³ª»ê¸Ç¼Ç(5Â÷)349.0427.7516,4002002
24.03.23ÇÑ¿ïÆÓ¸®½º726.7312.5625,8002017
¢Ñ ´õº¸±â

µî±âºÎµîº» ¿ä¾à(°Ç¹°)

  Á¢¼öÀÏÀÚ µî±â¸ñÀû/±Ç¸®ÀÚ ±Ç¸®±Ý¾× ±âÁØ
1 2021³â4¿ù30ÀÏ
¼ÒÀ¯±Ç
¹éOO
¼Ò¸ê
2 2021³â8¿ù12ÀÏ
¾Ð·ù
±¹OOOO
¼Ò¸ê±âÁØ
3 2024³â12¿ù16ÀÏ
°­Á¦°æ¸Å
¹ÚOO
¼Ò¸ê

ÀÓÂ÷ÀÎÇöȲ (¹è´ç¿ä±¸Á¾±âÀÏ: 2025-03-18)

ÀÓÂ÷ÀÎ ¿ëµµ/Á¡À¯ º¸Áõ±Ý/¿ù¼¼ ´ëÇ×·Â
ÀüÀÔÀÏ/È®Á¤ÀÏ ¹è´ç¿ä±¸ ºñ°í
DOOOOOOOOOOOOOOOOOOOOOO ¹Ì»ó ¹Ì»ó
[¿ù]¹Ì»ó
X
2024.04.10.
¹Ì»ó
¹Ì»ó
¹ÚOO 402È£ 340,000,000
O
2021.05.04.
2021.03.11.
2024.12.11. 2021.04.30.~2023.04.30.

¿©ÀÇÁÖ°æ¸Å Á¶¾ð ÇÑ ¸¶µð


ÁÖÀÇ»çÇ× (ÃÖ¼±¼øÀ§ ¼³Á¤ÀÏ: 2021. 8. 12. ¾Ð·ù ¼³Á¤)

¸Å°¢À¸·Î ¼Ò¸êµÇÁö ¾Ê´Â µî±âºÎ±Ç¸®:
¸Å°¢À¸·Î ¼³Á¤µÈ °ÍÀ¸·Î º¸´Â Áö»ó±Ç:
Ưº°¸Å°¢Á¶°Ç ¸Å¼ö½Åûº¸Áõ±Ý ÃÖÀú¸Å°¢°¡°ÝÀÇ 20%
¡Ø¹Ì³³°ü¸®ºñ(°ø¿ë) Àμö¿©ºÎ¸¦ ÀÔÂû Àü¿¡ È®ÀÎÇϽñ⠹ٶø´Ï´Ù

 

Áö¿ªºÐ¼®

ÁöÇÏö¸í Á÷¼±°Å¸®

Çб³¸í ÀüÈ­¹øÈ£ ÁÖ¼Ò Á÷¼±°Å¸®

¹ý¿ø

¼­¿ï³²ºÎÁö¹æ¹ý¿ø (080-88)¼­¿ïƯº°½Ã ¾çõ±¸ ½Å¿ù·Î 386(½ÅÁ¤µ¿)
´ëÇ¥ : 02)2192-1114
°üÇÒÁö¿ª : ¿µµîÆ÷±¸, °­¼­±¸, ¾çõ±¸, ±¸·Î±¸, ±Ýõ±¸

µî±â¼Ò ¼­¿ï³²ºÎÁö¹æ¹ý¿ø º»¿ø µî±â±¹ (´ëÇ¥:1544-0773, ÆÑ½º:(02)2629-7307, ¼­¿ïƯº°½Ã ¿µµîÆ÷±¸ °æÀηΠ772 (¹®·¡µ¿ 1°¡))
¼¼¹«¼­ °­¼­¼¼¹«¼­ (´ëÇ¥:02-2630-42, ÆÑ½º:02-2679-8777, ¼­¿ïƯº°½Ã °­¼­±¸ ¸¶°î¼­1·Î 60 (¸¶°îµ¿))

Àαٳ«ÂûÅë°è

±â°£ ¸Å°¢°Ç¼ö Æò±Õ°¨Á¤°¡
Æò±Õ¸Å°¢°¡
¸Å°¢°¡À²
Æò±ÕÀ¯Âû¼ö
3°³¿ù 253°Ç 259,659,829¿ø
200,751,478¿ø
78%
2.2ȸ
6°³¿ù 471°Ç 258,849,247¿ø
201,175,457¿ø
79%
2.2ȸ
12°³¿ù 1,012°Ç 257,933,936¿ø
201,968,636¿ø
79%
2.3ȸ


º» °æ¸ÅÁ¤º¸´Â ¹ý¿øÀÚ·á¿Í ÀÏÄ¡Çϵµ·Ï ÇÏ¿´À¸³ª ±Ç¸®»çÇ׺¯µ¿, ÀÔ·ÂÂø¿À µîÀÇ ¿øÀÎÀ¸·Î »ç½Ç°ú ´Ù¸¦ ¼ö ÀÖ½À´Ï´Ù. ÀÌ¿ë¾à°ü¿¡ ÀǰЏéÃ¥Á¶°ÇÀ¸·Î Á¦°øµÊÀ» ¾Ë¸®¸ç, °æ¸ÅÀÔÂû½Ã ¹Ýµå½Ã °ü·Ã °øºÎ¸¦ ÀçÈ®ÀÎÇϽñ⠹ٶø´Ï´Ù. º¸´Ù Æí¸®ÇÑ °æ¸ÅÁ¤º¸ Á¦°øÀ» À§ÇØ Áö¼ÓÀûÀ¸·Î °³¼±ÇϰڽÀ´Ï´Ù. ÀÌ¿ëÇØ Áּż­ °¨»çÇÕ´Ï´Ù.