·Î±×ÀÎ
155
´Ù¼¼´ë(ºô¶ó)
¼­¿ïÁß¾ÓÁö¹æ¹ý¿ø
 °¨Á¤°¡286,000,000 ¿ø
 ÃÖÀú°¡(41%) 117,145,000 ¿ø
 º¸Áõ±Ý(10%) 11,714,500 ¿ø
 Ã»±¸¾×352,933,869 ¿ø
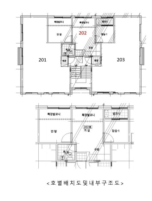
¼­¿ïƯº°½Ã µ¿ÀÛ±¸ ¿©ÀÇ´ë¹æ·Î26±æ 50, 2Ãþ202È£ (´ë¹æµ¿,¼ºÁø¸®Ä¡ºô)
¼­¿ïƯº°½Ã µ¿ÀÛ±¸ ´ë¹æµ¿ 411-23
»ç°Ç¹øÈ£ 2024Ÿ°æ122962
°æ¸ÅÁ¾·ùºÎµ¿»ê°­Á¦°æ¸Å
¸Å°¢´ë»óÅäÁö ¹× °Ç¹°Àϰý ¸Å°¢
¸Å°¢±âÀÏ    2026.01.08(¸ñ) 10:00 ÀÔÂû 8ÀÏÀü    
ÅäÁö¸éÀû17.94§³(5.43 Æò)
°Ç¹°¸éÀû26.94§³(8.15 Æò)
乫/¼ÒÀ¯ÀÚÀÌOO / ÀÌOO
ä±ÇÀÚÁÖOOOOOOO
ÆäÀ̽ººÏ Æ®À§ÅÍ ±¸±Û+
īī¿À½ºÅ丮
īī¿ÀÅå sms¹®ÀÚº¸³»±â
 

±âÀϳ»¿ª

°æ°ú ³¯Â¥ Àú°¨ ÃÖÀú°¡ °á°ú
Á¢¼öÀÏ 2024-11-14 °æ¸ÅÁ¢¼ö
~1ÀÏ 
2024-11-15 °æ¸Å°³½Ã°áÁ¤
~78ÀÏ 
2025-01-31 ¹è´ç¿ä±¸Á¾±âÀÏ
~217ÀÏ 
2025-06-19 100%
286,000,000
À¯Âû
~252ÀÏ 
2025-07-24 80%
228,800,000
À¯Âû
~287ÀÏ 
2025-08-28 64%
183,040,000
À¯Âû
~321ÀÏ 
2025-10-01 51%
146,432,000
À¯Âû
~420ÀÏ 
2026-01-08 41%
117,145,000
ÁøÇà
¹°°Ç¸í¼¼¼­ ÇöȲÁ¶»ç¼­ ¹®°ÇÁ¢¼ö ¼Û´Þ³»¿ª

°¨Á¤Æò°¡ÇöȲ

¸ñ·Ï ÁÖ¼Ò ±¸Á¶/¿ëµµ/´ëÁö±Ç ¸éÀû ºñ°í
´ëÁö±Ç
´ë¹æµ¿ 411-23 250.3ºÐÀÇ 17.94 17.94 §³
(5.43Æò)
°Ç¹°
´ë¹æµ¿ 411-23 2Ãþ202È£ ö±ÙÄÜÅ©¸®Æ®±¸Á¶ 26.94 §³
(8.15Æò)
1) À§Ä¡/Á¦2Á¾ÀϹÝÁÖ°ÅÁö¿ª/Áö±¸´ÜÀ§°èȹ±¸¿ª/³ë¼±¹ö½ºÁ¤·ùÀå/ö±ÙÄÜÅ©¸®Æ®±¸Á¶ ´õº¸±â
°¨Á¤Æò°¡ ¿äÇ×Ç¥
1)À§Ä¡ ¹× ÁÖÀ§È¯°æ
º»°ÇÀº ¼­¿ïƯº°½Ã µ¿ÀÛ±¸ ´ë¹æµ¿ ¼ÒÀç "¼­¿ï°ø¾÷°íµîÇб³" ³²Ãø Àαٿ¡ À§Ä¡ÇÑ ºÎµ¿»êÀ¸·Î¼­ ÁÖÀ§·Î´Â ´Ù¼¼´ëÁÖÅÃ, µµ½ÃÇü»ýȰÁÖÅÃ, ÁÖ»ó¿ë°Ç¹°, ±Ù¸°»ýȰ½Ã¼³ µîÀÌ È¥ÀçÇϸç Á¦¹Ý ÁÖÀ§È¯°æÀº º¸ÅëÀÓ.
2)±³Åë»óȲ
º»°Ç±îÁö Â÷·® ÁøÀÔÀÌ °¡´ÉÇϸç, Àαٿ¡ ³ë¼±¹ö½ºÁ¤·ùÀå ¹× º¸¶ó¸Å¿ª(7È£¼±, ½Å¸²¼±)ÀÌ ¼ÒÀçÇÏ´Â µî Á¦¹Ý ±³Åë»óȲÀº º¸ÅëÀÓ.
3)°Ç¹°ÀÇ ±¸Á¶
ö±ÙÄÜÅ©¸®Æ®±¸Á¶ (ö±Ù)ÄÜÅ©¸®Æ®ÁöºØ 5Ãþ ³» Á¦2Ãþ Á¦202È£·Î¼­,
¿Üº®: ¼®ÀçºÙÀÓ ¸¶°¨ µî,
âȣ: »õ½Ãâȣ ¸¶°¨ µîÀÓ.
4)ÀÌ¿ë»óÅÂ
´Ù¼¼´ëÁÖÅÃÀ¸·Î ÀÌ¿ë ÁßÀÓ.
5)¼³ºñ³»¿ª
À§»ý ¹× ±Þ¹è¼ö¼³ºñ, ³­¹æ¼³ºñ µîÀÌ µÇ¾îÀÖÀ½.
6)ÅäÁöÀÇ Çü»ó ¹× ÀÌ¿ë»óÅÂ
º»°ÇÀº ÀÎÁ¢Áö´ëºñ µî°íÆòźÇÑ 2ÇÊÁö ÀÏ´ÜÀÇ ¼¼ÀåÇüÀÇ ÅäÁö·Î ´Ù¼¼´ëÁÖÅà °ÇºÎÁö·Î ÀÌ¿ë ÁßÀÓ.
7)ÀÎÁ¢ µµ·Î»óŵî
º»°Ç ºÏÃøÀ¸·Î ³ëÆø ¾à 8¹ÌÅÍ, µ¿ÃøÀ¸·Î ³ëÆø ¾à 2-3¹ÌÅÍÀÇ µµ·Î¿Í Á¢ÇÔ.
8)ÅäÁöÀÌ¿ë°èȹ ¹× Á¦ÇÑ»óÅÂ
ÀϷùøÈ£(1,2) : Á¦2Á¾ÀϹÝÁÖ°ÅÁö¿ª, Áö±¸´ÜÀ§°èȹ±¸¿ª(2024-05-23) °¡Ãà»çÀ°Á¦Çѱ¸¿ª<°¡ÃàºÐ´¢ÀÇ °ü¸® ¹× À̿뿡 °üÇÑ ¹ý·ü>, ±³À°È¯°æº¸È£±¸¿ª(Çб³È¯°æÀ§»ýÁ¤È­±¸¿ª¿¡ ´ëÇÑ ÃÖÁ¾È®ÀÎÀº °üÇÒ±³À°Ã»¿¡ ¹Ýµå½Ã È®ÀÎÀÌ ÇÊ¿äÇÑ »çÇ×ÀÓ)<±³À°È¯°æ º¸È£¿¡ °üÇÑ ¹ý·ü>, ´ë°ø¹æ¾îÇùÁ¶±¸¿ª(À§Å¹°íµµ:77-257m)<±º»ç±âÁö ¹× ±º»ç½Ã¼³ º¸È£¹ý>, °ú¹Ð¾ïÁ¦±Ç¿ª<¼öµµ±ÇÁ¤ºñ°èȹ¹ý>
9)°øºÎ¿ÍÀÇ Â÷ÀÌ
-
10)±âŸÂü°í»çÇ×(ÀÓ´ë°ü·Ê ¹× ±âŸ)
ÀÓ´ë¹Ì»óÀÓ.

°ÇÃ๰ÇöȲ

¼ÒÀçÁö ¼­¿ïƯº°½Ã µ¿ÀÛ±¸ ´ë¹æµ¿ 411-23¹øÁö
´ëÁö¸éÀû 237.8§³
(72.06Æò)
¿¬¸éÀû 474.82§³
(143.88Æò)
°ÇÃà¸éÀû 142.38§³
(43.15Æò)
¿ëÀû·ü»êÁ¤
¿¬¸éÀû
474.82§³
(143.88Æò)
°ÇÆóÀ² 59.87% ¿ëÀû·ü 199.67%
Áö»óÃþ¼ö 5Ãþ ÁöÇÏÃþ¼ö  
ÁÖ¿ëµµ °øµ¿ÁÖÅà ±¸Á¶ ö±ÙÄÜÅ©¸®Æ®±¸Á¶
Âø°øÀÏÀÚ 2015.05.21 »ç¿ë½ÂÀÎÀÏÀÚ 2015.10.02
°ÇÃ๰Ãþº°ÇöȲ [º¸±â]


±¹ÅäºÎ½Ç°Å·¡°¡ ¼­¿ïƯº°½Ã µ¿ÀÛ±¸ ´ë¹æµ¿

¡Ü ¸Å¸Å

¸éÀû(§³), ±Ý¾×(¸¸¿ø)

¡Ü Àü¼¼

¸éÀû(§³), ±Ý¾×(¸¸¿ø)

°è¾àÀϰǹ°¸íĪÃþ¿¬¸éÀû´ëÁö±Ý¾×°ÇÃà
24.03.29żºÆÓ¸®½º423.4515.0922,3002016
24.03.25»ï¼º½ÃƼºô573.4440.3646,5002003
24.03.22±×¸°ºô¶ó°¡µ¿-140.9826.63339,0001986
24.03.14´ë¸íºô¶ó³ª240.5928.8264,8001991
24.03.14ÂüÁ¸ºô¸®Áö325.8114.373927,0002013
¢Ñ ´õº¸±â

µî±âºÎµîº» ¿ä¾à(°Ç¹°)

  Á¢¼öÀÏÀÚ µî±â¸ñÀû/±Ç¸®ÀÚ ±Ç¸®±Ý¾× ±âÁØ
1 2022³â2¿ù8ÀÏ
¼ÒÀ¯±Ç
ÀÌOO
¼Ò¸ê
2 2023³â12¿ù1ÀÏ
ÀÓÂ÷±Ç¼³Á¤
±èOO
334,000,000 Àμö
3 2024³â1¿ù30ÀÏ
¾Ð·ù
¼öOO
¼Ò¸ê±âÁØ
4 2024³â3¿ù13ÀÏ
°¡¾Ð·ù
ȕOOOO
14,119,985 ¼Ò¸ê
5 2024³â3¿ù21ÀÏ
°¡¾Ð·ù
½ÅOOOO
90,000,000 ¼Ò¸ê
6 2024³â7¿ù19ÀÏ
¾Ð·ù
±¹
¼Ò¸ê
7 2024³â9¿ù3ÀÏ
°¡¾Ð·ù
¼­OOOO
98,004,810 ¼Ò¸ê
8 2024³â11¿ù15ÀÏ
°­Á¦°æ¸Å
ÁÖOOOO
¼Ò¸ê

ÀÓÂ÷ÀÎÇöȲ (¹è´ç¿ä±¸Á¾±âÀÏ: 2025-01-31)

ÀÓÂ÷ÀÎ ¿ëµµ/Á¡À¯ º¸Áõ±Ý/¿ù¼¼ ´ëÇ×·Â
ÀüÀÔÀÏ/È®Á¤ÀÏ ¹è´ç¿ä±¸ ºñ°í
±èOO 202È£ 334,000,000
O
2021.09.30.
2021.09.23.
2021.09.30.
ºñ°í
(¸Å°¢¹°°Ç
¸í¼¼¼­)
±èÇöÈñ:ÁÖÅõµ½Ãº¸Áõ°ø»ç°¡ ÀÓÂ÷±ÇÀÚ ±èÇöÈñÀÇ ÀÓÂ÷º¸Áõ±Ý¹Ýȯä±ÇÀÇ ¾ç¼öÀÎÀÓ(´ëÇ×·Â ¹× ¿ì¼±º¯Á¦±Ç ½Â°è)

¿©ÀÇÁÖ°æ¸Å Á¶¾ð ÇÑ ¸¶µð

¼±¼øÀ§ ÀÓÂ÷±Çµî±â°¡ µÇ¾î ÀÖ½À´Ï´Ù
´ëÇ×·ÂÀÌ ÀÖ´Â ¼±¼øÀ§ ÀÓÂ÷±Çµî±â ±Ç¸®ÀÚ°¡ ¹è´çÀ» Àü¾× ¹ÞÁö ¸øÇÒ °æ¿ì ³«ÂûÀÚ°¡ ÀÜ¿© º¸Áõ±ÝÀ» ÀμöÇØ¾ßÇÏ´Â °æ¿ìµµ ÀÖ½À´Ï´Ù.

ÁÖÀÇ»çÇ× (ÃÖ¼±¼øÀ§ ¼³Á¤ÀÏ: 2024.1.30.¾Ð·ù ¼³Á¤)

¸Å°¢À¸·Î ¼Ò¸êµÇÁö ¾Ê´Â µî±âºÎ±Ç¸®: ¸Å¼öÀο¡°Ô ´ëÇ×ÇÒ ¼ö ÀÖ´Â À»±¸ 5¹ø ÀÓÂ÷±Çµî±â(ÀÓ´ëÂ÷º¸Áõ±Ý 334,000,000¿ø, ÀüÀÔÀÏÀÚ 2021.09.30. , È®Á¤ÀÏÀÚ 2021.09.23.)°¡ ÀÖÀ¸¹Ç·Î ¹è´ç¿¡¼­ Àü¾× º¯Á¦µÇÁö ¾Æ´ÏÇϸé Àܾ×À» ¸Å¼öÀÎÀÌ ÀμöÇÔ(¶Ç´Â Àܾ×Àº ¸Å¼öÀο¡°Ô ÀμöµÉ ¼ö ÀÖÀ½)
¸Å°¢À¸·Î ¼³Á¤µÈ °ÍÀ¸·Î º¸´Â Áö»ó±Ç:
¡Ø¹Ì³³°ü¸®ºñ(°ø¿ë) Àμö¿©ºÎ¸¦ ÀÔÂû Àü¿¡ È®ÀÎÇϽñ⠹ٶø´Ï´Ù

 

Áö¿ªºÐ¼®

ÁöÇÏö¸í Á÷¼±°Å¸®

Çб³¸í ÀüÈ­¹øÈ£ ÁÖ¼Ò Á÷¼±°Å¸®

¹ý¿ø

¼­¿ïÁß¾ÓÁö¹æ¹ý¿ø (065-94)¼­¿ïƯº°½Ã ¼­Ãʱ¸ ¼­ÃÊÁß¾Ó·Î 157 (¼­Ãʵ¿)
´ëÇ¥ : 02)530-1114, ¾ß°£ : 02)530-1280/536-8003
°üÇÒÁö¿ª : Á¾·Î±¸, Áß±¸, °­³²±¸, ¼­Ãʱ¸, °ü¾Ç±¸, µ¿ÀÛ±¸

µî±â¼Ò ¼­¿ïÁß¾ÓÁö¹æ¹ý¿ø º»¿ø µî±â±¹ (´ëÇ¥:1544-0773, ÆÑ½º:(02)590-1881, ¼­¿ïƯº°½Ã ¼­Ãʱ¸ ¹ý¿ø·Î3±æ 14 (¼­Ãʵ¿ 1707-4))
¼¼¹«¼­ µ¿ÀÛ¼¼¹«¼­ (´ëÇ¥:02-840-920, ÆÑ½º:02-831-4137, ¼­¿ïƯº°½Ã ¿µµîÆ÷±¸ ´ë¹æÃµ·Î 259 (½Å±æµ¿))

Àαٳ«ÂûÅë°è

±â°£ ¸Å°¢°Ç¼ö Æò±Õ°¨Á¤°¡
Æò±Õ¸Å°¢°¡
¸Å°¢°¡À²
Æò±ÕÀ¯Âû¼ö
3°³¿ù 17°Ç 367,294,118¿ø
391,028,765¿ø
104%
1.7ȸ
6°³¿ù 39°Ç 340,287,179¿ø
331,136,308¿ø
96%
2.7ȸ
12°³¿ù 114°Ç 313,699,912¿ø
282,398,912¿ø
88%
2.7ȸ


º» °æ¸ÅÁ¤º¸´Â ¹ý¿øÀÚ·á¿Í ÀÏÄ¡Çϵµ·Ï ÇÏ¿´À¸³ª ±Ç¸®»çÇ׺¯µ¿, ÀÔ·ÂÂø¿À µîÀÇ ¿øÀÎÀ¸·Î »ç½Ç°ú ´Ù¸¦ ¼ö ÀÖ½À´Ï´Ù. ÀÌ¿ë¾à°ü¿¡ ÀǰЏéÃ¥Á¶°ÇÀ¸·Î Á¦°øµÊÀ» ¾Ë¸®¸ç, °æ¸ÅÀÔÂû½Ã ¹Ýµå½Ã °ü·Ã °øºÎ¸¦ ÀçÈ®ÀÎÇϽñ⠹ٶø´Ï´Ù. º¸´Ù Æí¸®ÇÑ °æ¸ÅÁ¤º¸ Á¦°øÀ» À§ÇØ Áö¼ÓÀûÀ¸·Î °³¼±ÇϰڽÀ´Ï´Ù. ÀÌ¿ëÇØ Áּż­ °¨»çÇÕ´Ï´Ù.