| °¨Á¤°¡ | 480,475,500 ¿ø |
| ÃÖÀú°¡ | (34%) 164,803,000 ¿ø |
| º¸Áõ±Ý | (20%) 32,960,600 ¿ø |
| û±¸¾× | 396,771,289 ¿ø |
°æ»óºÏµµ °æÁֽà õºÏ¸é Ȼ긮 834-17
| »ç°Ç¹øÈ£ |
2024Ÿ°æ14943
|
| °æ¸ÅÁ¾·ù | ºÎµ¿»êÀÓÀǰæ¸Å |
| ¸Å°¢´ë»ó | ÅäÁö ¹× °Ç¹°Àϰý¸Å°¢ |
| ¸Å°¢±âÀÏ |
2025.11.18(È) 10:00
ÀÔÂû 10ÀÏÀü
|
| ÅäÁö¸éÀû | 430.00§³(130.08 Æò) |
| °Ç¹°¸éÀû | 128.19§³(38.78 Æò) |
| 乫/¼ÒÀ¯ÀÚ | ¾ÈOO / ÀÓOO¿Ü 1¸í |
| ä±ÇÀÚ | ½ÅOOOOOOOO |
±âÀϳ»¿ª
| °æ°ú |
³¯Â¥ |
Àú°¨ |
ÃÖÀú°¡ |
°á°ú |
| Á¢¼öÀÏ |
2024-12-11 |
°æ¸ÅÁ¢¼ö |
~0ÀÏ |
2024-12-11 |
°æ¸Å°³½Ã°áÁ¤ |
~75ÀÏ |
2025-02-24 |
¹è´ç¿ä±¸Á¾±âÀÏ |
~181ÀÏ |
2025-06-10 |
100% |
480,475,500 |
À¯Âû |
~216ÀÏ |
2025-07-15 |
70% |
336,333,000 |
À¯Âû |
~244ÀÏ |
2025-08-12 |
49% |
235,433,000 |
À¯Âû |
~272ÀÏ |
2025-09-09 |
34% |
164,803,000 |
¸Å°¢ |
|
³«Âû°¡ 225,010,000 (47%)
|
~309ÀÏ |
2025-10-16 |
¹Ì³³ |
~342ÀÏ |
2025-11-18 |
34% |
164,803,000 |
ÁøÇà |
°¨Á¤Æò°¡ÇöȲ
| ¸ñ·Ï |
ÁÖ¼Ò |
±¸Á¶/¿ëµµ/´ëÁö±Ç |
¸éÀû |
ºñ°í |
ÅäÁö
|
Ȼ긮 834-17 |
´ë |
430 §³ (130.08Æò)
|
|
°Ç¹°
|
Ȼ긮 834-17 |
1Ãþ ÁÖÅà ö±ÙÄÜÅ©¸®Æ®±¸Á¶ |
74.55 §³ (22.55Æò)
|
|
| Ȼ긮 834-17 |
2Ãþ ÁÖÅà ö±ÙÄÜÅ©¸®Æ®±¸Á¶ |
53.64 §³ (16.23Æò)
|
|
Âü°í »çÇ× |
1. Àϰý¸Å°¢
2. Àç¸Å°¢ÀÓ. ¸Å¼ö½Åûº¸Áõ±Ý ÃÖÀú¸Å°¢°¡°ÝÀÇ 20%
|
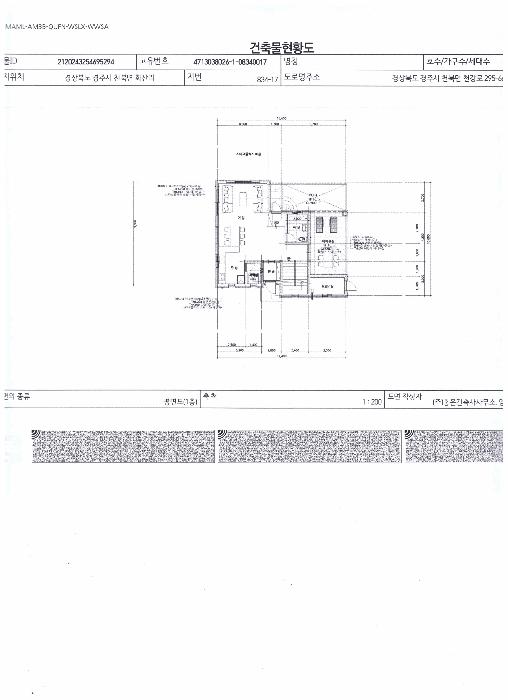
°ÇÃ๰ÇöȲ
| ¼ÒÀçÁö |
°æ»óºÏµµ °æÁֽà õºÏ¸é Ȼ긮 834-17¹øÁö |
| ´ëÁö¸éÀû |
430§³ (130.3Æò) |
¿¬¸éÀû |
128.19§³ (38.85Æò) |
| °ÇÃà¸éÀû |
95.37§³ (28.9Æò) |
¿ëÀû·ü»êÁ¤ ¿¬¸éÀû |
128.19§³ (38.85Æò) |
| °ÇÆóÀ² |
22.18% |
¿ëÀû·ü |
29.81% |
| Áö»óÃþ¼ö |
2Ãþ |
ÁöÇÏÃþ¼ö |
|
| ÁÖ¿ëµµ |
´Üµ¶ÁÖÅà |
±¸Á¶ |
ö±ÙÄÜÅ©¸®Æ®±¸Á¶ |
| Âø°øÀÏÀÚ |
2023.08.22 |
»ç¿ë½ÂÀÎÀÏÀÚ |
2024.02.01 |
°ÇÃ๰Ãþº°ÇöȲ [º¸±â]| Ãþº° | ±¸Á¶ | ¿ëµµ | ¸éÀû |
|---|
| 1Ãþ | ö±ÙÄÜÅ©¸®Æ®±¸Á¶ | ´Üµ¶ÁÖÅà | 74.55§³ (22.59Æò) | | 2Ãþ | ö±ÙÄÜÅ©¸®Æ®±¸Á¶ | ´Üµ¶ÁÖÅà | 53.64§³ (16.25Æò) |
|
±¹ÅäºÎ½Ç°Å·¡°¡ °æ»óºÏµµ °æÁֽà õºÏ¸é
| °è¾àÀÏ | À¯Çü | ¿¬¸éÀû | ´ëÁö | ±Ý¾× | °ÇÃà |
| 24.03.15 | ´Üµ¶ | 99.8 | 436 | 13,500 | 1973 |
| 24.03.04 | ´Ù°¡±¸ | 273.86 | 983 | 87,760 | 2019 |
| 24.01.14 | ´Üµ¶ | 95.9 | 255 | 19,000 | 1970 |
| °è¾àÀÏ | ¿¬¸éÀû | º¸Áõ±Ý | ¿ù¼¼ | °ÇÃà |
| 25.10.17 | 89.55 | 1,000 | 50 | 1996 |
| 25.10.11 | 151.55 | 15,000 | | 1981 |
| 25.09.02 | 125.34 | 57,000 | | 2021 |
| 25.08.19 | 82.71 | 14,500 | | 2018 |
| 25.07.01 | 127.34 | 46,000 | | 2022 |
| 25.07.01 | 99.84 | 43,000 | | 2022 |
| 25.06.18 | 20 | 200 | 35 | 2019 |
| 25.05.29 | 99.35 | 8,000 | | 1996 |
| 25.05.24 | 40 | 0 | 20 | |
| 25.04.28 | 166.5 | 42,000 | | 2010 |
| 25.02.28 | 92.4 | 20,920 | | 2015 |
| 25.02.03 | 231.09 | 37,000 | | 2010 |
| 25.01.13 | 78.4 | 5,200 | | 1915 |
| 25.01.10 | 225.98 | 32,400 | | 2010 |
| 25.01.02 | 219.12 | 8,000 | | 1993 |
| 24.12.26 | 50 | 8,500 | 0 | 2015 |
| 24.12.16 | 102.92 | 30,000 | | 2024 |
| 24.12.16 | 102.92 | 20,000 | | 2024 |
| 24.12.16 | 102.92 | 20,000 | | 2024 |
| 24.12.16 | 102.92 | 30,000 | | 2024 |
| 24.12.10 | 182.84 | 38,000 | | 2023 |
| 24.12.10 | 50 | 8,500 | 0 | 2015 |
| 24.12.10 | 50 | 8,500 | 0 | 2015 |
| 24.12.07 | 153.09 | 60,000 | | 2001 |
| 24.12.07 | 153.09 | 51,600 | | 2001 |
| 24.12.02 | 50 | 8,500 | 0 | 2015 |
| 24.10.15 | 73.8 | 10,000 | | 1933 |
| 24.09.11 | 78.15 | 3,000 | | 2001 |
| 24.09.05 | 82.8 | 11,900 | | 2002 |
| 24.07.31 | 182.4 | 27,000 | | 2013 |
| 24.06.19 | 212.38 | 45,000 | | 2016 |
| 24.06.09 | 149.48 | 55,900 | | 2016 |
| 24.06.04 | 99.84 | 40,400 | | 2022 |
| 24.06.04 | 99.84 | 40,400 | | 2022 |
| 24.06.04 | 127.34 | 43,700 | | 2022 |
| 24.06.04 | 127.34 | 43,700 | | 2022 |
| 24.05.24 | 68.3 | 16,000 | | 1940 |
| 24.05.02 | 45.6 | 4,500 | | 1900 |
| 24.04.12 | 144.63 | 40,000 | | 2021 |
| 24.04.12 | 110.56 | 35,000 | | 2021 |
| 24.04.04 | 45.3 | 5,100 | | 1975 |
µî±âºÎµîº» ¿ä¾à(ÅäÁö)
| |
Á¢¼öÀÏÀÚ |
µî±â¸ñÀû/±Ç¸®ÀÚ |
±Ç¸®±Ý¾× |
±âÁØ |
| 1 |
2024³â2¿ù22ÀÏ |
¼ÒÀ¯±Ç
ÀÓOO
|
|
¼Ò¸ê |
| 2 |
2024³â2¿ù22ÀÏ |
¼ÒÀ¯±Ç
¾ÈOO
|
|
¼Ò¸ê |
| 3 |
2024³â2¿ù22ÀÏ |
±ÙÀú´ç±Ç
½ÅOOOO
|
447,600,000 |
¼Ò¸ê±âÁØ |
| 4 |
2024³â2¿ù26ÀÏ |
±ÙÀú´ç±Ç
¿ÀOO
|
600,000,000 |
¼Ò¸ê |
| 5 |
2024³â5¿ù2ÀÏ |
°¡¾Ð·ù
°íOOOO
|
34,400,000 |
¼Ò¸ê |
| 6 |
2024³â6¿ù17ÀÏ |
°¡¾Ð·ù
(OOOO
|
133,600,000 |
¼Ò¸ê |
| 7 |
2024³â12¿ù12ÀÏ |
ÀÓÀǰæ¸Å
½ÅOOOO
|
|
¼Ò¸ê |
µî±âºÎµîº» ¿ä¾à(°Ç¹°)
| |
Á¢¼öÀÏÀÚ |
µî±â¸ñÀû/±Ç¸®ÀÚ |
±Ç¸®±Ý¾× |
±âÁØ |
| 1 |
2024³â2¿ù22ÀÏ |
¼ÒÀ¯±Ç
ÀÓOO
|
|
¼Ò¸ê |
| 2 |
2024³â2¿ù22ÀÏ |
¼ÒÀ¯±Ç
¾ÈOO
|
|
¼Ò¸ê |
| 3 |
2024³â2¿ù22ÀÏ |
±ÙÀú´ç±Ç
½ÅOOOO
|
447,600,000 |
¼Ò¸ê±âÁØ |
| 4 |
2024³â2¿ù26ÀÏ |
±ÙÀú´ç±Ç
¿ÀOO
|
600,000,000 |
¼Ò¸ê |
| 5 |
2024³â5¿ù2ÀÏ |
°¡¾Ð·ù
°íOOOO
|
34,400,000 |
¼Ò¸ê |
| 6 |
2024³â6¿ù17ÀÏ |
°¡¾Ð·ù
(OOOO
|
133,600,000 |
¼Ò¸ê |
| 7 |
2024³â12¿ù12ÀÏ |
ÀÓÀǰæ¸Å
½ÅOOOO
|
|
¼Ò¸ê |
ÀÓÂ÷ÀÎÇöȲ (¹è´ç¿ä±¸Á¾±âÀÏ: 2025-02-24)
Á¶»çµÈ ÀÓÂ÷³»¿ªÀÌ ¾ø½À´Ï´Ù
|
ÁÖÀÇ»çÇ× (ÃÖ¼±¼øÀ§ ¼³Á¤ÀÏ: 2024.2.22. ±ÙÀú´ç ¼³Á¤)
| ¸Å°¢À¸·Î ¼Ò¸êµÇÁö ¾Ê´Â µî±âºÎ±Ç¸®: |
| ¸Å°¢À¸·Î ¼³Á¤µÈ °ÍÀ¸·Î º¸´Â Áö»ó±Ç: |
|
1. Àϰý¸Å°¢
2. Àç¸Å°¢ÀÓ. ¸Å¼ö½Åûº¸Áõ±Ý ÃÖÀú¸Å°¢°¡°ÝÀÇ 20% ¡Ø¹Ì³³°ü¸®ºñ(°ø¿ë) Àμö¿©ºÎ¸¦ ÀÔÂû Àü¿¡ È®ÀÎÇϽñ⠹ٶø´Ï´Ù
|
Áö¿ªºÐ¼®
| Çб³¸í |
ÀüȹøÈ£ |
ÁÖ¼Ò |
Á÷¼±°Å¸® |
| ¹ý¿ø |
´ë±¸Áö¹æ¹ý¿ø °æÁÖÁö¿ø (381-45)°æ»óºÏµµ °æÁֽà ȶû·Î 89 (µ¿ºÎµ¿ 203) ´ëÇ¥ : 054)770-4300, ¾ß°£ : 054)770-4380 °üÇÒÁö¿ª : °æÁֽà |
| µî±â¼Ò |
´ë±¸Áö¹æ¹ý¿ø °æÁÖÁö¿ø µî±â°è (´ëÇ¥:1544-0773, ÆÑ½º:(054)742-9346, °æºÏ °æÁֽà ȶû·Î 89 (µ¿ºÎµ¿ 203)) |
| ¼¼¹«¼ |
°æÁÖ¼¼¹«¼ (´ëÇ¥:054-779-12, ÆÑ½º:054-743-4408, °æ»óºÏµµ °æÁֽà ¿øÈ·Î 335 (¼ºµ¿µ¿)) |
Àαٳ«ÂûÅë°è
| ±â°£ |
¸Å°¢°Ç¼ö |
Æò±Õ°¨Á¤°¡ Æò±Õ¸Å°¢°¡ |
¸Å°¢°¡À² Æò±ÕÀ¯Âû¼ö |
| 3°³¿ù |
9°Ç |
327,444,249¿ø 201,313,728¿ø |
59% 2.1ȸ |
| 6°³¿ù |
10°Ç |
313,773,904¿ø 190,682,355¿ø |
58% 2.1ȸ |
| 12°³¿ù |
10°Ç |
313,773,904¿ø 190,682,355¿ø |
58% 2.1ȸ |
º» °æ¸ÅÁ¤º¸´Â ¹ý¿øÀÚ·á¿Í ÀÏÄ¡Çϵµ·Ï ÇÏ¿´À¸³ª ±Ç¸®»çÇ׺¯µ¿, ÀÔ·ÂÂø¿À µîÀÇ ¿øÀÎÀ¸·Î »ç½Ç°ú ´Ù¸¦ ¼ö ÀÖ½À´Ï´Ù.
ÀÌ¿ë¾à°ü¿¡ ÀǰЏéÃ¥Á¶°ÇÀ¸·Î Á¦°øµÊÀ» ¾Ë¸®¸ç, °æ¸ÅÀÔÂû½Ã ¹Ýµå½Ã °ü·Ã °øºÎ¸¦ ÀçÈ®ÀÎÇϽñ⠹ٶø´Ï´Ù.
º¸´Ù Æí¸®ÇÑ °æ¸ÅÁ¤º¸ Á¦°øÀ» À§ÇØ Áö¼ÓÀûÀ¸·Î °³¼±ÇϰڽÀ´Ï´Ù. ÀÌ¿ëÇØ Áּż °¨»çÇÕ´Ï´Ù.