·Î±×ÀÎ
123
¿ÀÇǽºÅÚ
ÃáõÁö¹æ¹ý¿ø ¿øÁÖÁö¿ø
 °¨Á¤°¡76,927,000 ¿ø
 ÃÖÀú°¡(34%) 26,386,000 ¿ø
 º¸Áõ±Ý(10%) 2,638,600 ¿ø
 Ã»±¸¾×22,150,136 ¿ø
°­¿øµµ ¿øÁֽà õ»ç·Î 88, 3Ãþ305È£
°­¿øÆ¯º°ÀÚÄ¡µµ ¿øÁֽà ´Ü°èµ¿ 778-9
»ç°Ç¹øÈ£ 2023Ÿ°æ300780 ¹°°Ç¹øÈ£
Áߺ¹»ç°ÇÁߺ¹ 2023Ÿ°æ302427,
°æ¸ÅÁ¾·ùºÎµ¿»ê°­Á¦°æ¸Å
¸Å°¢´ë»óÅäÁö ¹× °Ç¹°Àϰý ¸Å°¢
¸Å°¢±âÀÏ    2026.01.26(¿ù) 10:00 ÀÔÂû 28ÀÏÀü    
ÅäÁö¸éÀû11.03§³(3.34 Æò)
°Ç¹°¸éÀû17.89§³(5.41 Æò)
乫/¼ÒÀ¯ÀÚÇÑOO / ÇÑOO
ä±ÇÀÚÀÌOO
ÆäÀ̽ººÏ Æ®À§ÅÍ ±¸±Û+
īī¿À½ºÅ丮
īī¿ÀÅå sms¹®ÀÚº¸³»±â
 

±âÀϳ»¿ª

°æ°ú ³¯Â¥ Àú°¨ ÃÖÀú°¡ °á°ú
Á¢¼öÀÏ 2023-02-21 °æ¸ÅÁ¢¼ö
~1ÀÏ 
2023-02-22 °æ¸Å°³½Ã°áÁ¤
~1042ÀÏ 
¹è´ç¿ä±¸Á¾±âÀÏ
~832ÀÏ 
2025-06-02 100%
76,927,000
º¯°æ
~930ÀÏ 
2025-09-08 100%
76,927,000
º¯°æ
~972ÀÏ 
2025-10-20 100%
76,927,000
À¯Âû
~1000ÀÏ 
2025-11-17 70%
53,849,000
À¯Âû
~1028ÀÏ 
2025-12-15 49%
37,694,000
À¯Âû
~1070ÀÏ 
2026-01-26 34%
26,386,000
ÁøÇà
¹°°Ç¸í¼¼¼­ ÇöȲÁ¶»ç¼­ ¹®°ÇÁ¢¼ö ¼Û´Þ³»¿ª

°¨Á¤Æò°¡ÇöȲ

¸ñ·Ï ÁÖ¼Ò ±¸Á¶/¿ëµµ/´ëÁö±Ç ¸éÀû ºñ°í
´ëÁö±Ç
´Ü°èµ¿ 778-9 433.5ºÐÀÇ 11.03 11.03 §³
(3.34Æò)
°Ç¹°
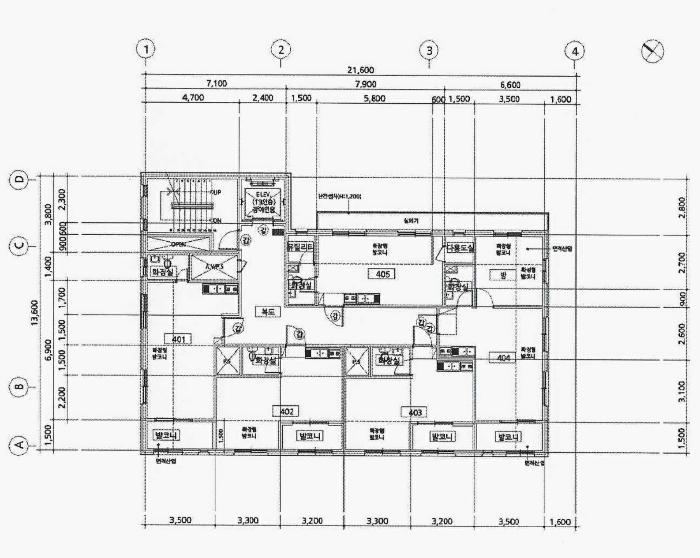
´Ü°èµ¿ 778-9 3Ãþ305È£ ö±ÙÄÜÅ©¸®Æ®±¸Á¶ 17.89 §³
(5.41Æò)
1) À§Ä¡/ÁØÁÖ°ÅÁö¿ª/ÁÖÂ÷Àå/ö±ÙÄÜÅ©¸®Æ®±¸Á¶/°¡½ºº¸ÀÏ·¯ ´õº¸±â
°¨Á¤Æò°¡ ¿äÇ×Ç¥
1)À§Ä¡ ¹× ÁÖÀ§È¯°æ
º» °ÇÀº °­¿øµµ ¿øÁֽà ´Ü°èµ¿¿¡ ¼ÒÀçÇÏ´Â ´Ü°èÁÖ°ø¾ÆÆÄÆ® ºÏÃø ±Ù°Å¸®¿¡ À§Ä¡Çϰí ÀÖÀ¸¸ç ÁÖÀ§´Â ±âÁ¸ÁÖÅÃÁö´ëÀ̳ª ¿ø·ëÇüÁÖÅà ¹× ¿ÀÇǽºÅÚ µîÀÌ ½ÅÃàÁßÀÎ Áö¿ªÀÓ.
2)±³Åë»óȲ
¾çÈ£ÇÑ Áö¿ªÀÓ.
3)°Ç¹°ÀÇ ±¸Á¶
ö±ÙÄÜÅ©¸®Æ®±¸Á¶ (ö±Ù)ÄÜÅ©¸®Æ®ÁöºØ 7Ãþ°ÇÀÇ ±¸Á¶·Î
¿Üº® : ¼®ÀçºÙÀÓ ¸¶°¨
³»º® : ¼®ÀçºÙÀÓ, º®Áöµµ¹è, ŸÀϺÙÀÓ ¸¶°¨
âȣ : »þ½Ã 2Áßâ À¯¸®, »þ½Ã´Üâ Æä¾î±×¶ó½ºÀÓ.
4)ÀÌ¿ë»óÅÂ
1ÃþÀº °ø¿ëÁÖÂ÷Àå ¹× °è´Ü½Ç, ½Â°­±â½Ç
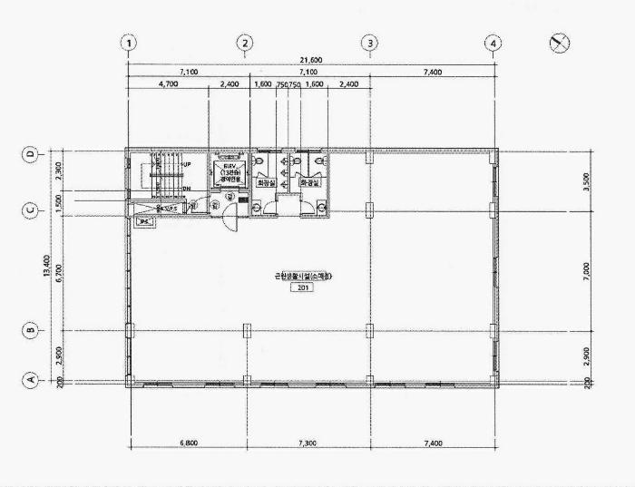
2ÃþÀº Á¦1Á¾±Ù¸°»ýȰ½Ã¼³ ¹× °è´Ü½Ç, ½Â°­±â½Ç
3-6ÃþÀº ¿ø·ëÇü ¿ÀÇǽºÅÚ ¹× °è´Ü½Ç, ½Â°­±â½Ç
7ÃþÀº ±â°è½Ç ¹× ´Ù¶ô¹æÀ¸·Î ÀÌ¿ëÁßÀÓ.
5)¼³ºñ³»¿ª
À§»ý¼³ºñ, °³º°°¡½ºº¸ÀÏ·¯ ³­¹æ¼³ºñ, ¿Á³»¼ÒÈ­Àü ¹× È­Àç°¨Áö½Ã¼³, ½Â°­±â¼³ºñ(1´ë).


6)ÅäÁöÀÇ Çü»ó ¹× ÀÌ¿ë»óÅÂ
¹æÇüÀ¸·Î ³²¼­Ãø °æ»çÁö¿¡ ¼ÒÀçÇϳª ÆòźÇÏ°Ô Á¶¼ºµÈ °ÇºÎÁöÀÓ.
7)ÀÎÁ¢ µµ·Î»óŵî
Æø ¾à 25mÀÇ ¾Æ½ºÆÈÆ®Æ÷Àåµµ·Î°¡ Á¢Çϰí ÀÖÀ½.
8)ÅäÁöÀÌ¿ë°èȹ ¹× Á¦ÇÑ»óÅÂ
ÁØÁÖ°ÅÁö¿ªÀ¸·Î ½Ã°¡Áö°æ°üÁö±¸, ´ë·Î3·ùÁ¢ÇÔ, °¡Ãà»çÀ°Á¦Çѱ¸¿ª(¸ðµçÃàÁ¾)ÀÓ.
9)°øºÎ¿ÍÀÇ Â÷ÀÌ
¾øÀ½.
10)±âŸÂü°í»çÇ×(ÀÓ´ë°ü·Ê ¹× ±âŸ)
±âÈ£(1,3,4,20)Àº 7ÃþºÎºÐÀÇ ´Ù¶ôÀ» ¼ÒÀ¯Çϰí ÀÖÀ½.
Âü°í
»çÇ×
ÀÓÂ÷ÀÎ ¿ì¼±¸Å¼ö½Åû±Ç ÀÖÀ½


µî±âºÎµîº» ¿ä¾à(°Ç¹°)

  Á¢¼öÀÏÀÚ µî±â¸ñÀû/±Ç¸®ÀÚ ±Ç¸®±Ý¾× ±âÁØ
1 2019³â7¿ù12ÀÏ
¼ÒÀ¯±Ç
ÇÑOO
¼Ò¸ê
2 2019³â7¿ù12ÀÏ
±ÙÀú´ç±Ç
³óOOOO
1,140,000,000 ¼Ò¸ê±âÁØ
3 2022³â12¿ù9ÀÏ
¾àÁ¤/±ÝÁö»çÇ×/ȯ¸ÅƯ¾à
¼Ò¸ê
4 2023³â2¿ù22ÀÏ
°­Á¦°æ¸Å
ÀÌOO
¼Ò¸ê
5 2023³â5¿ù22ÀÏ
°¡¾Ð·ù
ÀÌOO
85,000,000 ¼Ò¸ê
6 2023³â5¿ù22ÀÏ
ÀÓÀǰæ¸Å
¿øOOOO
¼Ò¸ê
7 2023³â10¿ù18ÀÏ
ÀÓÂ÷±Ç¼³Á¤
ÀÌOO
70,000,000 ¼Ò¸ê
8 2024³â1¿ù16ÀÏ
°¡¾Ð·ù
(OOOO
222,000,000 ¼Ò¸ê

ÀÓÂ÷ÀÎÇöȲ (¹è´ç¿ä±¸Á¾±âÀÏ: )

ÀÓÂ÷ÀÎ ¿ëµµ/Á¡À¯ º¸Áõ±Ý/¿ù¼¼ ´ëÇ×·Â
ÀüÀÔÀÏ/È®Á¤ÀÏ ¹è´ç¿ä±¸ ºñ°í
ÀÌOO 305È£ 70,000,000
X
2021.03.08
2021.01.22
2023.4.7. 2021.03.05~ÇöÀç

¿©ÀÇÁÖ°æ¸Å Á¶¾ð ÇÑ ¸¶µð

ÃëÇÏ ¶Ç´Â Ãë¼ÒµÉ °¡´É¼ºÀº ÀÖÀ¸³ª ±×´ë·Î ÁøÇàµÉ °¡´É¼ºµµ ¸¹½À´Ï´Ù
¼±Çà°æ¸Å¸¦ ½ÅûÇÑ Ã¤±ÇÀÚ°¡ ¹è´ç ¹Þ¾Æ¾ß ÇÒ ±Ý¾×Àº 22,150,136¿øÀ¸·Î °¨Á¤°¡°Ý ´ëºñ »ó´çÈ÷ ÀûÀº ±Ý¾×À̼­ °æ¸Å°¡ ÃëÇϵǰųª Ãë¼Ò µÉ °¡´É¼ºÀÌ ÀÖ½À´Ï´Ù. ±×·±µ¥ ÈÄÇà°æ¸Å »ç°Ç (Áߺ¹ 2023Ÿ°æ302427,)ÀÌ À־ ÃëÇÏ,Ãë¼ÒµÇÁö ¾Ê°í ÁøÇàµÉ °¡´É¼ºµµ ¸¹½À´Ï´Ù.

ÁÖÀÇ»çÇ× (ÃÖ¼±¼øÀ§ ¼³Á¤ÀÏ: 2019.7.12.±ÙÀú´ç±Ç ¼³Á¤)

¸Å°¢À¸·Î ¼Ò¸êµÇÁö ¾Ê´Â µî±âºÎ±Ç¸®:
¸Å°¢À¸·Î ¼³Á¤µÈ °ÍÀ¸·Î º¸´Â Áö»ó±Ç:
2024.09.19 ÁÖÅÃÀÓÂ÷±ÇÀÚ ¹ÚOO ÁÖ¼Ò ¹× ¼Û´ÞÀå¼Ò º¯°æ½Åû¼­ Á¦Ãâ
2023.11.03 ÀÓÂ÷ÀÎ ¿°OO ¸Å°¢±âÀÏ¿¬±â½Åû¼­ Á¦Ãâ
2023.11.03 ÀÓÂ÷ÀÎ ÀÌOO ¸Å°¢±âÀÏ¿¬±â½Åû¼­ Á¦Ãâ
2023.10.24 ÀÓÂ÷ÀÎ À¯OO ¸Å°¢±âÀÏ¿¬±â½Åû¼­ Á¦Ãâ
ÀÓÂ÷ÀÎ ¿ì¼±¸Å¼ö½Åû±Ç ÀÖÀ½
¡Ø¹Ì³³°ü¸®ºñ(°ø¿ë) Àμö¿©ºÎ¸¦ ÀÔÂû Àü¿¡ È®ÀÎÇϽñ⠹ٶø´Ï´Ù

 

Áö¿ªºÐ¼®

ÁöÇÏö¸í Á÷¼±°Å¸®

Çб³¸í ÀüÈ­¹øÈ£ ÁÖ¼Ò Á÷¼±°Å¸®

¹ý¿ø

ÃáõÁö¹æ¹ý¿ø ¿øÁÖÁö¿ø (264-78)°­¿øµµ ¿øÁֽà ½Ãû·Î149 (¹«½Çµ¿)
´ëÇ¥ : 033)738-1000, ¾ß°£ : 033)738-1199
°üÇÒÁö¿ª : ¿øÁÖ½Ã, Ⱦ¼º±º

µî±â¼Ò ÃáõÁö¹æ¹ý¿ø ¿øÁÖÁö¿ø µî±â°ú (´ëÇ¥:1544-0773, ÆÑ½º:(033)743-5611, °­¿øµµ ¿øÁֽà ½Ãû·Î 149 (¹«½Çµ¿ 1800))
¼¼¹«¼­ ¼¼¹«¼­ (´ëÇ¥:, ÆÑ½º:, )

Àαٳ«ÂûÅë°è

±â°£ ¸Å°¢°Ç¼ö Æò±Õ°¨Á¤°¡
Æò±Õ¸Å°¢°¡
¸Å°¢°¡À²
Æò±ÕÀ¯Âû¼ö
3°³¿ù 0°Ç 0¿ø
0¿ø
0%
0ȸ
6°³¿ù 0°Ç 0¿ø
0¿ø
0%
0ȸ
12°³¿ù 3°Ç 519,077,860¿ø
273,099,967¿ø
52%
2.3ȸ


º» °æ¸ÅÁ¤º¸´Â ¹ý¿øÀÚ·á¿Í ÀÏÄ¡Çϵµ·Ï ÇÏ¿´À¸³ª ±Ç¸®»çÇ׺¯µ¿, ÀÔ·ÂÂø¿À µîÀÇ ¿øÀÎÀ¸·Î »ç½Ç°ú ´Ù¸¦ ¼ö ÀÖ½À´Ï´Ù. ÀÌ¿ë¾à°ü¿¡ ÀǰЏéÃ¥Á¶°ÇÀ¸·Î Á¦°øµÊÀ» ¾Ë¸®¸ç, °æ¸ÅÀÔÂû½Ã ¹Ýµå½Ã °ü·Ã °øºÎ¸¦ ÀçÈ®ÀÎÇϽñ⠹ٶø´Ï´Ù. º¸´Ù Æí¸®ÇÑ °æ¸ÅÁ¤º¸ Á¦°øÀ» À§ÇØ Áö¼ÓÀûÀ¸·Î °³¼±ÇϰڽÀ´Ï´Ù. ÀÌ¿ëÇØ Áּż­ °¨»çÇÕ´Ï´Ù.