·Î±×ÀÎ
49
±Ù¸°»ó°¡
¼ö¿øÁö¹æ¹ý¿ø ¼º³²Áö¿ø
 °¨Á¤°¡257,000,000 ¿ø
 ÃÖÀú°¡(24%) 61,706,000 ¿ø
 º¸Áõ±Ý(10%) 6,170,600 ¿ø
 Ã»±¸¾×143,828,427 ¿ø
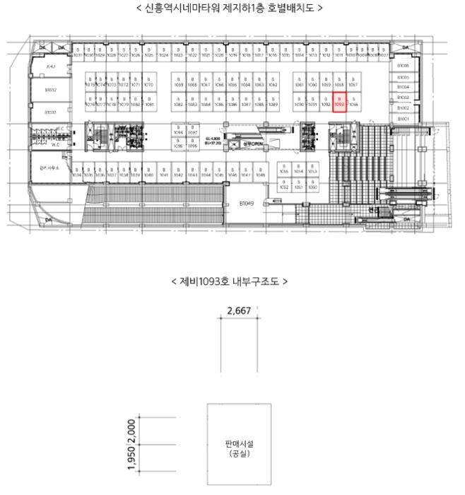
°æ±âµµ ¼º³²½Ã ¼öÁ¤±¸ »ê¼º´ë·Î 267, ÁöÇÏ1Ãþºñ1093È£ (½ÅÈﵿ,½ÅÈ↑½Ã³×¸¶Å¸¿ö)
°æ±âµµ ¼º³²½Ã ¼öÁ¤±¸ ½ÅÈﵿ 4124
»ç°Ç¹øÈ£ 2024Ÿ°æ5648
°æ¸ÅÁ¾·ùºÎµ¿»êÀÓÀǰæ¸Å
¸Å°¢´ë»óÅäÁö ¹× °Ç¹°Àϰý ¸Å°¢
¸Å°¢±âÀÏ    2025.11.24(¿ù) 10:00    
ÅäÁö¸éÀû2.38§³(0.72 Æò)
°Ç¹°¸éÀû10.53§³(3.19 Æò)
乫/¼ÒÀ¯ÀÚÃÖOO / ÃÖOO
ä±ÇÀÚÀ¯OOOOOOOOOOOO OOOO(OOOOOOOO OOOO)
ÆäÀ̽ººÏ Æ®À§ÅÍ ±¸±Û+
īī¿À½ºÅ丮
īī¿ÀÅå sms¹®ÀÚº¸³»±â
 

±âÀϳ»¿ª

°æ°ú ³¯Â¥ Àú°¨ ÃÖÀú°¡ °á°ú
Á¢¼öÀÏ 2024-09-04 °æ¸ÅÁ¢¼ö
~1ÀÏ 
2024-09-05 °æ¸Å°³½Ã°áÁ¤
~68ÀÏ 
2024-11-11 ¹è´ç¿ä±¸Á¾±âÀÏ
~271ÀÏ 
2025-06-02 100%
257,000,000
À¯Âû
~306ÀÏ 
2025-07-07 70%
179,900,000
À¯Âû
~341ÀÏ 
2025-08-11 49%
125,930,000
À¯Âû
~376ÀÏ 
2025-09-15 34%
88,151,000
À¯Âû
~446ÀÏ 
2025-11-24 24%
61,706,000
ÁøÇà
¹°°Ç¸í¼¼¼­ ÇöȲÁ¶»ç¼­ ¹®°ÇÁ¢¼ö ¼Û´Þ³»¿ª

°¨Á¤Æò°¡ÇöȲ

¸ñ·Ï ÁÖ¼Ò ±¸Á¶/¿ëµµ/´ëÁö±Ç ¸éÀû ºñ°í
´ëÁö±Ç
½ÅÈﵿ 4124 3278.7ºÐÀÇ 2.3812 2.3812 §³
(0.72Æò)
°Ç¹°
½ÅÈﵿ 4124 ÁöÇÏ1Ãþºñ1093È£ ö±ÙÄÜÅ©¸®Æ®±¸Á¶ 10.5331 §³
(3.19Æò)
 
1) À§Ä¡/µµ½ÃÁö¿ª/ÀϹݻó¾÷Áö¿ª/ÁÖÂ÷Àå/ÁöÇÏö/³ë¼±¹ö½ºÁ¤·ùÀå/°£¼±µµ·Î/ö±ÙÄÜÅ©¸®Æ®±¸Á¶ ´õº¸±â
°¨Á¤Æò°¡ ¿äÇ×Ç¥
1)À§Ä¡ ¹× ÁÖÀ§È¯°æ
´ë»ó¹°°ÇÀº °æ±âµµ ¼º³²½Ã ¼öÁ¤±¸ ½ÅÈﵿ ¼ÒÀç "½ÅÈ↑(ÁöÇÏö8È£¼±)" ºÏ¼­Ãø Àαٿ¡
À§Ä¡Çϸç, º»°Ç ÀαÙÀº ±Ù¸°»ýȰ½Ã¼³, ´ëÇü ÆÇ¸Å½Ã¼³ ¹× °ø°ø±â°ü µîÀÌ
¼ÒÀçÇÏ´Â »ó¾÷Áö´ëÀÓ.
2)±³Åë»óȲ
º»°Ç±îÁö Â÷·®ÀÇ Áø¡¤ÃâÀÔÀÌ ¿ëÀÌÇϰí,
Àαٿ¡ ³ë¼±¹ö½ºÁ¤·ùÀå ¹× ½ÅÈ↑(ÁöÇÏö8È£¼±) µîÀÌ ¼ÒÀçÇÏ´Â µî Á¦¹Ý±³Åë»çÁ¤Àº ¾çÈ£ÇÔ.
3)°Ç¹°ÀÇ ±¸Á¶
ö±ÙÄÜÅ©¸®Æ®±¸Á¶ ÆòÁöºØ ÁöÇÏ 6Ãþ, Áö»ó 11Ãþ °Ç¹° ³» Á¦ÁöÇÏ1Ãþ Á¦ºñ1093È£·Î¼­,
¿Ü º® : ¼®ÀçºÙÀÓ ¸¶°¨ µî,
â È£ : Æä¾î±Û¶ó½º ¹× ¼¦½Ãâȣ µîÀÓ.
4)ÀÌ¿ë»óÅÂ
ÆÇ¸Å½Ã¼³(ÇöȲ °ø½Ç)·Î ÀÌ¿ëÁßÀÓ(ÈÄ÷ "³»ºÎ±¸Á¶µµ" ÂüÁ¶).
5)¼³ºñ³»¿ª
À§»ý¡¤±Þ¹è¼ö¼³ºñ, ¼ÒÈ­Àü¼³ºñ, È­ÀçŽÁö¼³ºñ, ½Â°­±â¼³ºñ ¹× ÁÖÂ÷Àå¼³ºñ µî
±âº»ÀûÀÎ ¼³ºñ°¡ ±¸ºñµÇ¾î ÀÖÀ½.
6)ÅäÁöÀÇ Çü»ó ¹× ÀÌ¿ë»óÅÂ
¼¼ÀåÇü ÆòÁö·Î¼­ ÆÇ¸Å½Ã¼³, Á¦1Á¾Á¦2Á¾±Ù¸°»ýȰ½Ã¼³, ¹®È­¹×Áýȸ½Ã¼³ °ÇºÎÁö·Î ÀÌ¿ëÁßÀÓ.
7)ÀÎÁ¢ µµ·Î»óŵî
º»°Ç ³²ÃøÀ¸·Î ³ëÆø ¾à 50¹ÌÅÍ,
µ¿ÃøÀ¸·Î ³ëÆø ¾à 8¹ÌÅÍ, ºÏÃø ¹× ¼­ÃøÀ¸·Î ³ëÆø ¾à 6m³»¿ÜÀÇ Æ÷Àåµµ·Î¿Í Á¢ÇÔ.
8)ÅäÁöÀÌ¿ë°èȹ ¹× Á¦ÇÑ»óÅÂ
µµ½ÃÁö¿ª, ÀϹݻó¾÷Áö¿ª(2023-02-20), ¹æÈ­Áö±¸(2023-02-20), ½Ã°¡Áö°æ°üÁö±¸,
±¤·Î2·ù(Æø 50m-70m)(ÁÖ°£¼±µµ·Î)(Á¢ÇÕ), ¼Ò·Î2·ù(Æø 8m-10m)(2023-02-20)(Á¢ÇÕ),
Áß·Î2·ù(Æø 15m-20m)(2023-02-20)(Á¢ÇÕ), °¡Ãà»çÀ°Á¦Çѱ¸¿ª
<°¡ÃàºÐ´¢ÀÇ °ü¸® ¹× À̿뿡 °üÇÑ ¹ý·ü>, ºñÇà¾ÈÀüÁ¦6±¸¿ª(Àü¼ú)
<±º»ç±âÁö ¹× ±º»ç½Ã¼³ º¸È£¹ý>, ´ë±âȯ°æ±ÔÁ¦Áö¿ª<´ë±âȯ°æº¸Àü¹ý>,
µµ½Ã±³ÅëÁ¤ºñÁö¿ª<µµ½Ã±³ÅëÁ¤ºñÃËÁø¹ý>, °ú¹Ð¾ïÁ¦±Ç¿ª<¼öµµ±ÇÁ¤ºñ°èȹ¹ý>
9)°øºÎ¿ÍÀÇ Â÷ÀÌ
-
10)±âŸÂü°í»çÇ×(ÀÓ´ë°ü·Ê ¹× ±âŸ)
-
Âü°í
»çÇ×
- ¿ÀÇÂÇü »ó°¡·Î °ø½Ç»óÅÂÀÌ¸ç °Ç¹°¹øÈ£Ç¥°¡ ¼³Ä¡µÇ¾î ÀÖÀ½
- º»°Ç ºÎµ¿

°ÇÃ๰ÇöȲ

¼ÒÀçÁö °æ±âµµ ¼º³²½Ã ¼öÁ¤±¸ ½ÅÈﵿ 4124¹øÁö
´ëÁö¸éÀû 3278.7§³
(993.55Æò)
¿¬¸éÀû 38401.7328§³
(11636.89Æò)
°ÇÃà¸éÀû 2394.3257§³
(725.55Æò)
¿ëÀû·ü»êÁ¤
¿¬¸éÀû
21883.2624§³
(6631.29Æò)
°ÇÆóÀ² 73.0267% ¿ëÀû·ü 667.4372%
Áö»óÃþ¼ö 11Ãþ ÁöÇÏÃþ¼ö 6Ãþ
ÁÖ¿ëµµ ÆÇ¸Å½Ã¼³ ±¸Á¶ ö±ÙÄÜÅ©¸®Æ®±¸Á¶
Âø°øÀÏÀÚ 2016.12.29 »ç¿ë½ÂÀÎÀÏÀÚ 2018.12.26
°ÇÃ๰Ãþº°ÇöȲ [º¸±â]


µî±âºÎµîº» ¿ä¾à(°Ç¹°)

  Á¢¼öÀÏÀÚ µî±â¸ñÀû/±Ç¸®ÀÚ ±Ç¸®±Ý¾× ±âÁØ
1 2019³â1¿ù23ÀÏ
¼ÒÀ¯±Ç
ÃÖOO
¼Ò¸ê
2 2019³â1¿ù23ÀÏ
±ÙÀú´ç±Ç
(OOOO
183,600,000 ¼Ò¸ê±âÁØ
3 2024³â9¿ù5ÀÏ
ÀÓÀǰæ¸Å
À¯OOOO
¼Ò¸ê

ÀÓÂ÷ÀÎÇöȲ (¹è´ç¿ä±¸Á¾±âÀÏ: 2024-11-11)


Á¶»çµÈ ÀÓÂ÷³»¿ªÀÌ ¾ø½À´Ï´Ù


¿©ÀÇÁÖ°æ¸Å Á¶¾ð ÇÑ ¸¶µð


ÁÖÀÇ»çÇ× (ÃÖ¼±¼øÀ§ ¼³Á¤ÀÏ: 2019.1.23. ±ÙÀú´ç±Ç ¼³Á¤)

¸Å°¢À¸·Î ¼Ò¸êµÇÁö ¾Ê´Â µî±âºÎ±Ç¸®:
¸Å°¢À¸·Î ¼³Á¤µÈ °ÍÀ¸·Î º¸´Â Áö»ó±Ç:
- ¿ÀÇÂÇü »ó°¡·Î °ø½Ç»óÅÂÀÌ¸ç °Ç¹°¹øÈ£Ç¥°¡ ¼³Ä¡µÇ¾î ÀÖÀ½
¡Ø¹Ì³³°ü¸®ºñ(°ø¿ë) Àμö¿©ºÎ¸¦ ÀÔÂû Àü¿¡ È®ÀÎÇϽñ⠹ٶø´Ï´Ù

 

Áö¿ªºÐ¼®

ÁöÇÏö¸í Á÷¼±°Å¸®

Çб³¸í ÀüÈ­¹øÈ£ ÁÖ¼Ò Á÷¼±°Å¸®

¹ý¿ø

¼ö¿øÁö¹æ¹ý¿ø ¼º³²Áö¿ø (131-43)°æ±âµµ ¼º³²½Ã ¼öÁ¤±¸ »ê¼º´ë·Î 451 (´Ü´ëµ¿)
´ëÇ¥ : 031)737-1558, ¾ß°£ : 031)737-1120
°üÇÒÁö¿ª : ¼º³²½Ã, ±¤ÁÖ½Ã, Çϳ²½Ã

µî±â¼Ò ¼ö¿øÁö¹æ¹ý¿ø ¼º³²Áö¿ø µî±â°ú (´ëÇ¥:1544-0773, ÆÑ½º:(031)741-2913, °æ±âµµ ¼º³²½Ã ¼öÁ¤±¸ »ê¼º´ë·Î 451 (´Ü´ëµ¿ 75))
¼¼¹«¼­ ¼º³²¼¼¹«¼­ (´ëÇ¥:031-730-62, ÆÑ½º:031-736-1904, °æ±âµµ ¼º³²½Ã ¼öÁ¤±¸ Èñ¸Á·Î 480 (´Ü´ëµ¿))

Àαٳ«ÂûÅë°è

±â°£ ¸Å°¢°Ç¼ö Æò±Õ°¨Á¤°¡
Æò±Õ¸Å°¢°¡
¸Å°¢°¡À²
Æò±ÕÀ¯Âû¼ö
3°³¿ù 3°Ç 1,196,000,000¿ø
636,370,370¿ø
55%
2ȸ
6°³¿ù 6°Ç 1,199,250,000¿ø
594,351,852¿ø
50%
2.5ȸ
12°³¿ù 13°Ç 1,313,904,308¿ø
676,787,778¿ø
52%
2.5ȸ


º» °æ¸ÅÁ¤º¸´Â ¹ý¿øÀÚ·á¿Í ÀÏÄ¡Çϵµ·Ï ÇÏ¿´À¸³ª ±Ç¸®»çÇ׺¯µ¿, ÀÔ·ÂÂø¿À µîÀÇ ¿øÀÎÀ¸·Î »ç½Ç°ú ´Ù¸¦ ¼ö ÀÖ½À´Ï´Ù. ÀÌ¿ë¾à°ü¿¡ ÀǰЏéÃ¥Á¶°ÇÀ¸·Î Á¦°øµÊÀ» ¾Ë¸®¸ç, °æ¸ÅÀÔÂû½Ã ¹Ýµå½Ã °ü·Ã °øºÎ¸¦ ÀçÈ®ÀÎÇϽñ⠹ٶø´Ï´Ù. º¸´Ù Æí¸®ÇÑ °æ¸ÅÁ¤º¸ Á¦°øÀ» À§ÇØ Áö¼ÓÀûÀ¸·Î °³¼±ÇϰڽÀ´Ï´Ù. ÀÌ¿ëÇØ Áּż­ °¨»çÇÕ´Ï´Ù.