·Î±×ÀÎ
1008
±Ù¸°»ó°¡
¼­¿ï³²ºÎÁö¹æ¹ý¿ø
 °¨Á¤°¡175,000,000 ¿ø
 ÃÖÀú°¡(100%) 175,000,000 ¿ø
 º¸Áõ±Ý(10%) 17,500,000 ¿ø
 Ã»±¸¾×150,000,000 ¿ø
¼­¿ïƯº°½Ã ±¸·Î±¸ °æÀηÎ33±æ 32-10, Á¦1Ãþ Á¦101È£ (°³ºÀµ¿, ´Ùºóºô)
¼­¿ïƯº°½Ã ±¸·Î±¸ °³ºÀµ¿ 139-89
»ç°Ç¹øÈ£ 2024Ÿ°æ129297
°æ¸ÅÁ¾·ùºÎµ¿»ê°­Á¦°æ¸Å
¸Å°¢´ë»óÅäÁö ¹× °Ç¹°Àϰý ¸Å°¢
¸Å°¢±âÀÏ    2026.02.25(¼ö) 10:00 ÀÔÂû 2ÀÏÀü    
ÅäÁö¸éÀû21.30§³(6.44 Æò)
°Ç¹°¸éÀû32.76§³(9.91 Æò)
乫/¼ÒÀ¯ÀÚ¸Á OOOO OOOO OOO OOO OOO / ¸Á OOOO OOOO OOO OOO OOO
ä±ÇÀÚÀÌOO
ÆäÀ̽ººÏ Æ®À§ÅÍ ±¸±Û+
īī¿À½ºÅ丮
īī¿ÀÅå sms¹®ÀÚº¸³»±â
 

±âÀϳ»¿ª

°æ°ú ³¯Â¥ Àú°¨ ÃÖÀú°¡ °á°ú
Á¢¼öÀÏ 2024-07-29 °æ¸ÅÁ¢¼ö
~8ÀÏ 
2024-08-06 °æ¸Å°³½Ã°áÁ¤
~99ÀÏ 
2024-11-05 ¹è´ç¿ä±¸Á¾±âÀÏ
~302ÀÏ 
2025-05-27 100%
175,000,000
º¯°æ
~576ÀÏ 
2026-02-25 100%
175,000,000
ÁøÇà
¹°°Ç¸í¼¼¼­ ÇöȲÁ¶»ç¼­ ¹®°ÇÁ¢¼ö ¼Û´Þ³»¿ª

°¨Á¤Æò°¡ÇöȲ

¸ñ·Ï ÁÖ¼Ò ±¸Á¶/¿ëµµ/´ëÁö±Ç ¸éÀû ºñ°í
´ëÁö±Ç
°³ºÀµ¿ 139-89 284ºÐÀÇ 21.3 21.3 §³
(6.44Æò)
°Ç¹°
°³ºÀµ¿ 139-89 Á¦1Ãþ Á¦101È£ ö±ÙÄÜÅ©¸®Æ®±¸Á¶ 32.76 §³
(9.91Æò)
1) À§Ä¡/Á¦2Á¾ÀϹÝÁÖ°ÅÁö¿ª/³ë¼±¹ö½ºÁ¤·ùÀå/ö±ÙÄÜÅ©¸®Æ®Á¶/Æò½½·¡ºêÁöºØ ´õº¸±â
°¨Á¤Æò°¡ ¿äÇ×Ç¥
1)À§Ä¡ ¹× ÁÖÀ§È¯°æ
¼­¿ïƯº°½Ã ±¸·Î±¸ °³ºÀµ¿ ¼ÒÀç "°æÀÎÁßÇб³" ºÏ¼­Ãø Àαٿ¡ À§Ä¡Çϸç, ÁÖÀ§´Â ´Üµ¶
ÁÖÅÃ, °øµ¿ÁÖÅÃ, ±Ù¸°»ýȰ½Ã¼³, °¢±Þ Çб³ µîÀÌ È¥ÀçÇÏ´Â Áö¿ªÀ¸·Î¼­ Àü¹ÝÀûÀÎ ÁÖÀ§
ȯ°æÀº º¸Åë½Ã µË´Ï´Ù.
2)±³Åë»óȲ
º»°Ç±îÁö Â÷·®ÃâÀÔÀÌ °¡´ÉÇϰí, Àα٠µµ·Îº¯¿¡ ³ë¼±¹ö½ºÁ¤·ùÀåÀÌ ¼ÒÀçÇÏ´Â µî ´ëÁß
±³Åë»çÁ¤Àº º¸Åë½Ã µË´Ï´Ù.
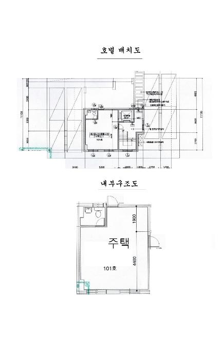
3)°Ç¹°ÀÇ ±¸Á¶
ö±ÙÄÜÅ©¸®Æ®Á¶ Æò½½·¡ºêÁöºØ 5Ãþ °Ç¹° ³» 1Ãþ 101È£·Î¼­,
¿Üº® : ¼®Àç ¹× º®µ¹Å¸ÀϺÙÀÓ µî ¸¶°¨.
³»º® : º®Áö µµ¹è ¹× ÀϺΠŸÀϺÙÀÓ µî ¸¶°¨.
âȣ : ¼¦½Ã âȣ µî.
4)ÀÌ¿ë»óÅÂ
º»°ÇÀº °øºÎ»ó "±Ù¸°»ýȰ½Ã¼³"·Î µîÀçµÇ¾î ÀÖÀ¸³ª, ÇöȲ "ÁÖÅÃ"À¸·Î ÀÌ¿ëÁßÀÔ´Ï´Ù.
5)¼³ºñ³»¿ª
º»°ÇÀº ±Þ¡¤¹è¼ö½Ã¼³ µî ±âº»ÀûÀÎ À§»ý¼³ºñ, ³­¹æ¼³ºñ, ½Â°­±â¼³ºñ µîÀÌ µÇ¾îÀÖ½À
´Ï´Ù.

6)ÅäÁöÀÇ Çü»ó ¹× ÀÌ¿ë»óÅÂ
º»°ÇÀº ÀÎÁ¢ ÅäÁö ´ëºñ µî°íÆòźÇÑ 2ÇÊÁö ÀÏ´ÜÀÇ »ç´Ù¸®Çü ÅäÁö·Î¼­, °øµ¿ÁÖÅà ¹×
±Ù¸°»ýȰ½Ã¼³ °ÇºÎÁö·Î ÀÌ¿ëÁßÀÔ´Ï´Ù.
7)ÀÎÁ¢ µµ·Î»óŵî
º»°ÇÀº ºÏµ¿ÃøÀ¸·Î ³ëÆø ¾à 4¹ÌÅÍÀÇ Æ÷Àåµµ·Î¿Í Á¢ÇÕ´Ï´Ù.
8)ÅäÁöÀÌ¿ë°èȹ ¹× Á¦ÇÑ»óÅÂ
°³ºÀµ¿ 139-89, °³ºÀµ¿ 139-90 °øÈ÷
Á¦2Á¾ÀϹÝÁÖ°ÅÁö¿ª(7Ãþ), Àå¾Ö¹°Á¦ÇÑÇ¥¸é±¸¿ª(ÁøÀÔÇ¥¸é), ±³À°È¯°æº¸È£±¸¿ª, ´ë°ø
¹æ¾îÇùÁ¶±¸¿ª(À§Å¹°íµµ:ÇØ¹ß165m(Áö¹Ý+°ÇÃà+¿Áž µî)), °ú¹Ð¾ïÁ¦±Ç¿ª µîÀÔ´Ï´Ù.

(ÀÚ¼¼ÇÑ »çÇ×Àº ÈÄ÷ "ÅäÁöÀÌ¿ë°èȹȮÀμ­" ÂüÁ¶)
9)°øºÎ¿ÍÀÇ Â÷ÀÌ
--
10)±âŸÂü°í»çÇ×(ÀÓ´ë°ü·Ê ¹× ±âŸ)
ÀÓ´ë°ü°è: ¹Ì»óÀÔ´Ï´Ù.
±âŸ : -

°ÇÃ๰ÇöȲ

¼ÒÀçÁö ¼­¿ïƯº°½Ã ±¸·Î±¸ °³ºÀµ¿ 139-89¹øÁö
´ëÁö¸éÀû 263.32§³
(79.79Æò)
¿¬¸éÀû 525.32§³
(159.19Æò)
°ÇÃà¸éÀû 156.54§³
(47.44Æò)
¿ëÀû·ü»êÁ¤
¿¬¸éÀû
525.32§³
(159.19Æò)
°ÇÆóÀ² 59.45% ¿ëÀû·ü 199.5%
Áö»óÃþ¼ö 5Ãþ ÁöÇÏÃþ¼ö  
ÁÖ¿ëµµ °øµ¿ÁÖÅà ±¸Á¶ ö±ÙÄÜÅ©¸®Æ®±¸Á¶
Âø°øÀÏÀÚ 2019.05.09 »ç¿ë½ÂÀÎÀÏÀÚ 2019.10.10
°ÇÃ๰Ãþº°ÇöȲ [º¸±â]


µî±âºÎµîº» ¿ä¾à(°Ç¹°)

  Á¢¼öÀÏÀÚ µî±â¸ñÀû/±Ç¸®ÀÚ ±Ç¸®±Ý¾× ±âÁØ
1 2020³â5¿ù29ÀÏ
¼ÒÀ¯±Ç
±èOO
¼Ò¸ê
2 2022³â2¿ù4ÀÏ
¾Ð·ù
±¹
¼Ò¸ê±âÁØ
3 2022³â8¿ù11ÀÏ
°¡¾Ð·ù
ÁÖOOOO
1,462,000,000 ¼Ò¸ê
4 2023³â2¿ù3ÀÏ
¾Ð·ù
±¸OO
¼Ò¸ê
5 2024³â8¿ù6ÀÏ
°­Á¦°æ¸Å
ÀÌOO
¼Ò¸ê

ÀÓÂ÷ÀÎÇöȲ (¹è´ç¿ä±¸Á¾±âÀÏ: 2024-11-05)

ÀÓÂ÷ÀÎ ¿ëµµ/Á¡À¯ º¸Áõ±Ý/¿ù¼¼ ´ëÇ×·Â
ÀüÀÔÀÏ/È®Á¤ÀÏ ¹è´ç¿ä±¸ ºñ°í
ÀÌOO ÀüºÎ 150,000,000
O
2020.04.21.
2020.04.09.
2024.7.29. 2020.04.21.~2022.04.20.
ºñ°í
(¸Å°¢¹°°Ç
¸í¼¼¼­)
À̵¿¿ø:½Åûä±ÇÀÚÀÓ

¿©ÀÇÁÖ°æ¸Å Á¶¾ð ÇÑ ¸¶µð


ÁÖÀÇ»çÇ× (ÃÖ¼±¼øÀ§ ¼³Á¤ÀÏ: 2022.02.04. ¾Ð·ù ¼³Á¤)

¸Å°¢À¸·Î ¼Ò¸êµÇÁö ¾Ê´Â µî±âºÎ±Ç¸®:
¸Å°¢À¸·Î ¼³Á¤µÈ °ÍÀ¸·Î º¸´Â Áö»ó±Ç:
°¨Á¤¼­¿¡ µû¸£¸é °øºÎ»ó ¡°±Ù¸°»ýȰ½Ã¼³¡±·Î µîÀçµÇ¾î ÀÖÀ¸³ª, ÇöȲÀº ¡°ÁÖÅá±À¸·Î ÀÌ¿ë ÁßÀ̶ó°í ÇÔ
¡Ø¹Ì³³°ü¸®ºñ(°ø¿ë) Àμö¿©ºÎ¸¦ ÀÔÂû Àü¿¡ È®ÀÎÇϽñ⠹ٶø´Ï´Ù

 

Áö¿ªºÐ¼®

ÁöÇÏö¸í Á÷¼±°Å¸®

Çб³¸í ÀüÈ­¹øÈ£ ÁÖ¼Ò Á÷¼±°Å¸®

¹ý¿ø

¼­¿ï³²ºÎÁö¹æ¹ý¿ø (080-88)¼­¿ïƯº°½Ã ¾çõ±¸ ½Å¿ù·Î 386(½ÅÁ¤µ¿)
´ëÇ¥ : 02)2192-1114
°üÇÒÁö¿ª : ¿µµîÆ÷±¸, °­¼­±¸, ¾çõ±¸, ±¸·Î±¸, ±Ýõ±¸

µî±â¼Ò ¼­¿ï³²ºÎÁö¹æ¹ý¿ø º»¿ø µî±â±¹ (´ëÇ¥:1544-0773, ÆÑ½º:(02)2629-7307, ¼­¿ïƯº°½Ã ¿µµîÆ÷±¸ °æÀηΠ772 (¹®·¡µ¿ 1°¡))
¼¼¹«¼­ ±¸·Î¼¼¹«¼­ (´ëÇ¥:02-2630-72, ÆÑ½º:02-2679-6394, ¼­¿ïƯº°½Ã ¿µµîÆ÷±¸ °æÀηΠ778 (¹®·¡µ¿1°¡))

Àαٳ«ÂûÅë°è

±â°£ ¸Å°¢°Ç¼ö Æò±Õ°¨Á¤°¡
Æò±Õ¸Å°¢°¡
¸Å°¢°¡À²
Æò±ÕÀ¯Âû¼ö


º» °æ¸ÅÁ¤º¸´Â ¹ý¿øÀÚ·á¿Í ÀÏÄ¡Çϵµ·Ï ÇÏ¿´À¸³ª ±Ç¸®»çÇ׺¯µ¿, ÀÔ·ÂÂø¿À µîÀÇ ¿øÀÎÀ¸·Î »ç½Ç°ú ´Ù¸¦ ¼ö ÀÖ½À´Ï´Ù. ÀÌ¿ë¾à°ü¿¡ ÀǰЏéÃ¥Á¶°ÇÀ¸·Î Á¦°øµÊÀ» ¾Ë¸®¸ç, °æ¸ÅÀÔÂû½Ã ¹Ýµå½Ã °ü·Ã °øºÎ¸¦ ÀçÈ®ÀÎÇϽñ⠹ٶø´Ï´Ù. º¸´Ù Æí¸®ÇÑ °æ¸ÅÁ¤º¸ Á¦°øÀ» À§ÇØ Áö¼ÓÀûÀ¸·Î °³¼±ÇϰڽÀ´Ï´Ù. ÀÌ¿ëÇØ Áּż­ °¨»çÇÕ´Ï´Ù.