·Î±×ÀÎ
20590
¿ÀÇǽºÅÚ
ÀüÁÖÁö¹æ¹ý¿ø Á¤À¾Áö¿ø
 °¨Á¤°¡147,000,000 ¿ø
 ÃÖÀú°¡(49%) 72,030,000 ¿ø
 º¸Áõ±Ý(10%) 7,203,000 ¿ø
 Ã»±¸¾×2,127,152 ¿ø
ÀüºÏƯº°ÀÚÄ¡µµ ºÎ¾È±º ºÎ¾ÈÀ¾ ºÎdz·Î 68, 2Ãþ 204È£ (ºÎ¾Èij½½¿Â¸®ºä)
ÀüºÏƯº°ÀÚÄ¡µµ ºÎ¾È±º ºÎ¾ÈÀ¾ ¼­¿Ü¸® 38-10
»ç°Ç¹øÈ£ 2024Ÿ°æ33383 ¹°°Ç¹øÈ£
Áߺ¹»ç°ÇÁߺ¹ 2025Ÿ°æ30328,
°æ¸ÅÁ¾·ùºÎµ¿»ê°­Á¦°æ¸Å
¸Å°¢´ë»óÅäÁö ¹× °Ç¹°Àϰý ¸Å°¢
¸Å°¢±âÀÏ    2025.11.10(¿ù) 10:00 ÀÔÂû 1ÀÏÀü    
ÅäÁö¸éÀû15.48§³(4.68 Æò)
°Ç¹°¸éÀû49.60§³(15.00 Æò)
乫/¼ÒÀ¯ÀÚÀ¯OOO OOOO / À¯OOO OOOO
ä±ÇÀÚÀÌOO¿Ü 1¸í
ÆäÀ̽ººÏ Æ®À§ÅÍ ±¸±Û+
īī¿À½ºÅ丮
īī¿ÀÅå sms¹®ÀÚº¸³»±â
 

±âÀϳ»¿ª

°æ°ú ³¯Â¥ Àú°¨ ÃÖÀú°¡ °á°ú
Á¢¼öÀÏ 2024-10-08 °æ¸ÅÁ¢¼ö
~2ÀÏ 
2024-10-10 °æ¸Å°³½Ã°áÁ¤
~93ÀÏ 
2025-01-09 ¹è´ç¿ä±¸Á¾±âÀÏ
~223ÀÏ 
2025-05-19 100%
147,000,000
À¯Âû
~272ÀÏ 
2025-07-07 70%
102,900,000
À¯Âû
~314ÀÏ 
2025-08-18 49%
72,030,000
¸Å°¢
³«Âû°¡ 105,200,000 (72%)
~356ÀÏ 
2025-09-29 ¹Ì³³
~398ÀÏ 
2025-11-10 49%
72,030,000
ÁøÇà
¹°°Ç¸í¼¼¼­ ÇöȲÁ¶»ç¼­ ¹®°ÇÁ¢¼ö ¼Û´Þ³»¿ª

°¨Á¤Æò°¡ÇöȲ

¸ñ·Ï ÁÖ¼Ò ±¸Á¶/¿ëµµ/´ëÁö±Ç ¸éÀû ºñ°í
´ëÁö±Ç
¼­¿Ü¸® 38-10 1299ºÐÀÇ 15.4824 15.4824 §³
(4.68Æò)
°Ç¹°
¼­¿Ü¸® 38-10 2Ãþ 204È£ ö±ÙÄÜÅ©¸®Æ®±¸Á¶ 49.60 §³
(15.00Æò)
1) À§Ä¡/µµ½ÃÁö¿ª/Á¦2Á¾ÀϹÝÁÖ°ÅÁö¿ª/ÀϹݻó¾÷Áö¿ª/Â÷·® Á¢±ÙÀÌ °¡´É/°£¼±µµ·Î/¹ö½º½Â°­Àå/ö±ÙÄÜÅ©¸®Æ®±¸Á¶ ´õº¸±â
°¨Á¤Æò°¡ ¿äÇ×Ç¥
1)À§Ä¡ ¹× ÁÖÀ§È¯°æ
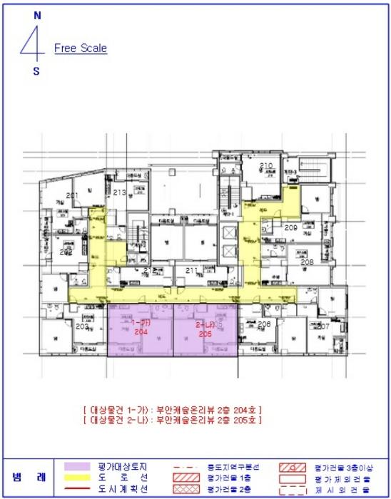
´ë»ó¹°°ÇÀº ÀüºÏƯº°ÀÚÄ¡µµ ºÎ¾È±º ºÎ¾ÈÀ¾ ¼­¿Ü¸®¿¡ ¼ÒÀçÇÏ´Â "ºÎ¾ÈÃʵîÇб³" ³²Ãø Àαٿ¡
À§Ä¡ÇÏ´Â ºÎ¾Èij½½¿Â¸®ºä 2Ãþ 204È£¿Í 205È£·Î¼­, ÁÖÀ§È¯°æÀº °øµ¿ÁÖÅðú ´Üµ¶ÁÖÅÃ, »ó°¡
µîÀÌ È¥ÀçÇÏ´Â ºÎ¾ÈÀ¾ ¼ÒÀçÁö³» ÁÖÅà ¹× »ó°¡ È¥¿ëÁö´ëÀÔ´Ï´Ù.
2)±³Åë»óȲ
´ë»ó¹°°Ç ´ÜÁö·ÎÀÇ Â÷·® Á¢±ÙÀÌ °¡´ÉÇϸç, Àαٿ¡ °£¼±µµ·Î¿Í ¹ö½º½Â°­Àå µîÀÌ À§Ä¡Çϰí
ÀÖ¾î Àü¹ÝÀûÀÎ ±³Åë»çÁ¤Àº º¸Åë½ÃµË´Ï´Ù.
3)°Ç¹°ÀÇ ±¸Á¶
1-°¡), 2-³ª) ö±ÙÄÜÅ©¸®Æ®±¸Á¶ (ö±Ù)ÄÜÅ©¸®Æ®ÁöºØ 10Ãþ Áß 2Ãþ 204È£¿Í 205È£·Î¼­,
¿Üº® : ¸ð¸£Å¸¸£À§ ÆäÀÎÆÃ ¹× µ¹ºÙÀÓ µî ¸¶°¨,
³»º®¡¤ÃµÀå : º®Áö ¹× ŸÀÏ µî ¸¶°¨,
âȣ : ¼¦½ÃâÀÔ´Ï´Ù.
4)ÀÌ¿ë»óÅÂ
1-°¡), 2-³ª)´Â ÁÖ°Å¿ë ¿ÀÇǽºÅÚ·Î ÀÌ¿ëÁßÀÔ´Ï´Ù.
5)¼³ºñ³»¿ª
±âº»ÀûÀÎ À§»ý¼³ºñ¿Í Àü±â¼³ºñ, ³­¹æ½Ã¼³, ½Â°­±â¼³ºñ, È­ÀçŽÁö¼³ºñ µîÀÌ µÇ¾î ÀÖ½À´Ï´Ù.
6)ÅäÁöÀÇ Çü»ó ¹× ÀÌ¿ë»óÅÂ
ºñ±³Àû »ç´Ù¸®ÇüÀÇ ÅäÁö·Î Á¶»çÀÏ ÇöÀç ÁÖ°Å¿ë °ÇºÎÁö·Î ÀÌ¿ëÁßÀÔ´Ï´Ù.
7)ÀÎÁ¢ µµ·Î»óŵî
´ë»ó´ÜÁö µ¿ÃøÀ¸·Î 2Â÷¼±µµ·Î¿¡ Á¢Çϰí, ºÏÃøÀ¸·Î Æø ¾à 3¹ÌÅÍÀÇ Æ÷Àåµµ·Î¿¡ Á¢ÇÕ´Ï´Ù.
8)ÅäÁöÀÌ¿ë°èȹ ¹× Á¦ÇÑ»óÅÂ
¨ç: µµ½ÃÁö¿ª, ÀϹݻó¾÷Áö¿ª, Á¦2Á¾ÀϹÝÁÖ°ÅÁö¿ª, ¼Ò·Î2·ù(Æø 8m-10m)(Á¢ÇÕ), Áß·Î3·ù
(Æø 12m-15m)(2020-06-30)(Á¢ÇÕ) °¡Ãà»çÀ°Á¦Çѱ¸¿ª(2017-11-30)(ÀüºÎÁ¦Çѱ¸¿ª)<°¡ÃàºÐ´¢ÀÇ
°ü¸® ¹× À̿뿡 °üÇÑ ¹ý·ü>ÀÔ´Ï´Ù.
9)°øºÎ¿ÍÀÇ Â÷ÀÌ
--
10)±âŸÂü°í»çÇ×(ÀÓ´ë°ü·Ê ¹× ±âŸ)
ÀÓ´ë°ü°è : ¹Ì»óÀÔ´Ï´Ù.
±âŸ : --
Âü°í
»çÇ×
ÁÖ°Å¿ë ¿ÀÇǽºÅÚ·Î ÀÌ¿ëÁß
ºÎµ¿»êÇ¥½Ã Á¦1È£ : ºÎ¾ÈÀ¾ ºÎ¾Èij½½¿Â¸®ºä 204È£ÀÓ. ºÎµ¿»êÇ¥½Ã Á¦2È£ : ºÎ¾ÈÀ¾ ºÎ¾Èij½½¿Â¸®ºä 205È£ÀÓ.

°ÇÃ๰ÇöȲ

¼ÒÀçÁö ÀüºÏƯº°ÀÚÄ¡µµ ºÎ¾È±º ºÎ¾ÈÀ¾ ¼­¿Ü¸® 38-10¹øÁö
´ëÁö¸éÀû 1299§³
(393.64Æò)
¿¬¸éÀû 6571.36§³
(1991.32Æò)
°ÇÃà¸éÀû 781.89§³
(236.94Æò)
¿ëÀû·ü»êÁ¤
¿¬¸éÀû
5453.1§³
(1652.45Æò)
°ÇÆóÀ² 60.19% ¿ëÀû·ü 419.79%
Áö»óÃþ¼ö 10Ãþ ÁöÇÏÃþ¼ö 1Ãþ
ÁÖ¿ëµµ °øµ¿ÁÖÅà ±¸Á¶ ö±ÙÄÜÅ©¸®Æ®±¸Á¶
Âø°øÀÏÀÚ 2014.11.03 »ç¿ë½ÂÀÎÀÏÀÚ 2020.06.08
°ÇÃ๰Ãþº°ÇöȲ [º¸±â]


±¹ÅäºÎ½Ç°Å·¡°¡ ÀüºÏƯº°ÀÚÄ¡µµ ºÎ¾È±º ºÎ¾ÈÀ¾ ¼­¿Ü¸®

¡Ü ¸Å¸Å

¸éÀû(§³), ±Ý¾×(¸¸¿ø)

¡Ü Àü¼¼

¸éÀû(§³), ±Ý¾×(¸¸¿ø)

°è¾àÀϰǹ°¸íĪÃþÀü¿ëº¸Áõ±Ý¿ù¼¼°ÇÃà
25.08.07ºÎ¾È ij½½¿Â¸®ºä246.981,700342020
25.07.23ºÎ¾È ij½½¿Â¸®ºä237.218,00002020
25.06.22ºÎ¾È ij½½¿Â¸®ºä243.081,000502020
24.10.16ºÎ¾È ij½½¿Â¸®ºä247.682,000452020

µî±âºÎµîº» ¿ä¾à(°Ç¹°)

  Á¢¼öÀÏÀÚ µî±â¸ñÀû/±Ç¸®ÀÚ ±Ç¸®±Ý¾× ±âÁØ
1 2020³â11¿ù5ÀÏ
¼ÒÀ¯±Ç
À¯OOOO
¼Ò¸ê
2 2020³â11¿ù5ÀÏ
±ÙÀú´ç±Ç
È­OOOO
100,133,000 ¼Ò¸ê±âÁØ
3 2021³â3¿ù24ÀÏ
°¡¾Ð·ù
±ÙOOOO
58,052,750 ¼Ò¸ê
4 2023³â8¿ù31ÀÏ
¾Ð·ù
±¹
¼Ò¸ê
5 2024³â2¿ù19ÀÏ
¾Ð·ù
±¹OOOO
¼Ò¸ê
6 2024³â2¿ù20ÀÏ
°¡¾Ð·ù
±èOO
86,412,000 ¼Ò¸ê
7 2024³â6¿ù3ÀÏ
¾Ð·ù
ÀüOO
¼Ò¸ê
8 2024³â7¿ù5ÀÏ
¾Ð·ù
ºÎOO
¼Ò¸ê
9 2024³â10¿ù10ÀÏ
°­Á¦°æ¸Å
ÀÌOO
¼Ò¸ê

ÀÓÂ÷ÀÎÇöȲ (¹è´ç¿ä±¸Á¾±âÀÏ: 2025-01-09)

ÀÓÂ÷ÀÎ ¿ëµµ/Á¡À¯ º¸Áõ±Ý/¿ù¼¼ ´ëÇ×·Â
ÀüÀÔÀÏ/È®Á¤ÀÏ ¹è´ç¿ä±¸ ºñ°í
°íOO ºÎµ¿»êÇ¥½ÃÁ¦1È£(204È£) »ï¹é¸¸¿ø
[¿ù]»ç½Ê¿À¸¸¿ø

¹Ì»ó
ºñ°í
(¸Å°¢¹°°Ç
¸í¼¼¼­)
°í¿µ¿õ:ÀüÀÔ µÇ¾îÀÖÁö ¾ÊÀ½

¿©ÀÇÁÖ°æ¸Å Á¶¾ð ÇÑ ¸¶µð

ÃëÇÏ ¶Ç´Â Ãë¼ÒµÉ °¡´É¼ºÀº ÀÖÀ¸³ª ±×´ë·Î ÁøÇàµÉ °¡´É¼ºµµ ¸¹½À´Ï´Ù
¼±Çà°æ¸Å¸¦ ½ÅûÇÑ Ã¤±ÇÀÚ°¡ ¹è´ç ¹Þ¾Æ¾ß ÇÒ ±Ý¾×Àº 2,127,152¿øÀ¸·Î °¨Á¤°¡°Ý ´ëºñ »ó´çÈ÷ ÀûÀº ±Ý¾×À̼­ °æ¸Å°¡ ÃëÇϵǰųª Ãë¼Ò µÉ °¡´É¼ºÀÌ ÀÖ½À´Ï´Ù. ±×·±µ¥ ÈÄÇà°æ¸Å »ç°Ç (Áߺ¹ 2025Ÿ°æ30328,)ÀÌ À־ ÃëÇÏ,Ãë¼ÒµÇÁö ¾Ê°í ÁøÇàµÉ °¡´É¼ºµµ ¸¹½À´Ï´Ù.

ÁÖÀÇ»çÇ× (ÃÖ¼±¼øÀ§ ¼³Á¤ÀÏ: 2020.11.05. ±ÙÀú´ç ¼³Á¤)

¸Å°¢À¸·Î ¼Ò¸êµÇÁö ¾Ê´Â µî±âºÎ±Ç¸®: ÇØ´ç»çÇ×¾øÀ½
¸Å°¢À¸·Î ¼³Á¤µÈ °ÍÀ¸·Î º¸´Â Áö»ó±Ç: ÇØ´ç»çÇ×¾øÀ½
ÁÖ°Å¿ë ¿ÀÇǽºÅÚ·Î ÀÌ¿ëÁß
¡Ø¹Ì³³°ü¸®ºñ(°ø¿ë) Àμö¿©ºÎ¸¦ ÀÔÂû Àü¿¡ È®ÀÎÇϽñ⠹ٶø´Ï´Ù

 

Áö¿ªºÐ¼®

ÁöÇÏö¸í Á÷¼±°Å¸®

Çб³¸í ÀüÈ­¹øÈ£ ÁÖ¼Ò Á÷¼±°Å¸®

¹ý¿ø

ÀüÁÖÁö¹æ¹ý¿ø Á¤À¾Áö¿ø (561-72)Àü¶óºÏµµ Á¤À¾½Ã ¼ö¼º6·Î 29
´ëÇ¥ : 063)570-1000, ¹Î¿ø : 063)570-1180, 1184
°üÇÒÁö¿ª : Á¤À¾½Ã, ºÎ¾È±º, °íⱺ

µî±â¼Ò ÀüÁÖÁö¹æ¹ý¿ø º»¿ø ºÎ¾Èµî±â¼Ò (´ëÇ¥:1544-0773, ÆÑ½º:(063)581-2053, ÀüºÏ ºÎ¾È±º ºÎ¾ÈÀ¾ ¿ë°è±æ 17 (¼±Àº¸® 301-14))
¼¼¹«¼­ Á¤À¾¼¼¹«¼­ (´ëÇ¥:063-530-12, ÆÑ½º:063-533-9101, Àü¶óºÏµµ Á¤À¾½Ã Áß¾Ó1±æ 93 (¼ö¼ºµ¿))

Àαٳ«ÂûÅë°è

±â°£ ¸Å°¢°Ç¼ö Æò±Õ°¨Á¤°¡
Æò±Õ¸Å°¢°¡
¸Å°¢°¡À²
Æò±ÕÀ¯Âû¼ö
3°³¿ù 0°Ç 0¿ø
0¿ø
0%
0ȸ
6°³¿ù 0°Ç 0¿ø
0¿ø
0%
0ȸ
12°³¿ù 0°Ç 0¿ø
0¿ø
0%
0ȸ


º» °æ¸ÅÁ¤º¸´Â ¹ý¿øÀÚ·á¿Í ÀÏÄ¡Çϵµ·Ï ÇÏ¿´À¸³ª ±Ç¸®»çÇ׺¯µ¿, ÀÔ·ÂÂø¿À µîÀÇ ¿øÀÎÀ¸·Î »ç½Ç°ú ´Ù¸¦ ¼ö ÀÖ½À´Ï´Ù. ÀÌ¿ë¾à°ü¿¡ ÀǰЏéÃ¥Á¶°ÇÀ¸·Î Á¦°øµÊÀ» ¾Ë¸®¸ç, °æ¸ÅÀÔÂû½Ã ¹Ýµå½Ã °ü·Ã °øºÎ¸¦ ÀçÈ®ÀÎÇϽñ⠹ٶø´Ï´Ù. º¸´Ù Æí¸®ÇÑ °æ¸ÅÁ¤º¸ Á¦°øÀ» À§ÇØ Áö¼ÓÀûÀ¸·Î °³¼±ÇϰڽÀ´Ï´Ù. ÀÌ¿ëÇØ Áּż­ °¨»çÇÕ´Ï´Ù.