·Î±×ÀÎ
20513
´Ù¼¼´ë(ºô¶ó)
¼­¿ïÁß¾ÓÁö¹æ¹ý¿ø
 °¨Á¤°¡263,000,000 ¿ø
 ÃÖÀú°¡(80%) 210,400,000 ¿ø
 º¸Áõ±Ý(10%) 21,040,000 ¿ø
 Ã»±¸¾×274,000,000 ¿ø
¼­¿ïƯº°½Ã °ü¾Ç±¸ ¹ý¿ø´ÜÁö20±æ 9, 2Ãþ202È£ (½Å¸²µ¿,¿¹±×¸°)
¼­¿ïƯº°½Ã °ü¾Ç±¸ ½Å¸²µ¿ 610-179
»ç°Ç¹øÈ£ 2024Ÿ°æ112965
°æ¸ÅÁ¾·ùºÎµ¿»ê°­Á¦°æ¸Å
¸Å°¢´ë»óÅäÁö ¹× °Ç¹°Àϰý ¸Å°¢
¸Å°¢±âÀÏ    2025.11.13(¸ñ) 10:00 ÀÔÂû 8ÀÏÀü    
ÅäÁö¸éÀû18.71§³(5.66 Æò)
°Ç¹°¸éÀû29.98§³(9.07 Æò)
乫/¼ÒÀ¯ÀÚ»çOO / »çOO
ä±ÇÀÚÁÖOOOOOOO
ÆäÀ̽ººÏ Æ®À§ÅÍ ±¸±Û+
īī¿À½ºÅ丮
īī¿ÀÅå sms¹®ÀÚº¸³»±â
 

±âÀϳ»¿ª

°æ°ú ³¯Â¥ Àú°¨ ÃÖÀú°¡ °á°ú
Á¢¼öÀÏ 2024-07-01 °æ¸ÅÁ¢¼ö
~8ÀÏ 
2024-07-09 °æ¸Å°³½Ã°áÁ¤
~84ÀÏ 
2024-09-23 ¹è´ç¿ä±¸Á¾±âÀÏ
~318ÀÏ 
2025-05-15 100%
263,000,000
À¯Âû
~353ÀÏ 
2025-06-19 80%
210,400,000
À¯Âû
~388ÀÏ 
2025-07-24 64%
168,320,000
À¯Âû
~423ÀÏ 
2025-08-28 51%
134,656,000
º¯°æ
~457ÀÏ 
2025-10-01 100%
263,000,000
À¯Âû
~500ÀÏ 
2025-11-13 80%
210,400,000
ÁøÇà
¹°°Ç¸í¼¼¼­ ÇöȲÁ¶»ç¼­ ¹®°ÇÁ¢¼ö ¼Û´Þ³»¿ª

°¨Á¤Æò°¡ÇöȲ

¸ñ·Ï ÁÖ¼Ò ±¸Á¶/¿ëµµ/´ëÁö±Ç ¸éÀû ºñ°í
´ëÁö±Ç
½Å¸²µ¿ 610-179 331ºÐÀÇ 18.71 18.71 §³
(5.66Æò)
°Ç¹°
½Å¸²µ¿ 610-179 2Ãþ202È£ ö±ÙÄÜÅ©¸®Æ®±¸Á¶ 29.98 §³
(9.07Æò)
1) À§Ä¡/µµ½ÃÁö¿ª/Á¦2Á¾ÀϹÝÁÖ°ÅÁö¿ª/¹ö½ºÁ¤·ùÀå/ö±ÙÄÜÅ©¸®Æ®Á¶ ´õº¸±â
°¨Á¤Æò°¡ ¿äÇ×Ç¥
1)À§Ä¡ ¹× ÁÖÀ§È¯°æ
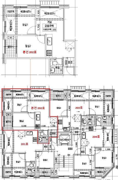
º» °ÇÀº ¼­¿ïƯº°½Ã °ü¾Ç±¸ ½Å¸²µ¿ ¼ÒÀç ³²°­ÁßÇб³" Àαٿ¡ À§Ä¡ÇÏ´Â ±¸ºÐ°Ç¹° 1°³È£(´Ù¼¼´ëÁÖÅÃ, Á¦2Ãþ Á¦202È£)·Î¼­, ÁÖÀ§´Â ´Ù¼¼´ëÁÖÅÃ, ´Üµ¶ÁÖÅÃ, ±Ù¸°»ýȰ½Ã¼³ µîÀÌ ¼ÒÀçÇϰí ÀÖÀ½.
2)±³Åë»óȲ
º»°Ç±îÁö Â÷·®ÁøÀÔÀÌ °¡´ÉÇϸç Àαٿ¡ ¹ö½ºÁ¤·ùÀåÀÌ ¼ÒÀçÇÏ´Â µî Á¦¹Ý ´ëÁß ±³Åë»çÁ¤Àº º¸ÅëÀÓ.
3)°Ç¹°ÀÇ ±¸Á¶
±¸Á¶: ö±ÙÄÜÅ©¸®Æ®Á¶ ö±ÙÄÜÅ©¸®Æ®ÁöºØ
»ç¿ë½ÂÀÎÀÏ : 2018-08-27

4)ÀÌ¿ë»óÅÂ
°øµ¿ÁÖÅÃ(´Ù¼¼´ëÁÖÅÃ)À¸·Î »ç¿ëÁßÀÓ.
5)¼³ºñ³»¿ª
³­¹æ¼³ºñ, À§»ý ¹× ±Þ¹è¼ö½Ã¼³ µî ¼³ºñ°¡ ÀÖÀ½.
6)ÅäÁöÀÇ Çü»ó ¹× ÀÌ¿ë»óÅÂ
º»°ÇÀº ¿Ï°æ»çÀÇ ¼¼ÀåÇü ÅäÁö·Î¼­, °øµ¿ÁÖÅÃ(´Ù¼¼´ë)µî °ÇºÎÁö·Î ÀÌ¿ëÁßÀÓ.
7)ÀÎÁ¢ µµ·Î»óŵî
º»°ÇÀº Æ÷Àåµµ·Î¿¡ Á¢ÇØÀÖÀ¸¸ç, Â÷·®ÁøÀÔ °¡´ÉÇÔ.
8)ÅäÁöÀÌ¿ë°èȹ ¹× Á¦ÇÑ»óÅÂ
µµ½ÃÁö¿ª, Á¦2Á¾ÀϹÝÁÖ°ÅÁö¿ª(7ÃþÀÌÇÏ) °¡Ãà»çÀ°Á¦Çѱ¸¿ª<°¡ÃàºÐ´¢ÀÇ °ü¸® ¹× À̿뿡 °üÇÑ ¹ý·ü>, ±³À°È¯°æº¸È£±¸¿ª(»ó´ë/Àý´ëÁ¤È­±¸¿ª ÃÖÁ¾È®ÀÎÀº µ¿ÀÛ±³À°Ã»¿¡ ¹Ýµå½Ã È®ÀÎÀÌ ÇÊ¿äÇÑ »çÇ×ÀÓ)<±³À°È¯°æ º¸È£¿¡ °üÇÑ ¹ý·ü>, ´ë°ø¹æ¾îÇùÁ¶±¸¿ª(À§Å¹°íµµ:194m)<±º»ç±âÁö ¹× ±º»ç½Ã¼³ º¸È£¹ý>, °ú¹Ð¾ïÁ¦±Ç¿ª<¼öµµ±ÇÁ¤ºñ°èȹ¹ý> ÁßÁ¡°æ°ü°ü¸®±¸¿ª(ÁÖ¿ä»ê ÁÖº¯)ÀÓ.
9)°øºÎ¿ÍÀÇ Â÷ÀÌ
-
10)±âŸÂü°í»çÇ×(ÀÓ´ë°ü·Ê ¹× ±âŸ)
-

°ÇÃ๰ÇöȲ

¼ÒÀçÁö ¼­¿ïƯº°½Ã °ü¾Ç±¸ ½Å¸²µ¿ 610-179¹øÁö
´ëÁö¸éÀû 329.95§³
(99.98Æò)
¿¬¸éÀû 721.66§³
(218.68Æò)
°ÇÃà¸éÀû 183.89§³
(55.72Æò)
¿ëÀû·ü»êÁ¤
¿¬¸éÀû
545.06§³
(165.17Æò)
°ÇÆóÀ² 55.73% ¿ëÀû·ü 165.19%
Áö»óÃþ¼ö 4Ãþ ÁöÇÏÃþ¼ö 1Ãþ
ÁÖ¿ëµµ °øµ¿ÁÖÅà ±¸Á¶ ö±ÙÄÜÅ©¸®Æ®±¸Á¶
Âø°øÀÏÀÚ 2018.03.12 »ç¿ë½ÂÀÎÀÏÀÚ 2018.08.27
°ÇÃ๰Ãþº°ÇöȲ [º¸±â]


±¹ÅäºÎ½Ç°Å·¡°¡ ¼­¿ïƯº°½Ã °ü¾Ç±¸ ½Å¸²µ¿

¡Ü ¸Å¸Å

¸éÀû(§³), ±Ý¾×(¸¸¿ø)

¡Ü Àü¼¼

¸éÀû(§³), ±Ý¾×(¸¸¿ø)

°è¾àÀϰǹ°¸íĪÃþ¿¬¸éÀû´ëÁö±Ý¾×°ÇÃà
24.03.30±ÃÀü¿¡¹öºô(713-6)337.9818.0118,1002003
24.03.29Çϳª¾ÆÆ®ºô¶ó246.8622.9219,0002002
24.03.27µ¨·ç½Ã¾Æ.R329.94524.0929,0002022
24.03.27¼º°­ÄÉ·»½Ã¾Æ252.2636.2332,0002018
24.03.27¿î¼­¸Ç¼Ç(°¡)162.9732.2234,5002002
¢Ñ ´õº¸±â

µî±âºÎµîº» ¿ä¾à(°Ç¹°)

  Á¢¼öÀÏÀÚ µî±â¸ñÀû/±Ç¸®ÀÚ ±Ç¸®±Ý¾× ±âÁØ
1 2019³â5¿ù27ÀÏ
¼ÒÀ¯±Ç
ȍOO
¼Ò¸ê
2 2023³â8¿ù10ÀÏ
ÀÓÂ÷±Ç¼³Á¤
ÀÌOO
274,000,000 Àμö
3 2023³â9¿ù8ÀÏ
°¡¾Ð·ù
ÁÖOOOO
1,279,000,000 ¼Ò¸ê±âÁØ
4 2024³â2¿ù26ÀÏ
¾Ð·ù
±¹
¼Ò¸ê
5 2024³â7¿ù9ÀÏ
°­Á¦°æ¸Å
ÁÖOOOO
¼Ò¸ê

ÀÓÂ÷ÀÎÇöȲ (¹è´ç¿ä±¸Á¾±âÀÏ: 2024-09-23)

ÀÓÂ÷ÀÎ ¿ëµµ/Á¡À¯ º¸Áõ±Ý/¿ù¼¼ ´ëÇ×·Â
ÀüÀÔÀÏ/È®Á¤ÀÏ ¹è´ç¿ä±¸ ºñ°í
ÀÌOO 202È£ 274,000,000
O
2021.07.28.
2021.06.28.
2021.07.28.
ÁÖOOOOOOO 202È£ 274,000,000
O
2021.07.28.
2021.06.28.
2024.8.23. 2021.07.28.~
ºñ°í
(¸Å°¢¹°°Ç
¸í¼¼¼­)
ÁÖÅõµ½Ãº¸Áõ°ø»ç:°æ¸Å½Åûä±ÇÀÚ·Î ÀÓÂ÷ÀÎ ÀÌ¿øÁÖÀÇ ÀÓÂ÷º¸Áõ±Ý¹Ýȯä±ÇÀÇ ¾ç¼öÀÎÀÓ(´ëÇ×·Â ¹× ¿ì¼±º¯Á¦±Ç ½Â°è)

¿©ÀÇÁÖ°æ¸Å Á¶¾ð ÇÑ ¸¶µð

¼±¼øÀ§ ÀÓÂ÷±Çµî±â°¡ µÇ¾î ÀÖ½À´Ï´Ù
´ëÇ×·ÂÀÌ ÀÖ´Â ¼±¼øÀ§ ÀÓÂ÷±Çµî±â ±Ç¸®ÀÚ°¡ ¹è´çÀ» Àü¾× ¹ÞÁö ¸øÇÒ °æ¿ì ³«ÂûÀÚ°¡ ÀÜ¿© º¸Áõ±ÝÀ» ÀμöÇØ¾ßÇÏ´Â °æ¿ìµµ ÀÖ½À´Ï´Ù.

ÁÖÀÇ»çÇ× (ÃÖ¼±¼øÀ§ ¼³Á¤ÀÏ: 2023.9.8.°¡¾Ð·ù ¼³Á¤)

¸Å°¢À¸·Î ¼Ò¸êµÇÁö ¾Ê´Â µî±âºÎ±Ç¸®:
¸Å°¢À¸·Î ¼³Á¤µÈ °ÍÀ¸·Î º¸´Â Áö»ó±Ç:
ÁÖÅõµ½Ãº¸Áõ°ø»ç·Î ºÎÅÍ '¿ì¼±º¯Á¦±Ç¸¸ ÁÖÀåÇÏ°í ´ëÇ×·ÂÀº Æ÷±âÇϸç, ¸Å¼öÀο¡ ´ëÇÑ ÀÜÁ¸ ÀÓ´ëÂ÷º¸Áõ±Ý¹Ýȯ û±¸±ÇÀ» Æ÷±âÇÏ °í ÀÓÂ÷±Çµî±â¸¦ ¸»¼Ò¿¡ µ¿ÀÇÇÑ´Ù'´Â 2025.8.19.ÀÚ È®¾à¼­°¡ Á¦ÃâµÊ
¡Ø¹Ì³³°ü¸®ºñ(°ø¿ë) Àμö¿©ºÎ¸¦ ÀÔÂû Àü¿¡ È®ÀÎÇϽñ⠹ٶø´Ï´Ù

 

Áö¿ªºÐ¼®

ÁöÇÏö¸í Á÷¼±°Å¸®

Çб³¸í ÀüÈ­¹øÈ£ ÁÖ¼Ò Á÷¼±°Å¸®

¹ý¿ø

¼­¿ïÁß¾ÓÁö¹æ¹ý¿ø (065-94)¼­¿ïƯº°½Ã ¼­Ãʱ¸ ¼­ÃÊÁß¾Ó·Î 157 (¼­Ãʵ¿)
´ëÇ¥ : 02)530-1114, ¾ß°£ : 02)530-1280/536-8003
°üÇÒÁö¿ª : Á¾·Î±¸, Áß±¸, °­³²±¸, ¼­Ãʱ¸, °ü¾Ç±¸, µ¿ÀÛ±¸

µî±â¼Ò ¼­¿ïÁß¾ÓÁö¹æ¹ý¿ø º»¿ø µî±â±¹ (´ëÇ¥:1544-0773, ÆÑ½º:(02)590-1881, ¼­¿ïƯº°½Ã ¼­Ãʱ¸ ¹ý¿ø·Î3±æ 14 (¼­Ãʵ¿ 1707-4))
¼¼¹«¼­ °ü¾Ç¼¼¹«¼­ (´ëÇ¥:02-2173-42, ÆÑ½º:02-2173-4269, ¼­¿ïƯº°½Ã °ü¾Ç±¸ ¹®¼º·Î 187(½Å¸²µ¿))

Àαٳ«ÂûÅë°è

±â°£ ¸Å°¢°Ç¼ö Æò±Õ°¨Á¤°¡
Æò±Õ¸Å°¢°¡
¸Å°¢°¡À²
Æò±ÕÀ¯Âû¼ö
3°³¿ù 60°Ç 293,966,133¿ø
214,888,719¿ø
72%
4.9ȸ
6°³¿ù 91°Ç 293,622,725¿ø
210,115,062¿ø
71%
4.5ȸ
12°³¿ù 223°Ç 346,086,849¿ø
256,308,537¿ø
75%
3.5ȸ


º» °æ¸ÅÁ¤º¸´Â ¹ý¿øÀÚ·á¿Í ÀÏÄ¡Çϵµ·Ï ÇÏ¿´À¸³ª ±Ç¸®»çÇ׺¯µ¿, ÀÔ·ÂÂø¿À µîÀÇ ¿øÀÎÀ¸·Î »ç½Ç°ú ´Ù¸¦ ¼ö ÀÖ½À´Ï´Ù. ÀÌ¿ë¾à°ü¿¡ ÀǰЏéÃ¥Á¶°ÇÀ¸·Î Á¦°øµÊÀ» ¾Ë¸®¸ç, °æ¸ÅÀÔÂû½Ã ¹Ýµå½Ã °ü·Ã °øºÎ¸¦ ÀçÈ®ÀÎÇϽñ⠹ٶø´Ï´Ù. º¸´Ù Æí¸®ÇÑ °æ¸ÅÁ¤º¸ Á¦°øÀ» À§ÇØ Áö¼ÓÀûÀ¸·Î °³¼±ÇϰڽÀ´Ï´Ù. ÀÌ¿ëÇØ Áּż­ °¨»çÇÕ´Ï´Ù.