·Î±×ÀÎ
225
¾ÆÆÄÆ®
¼­¿ïºÏºÎÁö¹æ¹ý¿ø
 °¨Á¤°¡429,000,000 ¿ø
 ÃÖÀú°¡(80%) 343,200,000 ¿ø
 º¸Áõ±Ý(10%) 34,320,000 ¿ø
 Ã»±¸¾×249,638,763 ¿ø
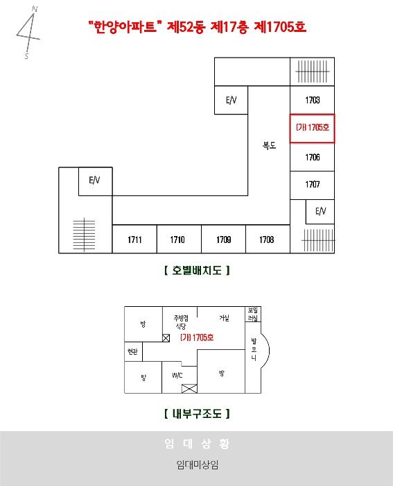
¼­¿ïƯº°½Ã µµºÀ±¸ ÇØµî·Î25±æ 36, 52µ¿ 17Ãþ 1705È£ (½Ö¹®µ¿,ÇÑ¾ç¾ÆÆÄÆ®)
¼­¿ïƯº°½Ã µµºÀ±¸ ½Ö¹®µ¿ 59-3
»ç°Ç¹øÈ£ 2024Ÿ°æ104949
Áߺ¹»ç°ÇÁߺ¹ 2024Ÿ°æ3558,
°æ¸ÅÁ¾·ùºÎµ¿»êÀÓÀǰæ¸Å
¸Å°¢´ë»óÅäÁö ¹× °Ç¹°Àϰý ¸Å°¢
¸Å°¢±âÀÏ    2026.03.10(È­) 10:00 ÀÔÂû 39ÀÏÀü    
ÅäÁö¸éÀû33.05§³(10.00 Æò)
°Ç¹°¸éÀû65.37§³(19.77 Æò)
乫/¼ÒÀ¯ÀÚ¾öO / ¾öO
ä±ÇÀÚÁÖOOO OOOOOOO
ÆäÀ̽ººÏ Æ®À§ÅÍ ±¸±Û+
īī¿À½ºÅ丮
īī¿ÀÅå sms¹®ÀÚº¸³»±â
 

±âÀϳ»¿ª

°æ°ú ³¯Â¥ Àú°¨ ÃÖÀú°¡ °á°ú
Á¢¼öÀÏ 2024-03-26 °æ¸ÅÁ¢¼ö
~0ÀÏ 
2024-03-26 °æ¸Å°³½Ã°áÁ¤
~71ÀÏ 
2024-06-05 ¹è´ç¿ä±¸Á¾±âÀÏ
~338ÀÏ 
2025-02-27 100%
429,000,000
À¯Âû
~378ÀÏ 
2025-04-08 80%
343,200,000
¸Å°¢
³«Âû°¡ 407,038,447 (95%)
~421ÀÏ 
2025-05-21 ¹Ì³³
~714ÀÏ 
2026-03-10 80%
343,200,000
ÁøÇà
¹°°Ç¸í¼¼¼­ ÇöȲÁ¶»ç¼­ ¹®°ÇÁ¢¼ö ¼Û´Þ³»¿ª

°¨Á¤Æò°¡ÇöȲ

¸ñ·Ï ÁÖ¼Ò ±¸Á¶/¿ëµµ/´ëÁö±Ç ¸éÀû ºñ°í
´ëÁö±Ç
½Ö¹®µ¿ 59-3 15230.7ºÐÀÇ 33.052 33.052 §³
(10.00Æò)
°Ç¹°
ÇØµî·Î25±æ 36 52µ¿ 17Ãþ 1705È£ ö±ÙÄÜÅ©¸®Æ®±¸Á¶ 65.37 §³
(19.77Æò)
1) À§Ä¡/Á¦3Á¾ÀϹÝÁÖ°ÅÁö¿ª/ÁöÇÏö/³ë¼±¹ö½º Á¤·ùÀå/ö±ÙÄÜÅ©¸®Æ®Á¶/½º¶óºêÁöºØ ´õº¸±â
°¨Á¤Æò°¡ ¿äÇ×Ç¥
1)À§Ä¡ ¹× ÁÖÀ§È¯°æ
¼­¿ïƯº°½Ã µµºÀ±¸ ½Ö¹®µ¿ ¼ÒÀç¡°¼¼±×·çÆÐ¼ÇµðÀÚÀΰíµîÇб³¡±µ¿Ãø Àαٿ¡ À§Ä¡Çϸç, ÁÖÀ§´Â ¾ÆÆÄÆ®, ±Ù¸°»ýȰ½Ã¼³ µîÀÌ È¥ÀçÇÏ´Â Áö¿ªÀ¸·Î Àü¹ÝÀûÀÎ ÁÖÀ§È¯°æÀº º¸Åë½ÃµÊ.
2)±³Åë»óȲ
´ë»ó¹°°Ç±îÁö Â÷·® ÃâÀÔÀÌ °¡´ÉÇϰí Àαٿ¡ ³ë¼±¹ö½º Á¤·ùÀå, ±Ù°Å¸®¿¡ ÁöÇÏö 4È£¼± "½Ö¹®¿ª" µîÀÌ ¼ÒÀçÇϴ¹Ù, Á¦¹Ý ±³Åë»óȲÀº º¸ÅëÀÓ.
3)°Ç¹°ÀÇ ±¸Á¶
1991³â 5¿ù 28ÀÏÀÚ·Î »ç¿ë½ÂÀÎµÈ Ã¶±ÙÄÜÅ©¸®Æ®Á¶ ½º¶óºêÁöºØ ÁöÇÏ 1Ãþ, Áö»ó 17Ãþ °Ç¹° ³» Á¦17Ãþ Á¦1705È£·Î¼­,

¿Üº® : ¸ð¸£Å¸¸£ À§ ÆäÀÎÆÃ ¸¶°¨ µî,
³»º® : º®Áö ¹× ÀϺΠŸÀÏ ºÙÀÓ ¸¶°¨ µî,
¹Ù´Ú : ŸÀÏ ºÙÀÓ ¸¶°¨ µî,
âȣ : »õ½Ã âȣ ¸¶°¨ µîÀÓ.
4)ÀÌ¿ë»óÅÂ
±âÈ£ (°¡)´Â °øºÎ»ó ¾ÆÆÄÆ®(¹æ 3, W/C1, ÁÖ¹æ¹×½Ä´ç, °Å½Ç µî)·Î ÀÌ¿ë ÁßÀÓ.
5)¼³ºñ³»¿ª
À§»ý ¹× ±Þ¡¤¹è¼ö¼³ºñ, ½Â°­±â ¼³ºñ, È­ÀçŽÁö ¼³ºñ µîÀÌ ÀÖÀ½.

6)ÅäÁöÀÇ Çü»ó ¹× ÀÌ¿ë»óÅÂ
ÀÎÁ¢Áö ¹× ÀÎÁ¢ÇÊÁö ´ëºñ µî°íÆòźÇÑ Áö´ëÀÇ »ç´Ù¸®Çü ÅäÁö·Î¼­ ÁÖ°Å¿ë ¹× »ó¾÷¿ë ºÎÁö·Î ÀÌ¿ëÁßÀÓ.
7)ÀÎÁ¢ µµ·Î»óŵî
º»°ÇÀÌ À§Ä¡ÇÑ ´ÜÁö ¿Ü°û ³²ÃøÀ¸·Î ³ëÆø ¾à 8¹ÌÅÍ ³»¿Ü, ¼­ÃøÀ¸·Î ³ëÆø ¾à 8¹ÌÅÍ ³»¿Ü, µ¿ÃøÀ¸·Î ³ëÆø ¾à 10¹ÌÅÍ ³»¿ÜÀÇ Æ÷Àåµµ·Î¿Í °¢°¢ Á¢ÇÔ. ´ÜÁö ³»ºÎ¿¡ ³ëÆø ¾à 6¹ÌÅÍÀÇ µµ·Î°¡ °³¼³µÇ¾î ÀÖÀ½.
8)ÅäÁöÀÌ¿ë°èȹ ¹× Á¦ÇÑ»óÅÂ
Á¦3Á¾ÀϹÝÁÖ°ÅÁö¿ª, µµ·Î(Á¢ÇÕ), °¡Ãà»çÀ°Á¦Çѱ¸¿ª<°¡ÃàºÐ´¢ÀÇ °ü¸® ¹× À̿뿡 °üÇÑ ¹ý·ü>, ±³À°È¯°æº¸È£±¸¿ª(ÃÖÁ¾È®ÀÎÀº °üÇÒ±³À°Ã»¿¡ ¹Ýµå½Ã È®ÀÎ)<±³À°È¯°æ º¸È£¿¡ °üÇÑ ¹ý·ü>, »ó´ëº¸È£±¸¿ª(ÃÖÁ¾È®ÀÎÀº °üÇÒ±³À°Ã»¿¡ ¹Ýµå½Ã È®ÀÎ)<±³À°È¯°æ º¸È£¿¡ °üÇÑ ¹ý·ü>, ´ë°ø¹æ¾îÇùÁ¶±¸¿ª(À§Å¹°íµµ:77-257m)<±º»ç±âÁö ¹× ±º»ç½Ã¼³ º¸È£¹ý>, °ú¹Ð¾ïÁ¦±Ç¿ª<¼öµµ±ÇÁ¤ºñ°èȹ¹ý>ÀÓ.
9)°øºÎ¿ÍÀÇ Â÷ÀÌ
-
10)±âŸÂü°í»çÇ×(ÀÓ´ë°ü·Ê ¹× ±âŸ)
ÀÓ´ë¹Ì»óÀÓ.
Âü°í
»çÇ×

* Æó¹®ºÎÀç·Î ¼ÒÀ¯ÀÚ ¹× Á¡À¯ÀÚµéÀ» ¸¸³ªÁö ¸øÇÏ¿© ³ëÅ©ÇÏ¿©µµ ÀÀ´äÀÌ ¾øÀ½. * ¾È³»¹®À» Çö°ü¹®¿¡ ºÎÂøÇÏ¿´À¸³ª ¾Æ¹« ¿¬¶ôÀÌ ¾ø¾î Á¡À¯ÀÚ È®ÀÎ ºÒ´ÉÀÓ.

°ÇÃ๰ÇöȲ

¼ÒÀçÁö ¼­¿ïƯº°½Ã µµºÀ±¸ ½Ö¹®µ¿ 59-3¹øÁö
´ëÁö¸éÀû   ¿¬¸éÀû 10866.9§³
(3293Æò)
°ÇÃà¸éÀû   ¿ëÀû·ü»êÁ¤
¿¬¸éÀû
 
°ÇÆóÀ²   ¿ëÀû·ü  
Áö»óÃþ¼ö 15Ãþ ÁöÇÏÃþ¼ö 1Ãþ
ÁÖ¿ëµµ °øµ¿ÁÖÅà ±¸Á¶ ö±ÙÄÜÅ©¸®Æ®±¸Á¶
Âø°øÀÏÀÚ »ç¿ë½ÂÀÎÀÏÀÚ 1991.05.28
°ÇÃ๰Ãþº°ÇöȲ [º¸±â]


±¹ÅäºÎ½Ç°Å·¡°¡ ¼­¿ïƯº°½Ã µµºÀ±¸ ½Ö¹®µ¿

¡Ü ¸Å¸Å

¸éÀû(§³), ±Ý¾×(¸¸¿ø)

¡Ü Àü¼¼

¸éÀû(§³), ±Ý¾×(¸¸¿ø)

°è¾àÀÏARTÃþÀü¿ëº¸Áõ±Ý¿ù¼¼°ÇÃà
26.01.15ÇѾç5184.63518,000551991
26.01.07ÇѾç5176.40532,00001991
25.12.24ÇѾç5984.63530,00001991
25.12.20ÇѾç51184.6355,0001451991
25.12.17ÇѾç515121.29535,85001991
¢Ñ ´õº¸±â

µî±âºÎµîº» ¿ä¾à(°Ç¹°)

  Á¢¼öÀÏÀÚ µî±â¸ñÀû/±Ç¸®ÀÚ ±Ç¸®±Ý¾× ±âÁØ
1 2020³â5¿ù19ÀÏ
¼ÒÀ¯±Ç
¾öO
¼Ò¸ê
2 2020³â5¿ù19ÀÏ
±ÙÀú´ç±Ç
(OOOO
132,000,000 ¼Ò¸ê±âÁØ
3 2023³â2¿ù10ÀÏ
±ÙÀú´ç±Ç
(OOOO
283,200,000 ¼Ò¸ê
4 2023³â12¿ù20ÀÏ
°¡¾Ð·ù
½ÅOOOO
8,251,192 ¼Ò¸ê
5 2024³â1¿ù30ÀÏ
°¡¾Ð·ù
¼­OOOO
13,537,500 ¼Ò¸ê
6 2024³â2¿ù8ÀÏ
°¡¾Ð·ù
ÇÏOOOO
24,261,532 ¼Ò¸ê
7 2024³â3¿ù6ÀÏ
°¡¾Ð·ù
¼ÒOOOO
49,741,841 ¼Ò¸ê
8 2024³â3¿ù11ÀÏ
°¡¾Ð·ù
·ÔOOOO
15,753,514 ¼Ò¸ê
9 2024³â3¿ù26ÀÏ
ÀÓÀǰæ¸Å
(OOOO
¼Ò¸ê
10 2024³â3¿ù29ÀÏ
¾Ð·ù
±¹OOOO
¼Ò¸ê
11 2024³â6¿ù7ÀÏ
ÀÓÀǰæ¸Å
(OOOO
¼Ò¸ê

ÀÓÂ÷ÀÎÇöȲ (¹è´ç¿ä±¸Á¾±âÀÏ: 2024-06-05)


Á¶»çµÈ ÀÓÂ÷³»¿ªÀÌ ¾ø½À´Ï´Ù


¿©ÀÇÁÖ°æ¸Å Á¶¾ð ÇÑ ¸¶µð


ÁÖÀÇ»çÇ× (ÃÖ¼±¼øÀ§ ¼³Á¤ÀÏ: )

¸Å°¢À¸·Î ¼Ò¸êµÇÁö ¾Ê´Â µî±âºÎ±Ç¸®:
¸Å°¢À¸·Î ¼³Á¤µÈ °ÍÀ¸·Î º¸´Â Áö»ó±Ç:
¡Ø¹Ì³³°ü¸®ºñ(°ø¿ë) Àμö¿©ºÎ¸¦ ÀÔÂû Àü¿¡ È®ÀÎÇϽñ⠹ٶø´Ï´Ù

 

Áö¿ªºÐ¼®

ÁöÇÏö¸í Á÷¼±°Å¸®

Çб³¸í ÀüÈ­¹øÈ£ ÁÖ¼Ò Á÷¼±°Å¸®

¹ý¿ø

¼­¿ïºÏºÎÁö¹æ¹ý¿ø (013-22)¼­¿ïƯº°½Ã µµºÀ±¸ ¸¶µé·Î749 (µµºÀ2µ¿ 626)
´ëÇ¥ : 02)910-3114
°üÇÒÁö¿ª : °­ºÏ±¸, ³ë¿ø±¸, µµºÀ±¸, µ¿´ë¹®±¸, ¼ººÏ±¸, Áß¶û±¸

µî±â¼Ò ¼­¿ïºÏºÎÁö¹æ¹ý¿ø º»¿ø µî±â±¹ (´ëÇ¥:1544-0773, ÆÑ½º:(02)2030-2330, ¼­¿ïƯº°½Ã µµºÀ±¸ ³ëÇØ·Î 325 (⵿ 337¹øÁö))
¼¼¹«¼­ µµºÀ¼¼¹«¼­ (´ëÇ¥:02-944-020, ÆÑ½º:02-984-2580, ¼­¿ïƯº°½Ã °­ºÏ±¸ µµºÀ·Î 117 (¹Ì¾Æµ¿))

Àαٳ«ÂûÅë°è

±â°£ ¸Å°¢°Ç¼ö Æò±Õ°¨Á¤°¡
Æò±Õ¸Å°¢°¡
¸Å°¢°¡À²
Æò±ÕÀ¯Âû¼ö
3°³¿ù 18 546416667
465793500
85
1.2
6°³¿ù 42 574797619
501083219
86
1.3
12°³¿ù 70 568382657
482157769
84
1.4


º» °æ¸ÅÁ¤º¸´Â ¹ý¿øÀÚ·á¿Í ÀÏÄ¡Çϵµ·Ï ÇÏ¿´À¸³ª ±Ç¸®»çÇ׺¯µ¿, ÀÔ·ÂÂø¿À µîÀÇ ¿øÀÎÀ¸·Î »ç½Ç°ú ´Ù¸¦ ¼ö ÀÖ½À´Ï´Ù. ÀÌ¿ë¾à°ü¿¡ ÀǰЏéÃ¥Á¶°ÇÀ¸·Î Á¦°øµÊÀ» ¾Ë¸®¸ç, °æ¸ÅÀÔÂû½Ã ¹Ýµå½Ã °ü·Ã °øºÎ¸¦ ÀçÈ®ÀÎÇϽñ⠹ٶø´Ï´Ù. º¸´Ù Æí¸®ÇÑ °æ¸ÅÁ¤º¸ Á¦°øÀ» À§ÇØ Áö¼ÓÀûÀ¸·Î °³¼±ÇϰڽÀ´Ï´Ù. ÀÌ¿ëÇØ Áּż­ °¨»çÇÕ´Ï´Ù.