·Î±×ÀÎ
58
±Ù¸°ÁÖÅÃ
¼­¿ïÁß¾ÓÁö¹æ¹ý¿ø
 °¨Á¤°¡1,916,400,600 ¿ø
 ÃÖÀú°¡(64%) 1,226,496,000 ¿ø
 º¸Áõ±Ý(10%) 122,649,600 ¿ø
 Ã»±¸¾×668,888,890 ¿ø
¼­¿ïƯº°½Ã °ü¾Ç±¸ ½Å¸²µ¿ 459-21
»ç°Ç¹øÈ£ 2024Ÿ°æ116455
°æ¸ÅÁ¾·ùºÎµ¿»êÀÓÀǰæ¸Å
¸Å°¢´ë»óÅäÁö ¹× °Ç¹°Àϰý¸Å°¢
¸Å°¢±âÀÏ    2025.12.23(È­) 10:00 ÀÔÂû 27ÀÏÀü    
ÅäÁö¸éÀû153.10§³(46.31 Æò)
°Ç¹°¸éÀû310.57§³(93.95 Æò)
乫/¼ÒÀ¯ÀÚÆÄOOOO OOOO OOOOO OOO / ÆÄOOOO OOOO OOOOO OOO
ä±ÇÀÚ°üOOOOOO
ÆäÀ̽ººÏ Æ®À§ÅÍ ±¸±Û+
īī¿À½ºÅ丮
īī¿ÀÅå sms¹®ÀÚº¸³»±â
 

±âÀϳ»¿ª

°æ°ú ³¯Â¥ Àú°¨ ÃÖÀú°¡ °á°ú
Á¢¼öÀÏ 2024-08-21 °æ¸ÅÁ¢¼ö
~0ÀÏ 
2024-08-21 °æ¸Å°³½Ã°áÁ¤
~96ÀÏ 
2024-11-25 ¹è´ç¿ä±¸Á¾±âÀÏ
~188ÀÏ 
2025-02-25 100%
1,916,400,600
º¯°æ
~419ÀÏ 
2025-10-14 100%
1,916,400,600
À¯Âû
~454ÀÏ 
2025-11-18 80%
1,533,120,000
À¯Âû
~489ÀÏ 
2025-12-23 64%
1,226,496,000
ÁøÇà
¹°°Ç¸í¼¼¼­ ÇöȲÁ¶»ç¼­ ¹®°ÇÁ¢¼ö ¼Û´Þ³»¿ª

°¨Á¤Æò°¡ÇöȲ

¸ñ·Ï ÁÖ¼Ò ±¸Á¶/¿ëµµ/´ëÁö±Ç ¸éÀû ºñ°í
ÅäÁö
½Å¸²µ¿ 459-21 ´ëÁö 153.1 §³
(46.31Æò)
°Ç¹°
°üõ·Î19±æ 16-3 Áö1Ãþ ´ÙÁßÁÖÅà ö±ÙÄÜÅ©¸®Æ®±¸Á¶ 91.16 §³
(27.58Æò)
°üõ·Î19±æ 16-3 1Ãþ ´ÙÁßÁÖÅà ö±ÙÄÜÅ©¸®Æ®±¸Á¶ 70.06 §³
(21.19Æò)
°üõ·Î19±æ 16-3 2Ãþ ´ÙÁßÁÖÅà ö±ÙÄÜÅ©¸®Æ®±¸Á¶ 70.06 §³
(21.19Æò)
°üõ·Î19±æ 16-3 3Ãþ ´ÙÁßÁÖÅà ö±ÙÄÜÅ©¸®Æ®±¸Á¶ 68.25 §³
(20.65Æò)
°üõ·Î19±æ 16-3 ¿Áž1Ãþ ö±ÙÄÜÅ©¸®Æ®±¸Á¶ 11.04 §³
(3.34Æò)
1) À§Ä¡/µµ½ÃÁö¿ª/Á¦2Á¾ÀϹÝÁÖ°ÅÁö¿ª/Â÷·®ÃâÀÔ °¡´É/¹ö½ºÁ¤·ùÀå/ÁöÇÏö/ö±ÙÄÜÅ©¸®Æ®±¸Á¶/µµ½Ã°¡½º ´õº¸±â
°¨Á¤Æò°¡ ¿äÇ×Ç¥
1)À§Ä¡ ¹× ÁÖÀ§È¯°æ
º»°ÇÀº ¼­¿ïƯº°½Ã °ü¾Ç±¸ ½Å¸²µ¿ ¼ÒÀç "°ü¾Ç½Å»ç½ÃÀå" ºÏµ¿Ãø Àαٿ¡ À§Ä¡Çϸç, ÁÖÀ§´Â ´Üµ¶ÁÖÅÃ, ´Ù¼¼´ëÁÖÅà ¹× ±Ù¸°»ýȰ½Ã¼³ µîÀÌ È¥ÀçÇÏ´Â Áö¿ªÀÓ.
2)±³Åë»óȲ
º»°Ç±îÁö Á¦¹Ý Â÷·®ÃâÀÔ °¡´ÉÇϸç, Àαٿ¡ ¹ö½ºÁ¤·ùÀå ¹× ÁöÇÏö¿ª(½Å´ë¹æ¿ª)ÀÌ ¼ÒÀçÇÏ¿© ´ëÁß±³Åë¿©°Ç ¹«³­½ÃµÊ.
3)ÇüÅ ¹× ÀÌ¿ë»óÅÂ
¼¼ÀåÇü ÆòÁö·Î¼­, °ÇºÎÁö·Î ÀÌ¿ëÁßÀÓ.
4)ÀÎÁ¢ µµ·Î»óÅÂ
º»°Ç µ¿ÃøÀ¸·Î ³ëÆø 4m ³»¿ÜÀÇ Æ÷Àåµµ·Î¿Í Á¢ÇÔ.
5)ÅäÁöÀÌ¿ë°èȹ ¹× Á¦ÇÑ»óÅÂ
µµ½ÃÁö¿ª, Á¦2Á¾ÀϹÝÁÖ°ÅÁö¿ª(7ÃþÀÌÇÏ), °¡Ãà»çÀ°Á¦Çѱ¸¿ª<°¡ÃàºÐ´¢ÀÇ °ü¸® ¹× À̿뿡 °üÇÑ ¹ý·ü>, ´ë°ø¹æ¾îÇùÁ¶±¸¿ª(À§Å¹°íµµ:194m)<±º»ç±âÁö ¹× ±º»ç½Ã¼³ º¸È£¹ý>, °ú¹Ð¾ïÁ¦±Ç¿ª<¼öµµ
±ÇÁ¤ºñ°èȹ¹ý>, °ÇÃà¹ý Á¦2Á¶Á¦1Ç×Á¦11È£³ª¸ñ¿¡ µû¸¥ µµ·Î(µµ·ÎÀÏºÎÆ÷ÇÔ)ÀÓ.
6)Á¦½Ã¸ñ·Ï ¿ÜÀÇ ¹°°Ç
-
7)°øºÎ¿ÍÀÇ Â÷ÀÌ
-
8)±âŸÂü°í»çÇ×(ÀÓ´ë°ü·Ê ¹× ±âŸ)
-
1)°Ç¹°ÀÇ ±¸Á¶
ö±ÙÄÜÅ©¸®Æ®±¸Á¶ (ö±Ù)ÄÜÅ©¸®Æ®ÁöºØ 3Ãþ °ÇÀ¸·Î¼­,
¿Üº®: ¿ÜÀå¼® ºÙÀÓ µî ¸¶°¨
âȣ: ÇÏÀ̼¦½Ã âȣÀÓ.
2)ÀÌ¿ë»óÅÂ
´Üµ¶ÁÖÅà ¹× ±Ù¸°»ýȰ½Ã¼³·Î ÀÌ¿ëÁßÀÓ.
(ÈÄ÷ "³»ºÎ±¸Á¶µµ" ÂüÁ¶)
3)¼³ºñ³»¿ª
À§»ý ¹× ±Þ¹è¼ö¼³ºñ, µµ½Ã°¡½º°ø±Þ¼³ºñ, ³­¹æ¼³ºñ µî µÇ¾îÀÖÀ½.
4)ºÎÇÕ¹° ¹× Á¾¹°
-
5)°øºÎ¿ÍÀÇ Â÷ÀÌ
-
6)±âŸÂü°í»çÇ×(ÀÓ´ë°ü·Ê ¹× ±âŸ)
-
Âü°í
»çÇ×
Àϰý¸Å°¢
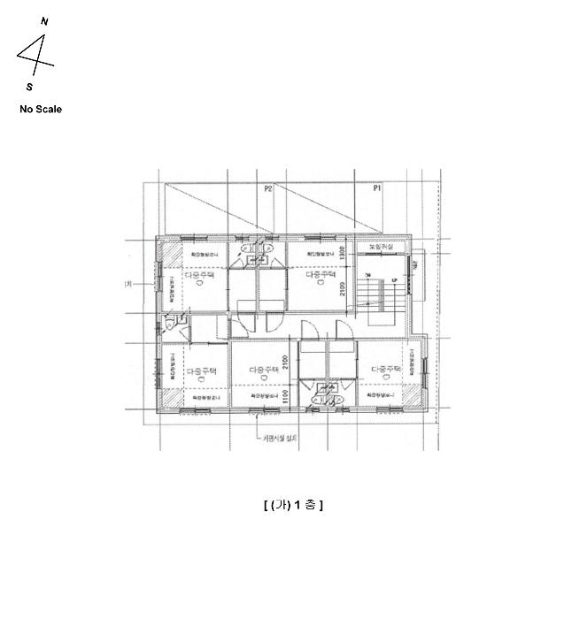
ÁöÃþ

°ÇÃ๰ÇöȲ

¼ÒÀçÁö ¼­¿ïƯº°½Ã °ü¾Ç±¸ ½Å¸²µ¿ 459-21¹øÁö
´ëÁö¸éÀû 152§³
(46.06Æò)
¿¬¸éÀû 299.53§³
(90.77Æò)
°ÇÃà¸éÀû 91.16§³
(27.62Æò)
¿ëÀû·ü»êÁ¤
¿¬¸éÀû
208.37§³
(63.14Æò)
°ÇÆóÀ² 59.97% ¿ëÀû·ü 137.09%
Áö»óÃþ¼ö 3Ãþ ÁöÇÏÃþ¼ö 1Ãþ
ÁÖ¿ëµµ ´Üµ¶ÁÖÅà ±¸Á¶ ö±ÙÄÜÅ©¸®Æ®±¸Á¶
Âø°øÀÏÀÚ 2018.07.17 »ç¿ë½ÂÀÎÀÏÀÚ 2018.12.24
°ÇÃ๰Ãþº°ÇöȲ [º¸±â]


±¹ÅäºÎ½Ç°Å·¡°¡ ¼­¿ïƯº°½Ã °ü¾Ç±¸ ½Å¸²µ¿

¡Ü ¸Å¸Å

¸éÀû(§³), ±Ý¾×(¸¸¿ø)

¡Ü Àü¼¼

¸éÀû(§³), ±Ý¾×(¸¸¿ø)

°è¾àÀÏÀ¯Çü¿¬¸éÀû´ëÁö±Ý¾×°ÇÃà
24.03.27´Ù°¡±¸147.1592.989,9331993
24.03.26´Ù°¡±¸37815996,5001992
24.03.25´Üµ¶248.84212.2130,0001989
24.03.22´Üµ¶213.93142109,7131989
24.03.21´Ù°¡±¸356.0416580,0001995
¢Ñ ´õº¸±â

µî±âºÎµîº» ¿ä¾à(ÅäÁö)

  Á¢¼öÀÏÀÚ µî±â¸ñÀû/±Ç¸®ÀÚ ±Ç¸®±Ý¾× ±âÁØ
1 2022³â8¿ù24ÀÏ
¼ÒÀ¯±Ç
±èOO
¼Ò¸ê
2 2018³â7¿ù20ÀÏ
±ÙÀú´ç±Ç
°üOOOO
792,000,000 ¼Ò¸ê±âÁØ
3 2024³â8¿ù22ÀÏ
ÀÓÀǰæ¸Å
°üOOOO
¼Ò¸ê

µî±âºÎµîº» ¿ä¾à(°Ç¹°)

  Á¢¼öÀÏÀÚ µî±â¸ñÀû/±Ç¸®ÀÚ ±Ç¸®±Ý¾× ±âÁØ
1
¼ÒÀ¯±Ç
±èOO
¼Ò¸ê
2 2018³â12¿ù27ÀÏ
±ÙÀú´ç±Ç
°üOOOO
792,000,000 ¼Ò¸ê±âÁØ
3 2023³â12¿ù20ÀÏ
ÀÓÂ÷±Ç¼³Á¤
±èOO
100,000,000 ¼Ò¸ê
4 2024³â8¿ù13ÀÏ
ÀÓÂ÷±Ç¼³Á¤
±èOO
105,000,000 ¼Ò¸ê
5 2024³â8¿ù22ÀÏ
ÀÓÀǰæ¸Å
°üOOOO
¼Ò¸ê
6 2024³â10¿ù22ÀÏ
¾Ð·ù
±¹OOOO
¼Ò¸ê

ÀÓÂ÷ÀÎÇöȲ (¹è´ç¿ä±¸Á¾±âÀÏ: 2024-11-25)

ÀÓÂ÷ÀÎ ¿ëµµ/Á¡À¯ º¸Áõ±Ý/¿ù¼¼ ´ëÇ×·Â
ÀüÀÔÀÏ/È®Á¤ÀÏ ¹è´ç¿ä±¸ ºñ°í
±ÇOO 202È£ 1Â÷100,000,000¿ø/2Â÷105,000,000¿ø
X
2020.02.14.
1Â÷2020.01.17./2Â÷ ¾øÀ½
2024.9.9. 2020.02.08.~
±èOO 102È£
X
2023.06.05
±èOO 301È£ 1Â÷120,000,000¿ø/2Â÷112,000,000¿ø
[¿ù]2Â÷40,000¿ø
X
2022.04.27.
1Â÷2022.03.11./2Â÷2024.04.17.
2024.11.1. 2022.04.23.~
±èOO 303È£ 1Â÷100,000,000¿ø/2Â÷105,000,000¿ø/3Â÷115,000,000¿ø
X
2019.02.11.
1Â÷2019.01.14./2Â÷2021.01.11./3Â÷2022.11.21.
2024.10.21. 2019.02.10.~
±èOO 205È£ 100,000,000
[¿ù]150,000
X
2021.12.13.
2021.11.09.
2024.9.24. 2021.12.11.~
±èOO 204È£ 1Â÷100,000,000¿ø/2Â÷105,000,000¿ø/3Â÷105,000,000¿ø
[¿ù]3Â÷50,000¿ø
X
2019.02.15.
1Â÷2019.02.14./2Â÷2021.02.02./3Â÷2023.02.27.
2019.02.27.~
¹ÚOO 305È£ 100,000,000
X
2019.02.12.
2019.01.18.
2024.9.11. 2019.01.17.~
¼­OO 101È£
X
2021.03.22
¼ÕOO 105È£
X
2022.03.08
ÀÌOO 401È£ 360,000,000
X
2023.01.02.
2022.11.09.
2024.9.20. 2022.12.31.~
ÀÌOO 302È£ 1Â÷120,000,000¿ø/2Â÷120,000,000¿ø
X
2022.01.28
1Â÷2022.01.03./2Â÷ ¾øÀ½
2024.9.23. 2022.01.28.~
ÀÌOO 304È£ 120,000,000
X
2022.09.27.
2022.08.31.
2024.10.14. 2022.09.27.~
ÀåOO 201È£ 50,000,000
[¿ù]350,000
X
2023.03.29.
2023.02.22.
2024.9.9. 2023.03.29.~
Á¤OO 103È£ 5,000,000
[¿ù]340,000
X
2024.09.12.
2024.09.13.
2024.11.25. 2023.06.06.~
Á¶OO 104È£
X
2024.01.04
ÇãOO 203È£ 1Â÷120,000,000¿ø/2Â÷120,000,000¿ø
X
2022.03.25.
1Â÷2022.03.07./2Â÷2024.02.27.
2024.9.9. 2022.03.25.~

¿©ÀÇÁÖ°æ¸Å Á¶¾ð ÇÑ ¸¶µð


ÁÖÀÇ»çÇ× (ÃÖ¼±¼øÀ§ ¼³Á¤ÀÏ: 2018.07.20.±ÙÀú´ç±Ç(ÅäÁö) ¼³Á¤ 2018.12.27.±ÙÀú´ç±Ç(°Ç¹°))

¸Å°¢À¸·Î ¼Ò¸êµÇÁö ¾Ê´Â µî±âºÎ±Ç¸®:
¸Å°¢À¸·Î ¼³Á¤µÈ °ÍÀ¸·Î º¸´Â Áö»ó±Ç:
Àϰý¸Å°¢
¡Ø¹Ì³³°ü¸®ºñ(°ø¿ë) Àμö¿©ºÎ¸¦ ÀÔÂû Àü¿¡ È®ÀÎÇϽñ⠹ٶø´Ï´Ù

 

Áö¿ªºÐ¼®

ÁöÇÏö¸í Á÷¼±°Å¸®

Çб³¸í ÀüÈ­¹øÈ£ ÁÖ¼Ò Á÷¼±°Å¸®

¹ý¿ø

¼­¿ïÁß¾ÓÁö¹æ¹ý¿ø (065-94)¼­¿ïƯº°½Ã ¼­Ãʱ¸ ¼­ÃÊÁß¾Ó·Î 157 (¼­Ãʵ¿)
´ëÇ¥ : 02)530-1114, ¾ß°£ : 02)530-1280/536-8003
°üÇÒÁö¿ª : Á¾·Î±¸, Áß±¸, °­³²±¸, ¼­Ãʱ¸, °ü¾Ç±¸, µ¿ÀÛ±¸

µî±â¼Ò ¼­¿ïÁß¾ÓÁö¹æ¹ý¿ø º»¿ø µî±â±¹ (´ëÇ¥:1544-0773, ÆÑ½º:(02)590-1881, ¼­¿ïƯº°½Ã ¼­Ãʱ¸ ¹ý¿ø·Î3±æ 14 (¼­Ãʵ¿ 1707-4))
¼¼¹«¼­ °ü¾Ç¼¼¹«¼­ (´ëÇ¥:02-2173-42, ÆÑ½º:02-2173-4269, ¼­¿ïƯº°½Ã °ü¾Ç±¸ ¹®¼º·Î 187(½Å¸²µ¿))

Àαٳ«ÂûÅë°è

±â°£ ¸Å°¢°Ç¼ö Æò±Õ°¨Á¤°¡
Æò±Õ¸Å°¢°¡
¸Å°¢°¡À²
Æò±ÕÀ¯Âû¼ö
3°³¿ù 12°Ç 2,297,481,135¿ø
1,790,853,989¿ø
78%
1.5ȸ
6°³¿ù 22°Ç 2,291,059,145¿ø
1,849,669,208¿ø
80%
1.5ȸ
12°³¿ù 32°Ç 2,209,894,169¿ø
1,735,221,521¿ø
78%
1.7ȸ


º» °æ¸ÅÁ¤º¸´Â ¹ý¿øÀÚ·á¿Í ÀÏÄ¡Çϵµ·Ï ÇÏ¿´À¸³ª ±Ç¸®»çÇ׺¯µ¿, ÀÔ·ÂÂø¿À µîÀÇ ¿øÀÎÀ¸·Î »ç½Ç°ú ´Ù¸¦ ¼ö ÀÖ½À´Ï´Ù. ÀÌ¿ë¾à°ü¿¡ ÀǰЏéÃ¥Á¶°ÇÀ¸·Î Á¦°øµÊÀ» ¾Ë¸®¸ç, °æ¸ÅÀÔÂû½Ã ¹Ýµå½Ã °ü·Ã °øºÎ¸¦ ÀçÈ®ÀÎÇϽñ⠹ٶø´Ï´Ù. º¸´Ù Æí¸®ÇÑ °æ¸ÅÁ¤º¸ Á¦°øÀ» À§ÇØ Áö¼ÓÀûÀ¸·Î °³¼±ÇϰڽÀ´Ï´Ù. ÀÌ¿ëÇØ Áּż­ °¨»çÇÕ´Ï´Ù.