·Î±×ÀÎ
47
µµ½ÃÇü»ýȰÁÖÅÃ
¼­¿ï³²ºÎÁö¹æ¹ý¿ø
 °¨Á¤°¡207,000,000 ¿ø
 ÃÖÀú°¡(51%) 105,984,000 ¿ø
 º¸Áõ±Ý(10%) 10,598,400 ¿ø
 Ã»±¸¾×198,000,000 ¿ø
¼­¿ïƯº°½Ã °­¼­±¸ µîÃÌ·Î13³ª±æ 16-27, Á¦¿¡À̵¿ Á¦2Ãþ Á¦202È£ (µîÃ̵¿, ÆòÈ­¾ÆÆ®ºô)
¼­¿ïƯº°½Ã °­¼­±¸ µîÃ̵¿ 574-3
»ç°Ç¹øÈ£ 2024Ÿ°æ109279
°æ¸ÅÁ¾·ùºÎµ¿»ê°­Á¦°æ¸Å
¸Å°¢´ë»óÅäÁö ¹× °Ç¹°Àϰý¸Å°¢
¸Å°¢±âÀÏ    2026.01.15(¸ñ) 10:00 ÀÔÂû 41ÀÏÀü    
ÅäÁö¸éÀû19.85§³(6.00 Æò)
°Ç¹°¸éÀû29.97§³(9.07 Æò)
乫/¼ÒÀ¯ÀÚ°­OO / °­OO
ä±ÇÀÚÇÏOO
ÆäÀ̽ººÏ Æ®À§ÅÍ ±¸±Û+
īī¿À½ºÅ丮
īī¿ÀÅå sms¹®ÀÚº¸³»±â
 

±âÀϳ»¿ª

°æ°ú ³¯Â¥ Àú°¨ ÃÖÀú°¡ °á°ú
Á¢¼öÀÏ 2024-03-18 °æ¸ÅÁ¢¼ö
~4ÀÏ 
2024-03-22 °æ¸Å°³½Ã°áÁ¤
~99ÀÏ 
2024-06-25 ¹è´ç¿ä±¸Á¾±âÀÏ
~269ÀÏ 
2024-12-12 100%
207,000,000
À¯Âû
~311ÀÏ 
2025-01-23 80%
165,600,000
À¯Âû
~353ÀÏ 
2025-03-06 64%
132,480,000
À¯Âû
~395ÀÏ 
2025-04-17 51%
105,984,000
º¯°æ
~668ÀÏ 
2026-01-15 51%
105,984,000
ÁøÇà
¹°°Ç¸í¼¼¼­ ÇöȲÁ¶»ç¼­ ¹®°ÇÁ¢¼ö ¼Û´Þ³»¿ª

°¨Á¤Æò°¡ÇöȲ

¸ñ·Ï ÁÖ¼Ò ±¸Á¶/¿ëµµ/´ëÁö±Ç ¸éÀû ºñ°í
´ëÁö±Ç
µîÃÌ·Î13³ª±æ 16-27 421.0 ºÐÀÇ 19.85 19.85 §³
(6.00Æò)
°Ç¹°
µîÃÌ·Î13³ª±æ 16-27 Á¦2Ãþ Á¦202È£ (µîÃ̵¿, ÆòÈ­¾ÆÆ®ºô) ö±ÙÄÜÅ©¸®Æ®±¸Á¶ 29.97 §³
(9.07Æò)
¼­¿ïƯº°½Ã °­¼­±¸ µîÃ̵¿ ¼ÒÀç "´ëÀϰíµîÇб³" ³²¼­Ãø Àαٿ¡ À§Ä¡/µµ½ÃÁö¿ª/Á¦2Á¾ÀϹÝÁÖ°ÅÁö¿ª/¹ö½ºÁ¤·ùÀå/Â÷·®Á¢±ÙÀÌ °¡´É/ö±ÙÄÜÅ©¸®Æ®±¸Á¶/Æò½º¶óºêÁöºØ ´õº¸±â
°¨Á¤Æò°¡ ¿äÇ×Ç¥
1) À§Ä¡ ¹× ÁÖÀ§È¯°æ=º»°ÇÀº ¼­¿ïƯº°½Ã °­¼­±¸ µîÃ̵¿ ¼ÒÀç "´ëÀϰíµîÇб³" ³²¼­Ãø Àαٿ¡ À§Ä¡Çϸç, ÁÖÀ§´Â ´Üµ¶ÁÖÅà ¹× ´Ù¼¼´ëÁÖÅÃ, ±Ù¸°»ýȰ½Ã¼³ µîÀÌ ¼ÒÀçÇÏ¿© Á¦¹Ý ÁÖÀ§È¯°æÀº º¸ÅëÀÓ.

2) ±³Åë»óȲ=º»°Ç±îÁö Â÷·®Á¢±ÙÀÌ °¡´ÉÇϸç, Àαٿ¡ ¹ö½ºÁ¤·ùÀåÀÌ ¼ÒÀçÇÏ¿© ´ëÁß±³Åë»çÁ¤Àº º¸ÅëÀÓ.

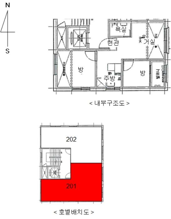
3) °Ç¹°ÀÇ ±¸Á¶=ö±ÙÄÜÅ©¸®Æ®±¸Á¶ Æò½º¶óºêÁöºØ 6Ãþ °Ç¹° ³» Á¦2Ãþ Á¦202È£·Î¼­,
¿Üº® : º®µ¹ ºÙÀÓ ¸¶°¨ µî,
³»º® : º®Áö ¹× ÀϺΠŸÀÏ ¸¶°¨ µî,
âȣ : »õ½Ã âȣ µîÀÓ.

4) ÀÌ¿ë»óÅÂ=µµ½ÃÇü»ýȰÁÖÅÃ(´ÜÁöÇü)(¹æ, ¿å½Ç, °Å½Ç, ÁÖ¹æ, Çö°ü, ¹ßÄÚ´Ï µî)À¸·Î ÀÌ¿ëÁßÀÓ.

5) ¼³ºñ³»¿ª=±Þ¡¤¹è¼ö¼³ºñ ¹× À§»ý¼³ºñ, ³­¹æ¼³ºñ, ½Â°­±â¼³ºñ µîÀÌ µÇ¾îÀÖÀ½.

6) ÅäÁöÀÇ Çü»ó ¹× ÀÌ¿ë»óÅÂ=µ¿ ÇÏÇ⠿ϰæ»çÁö¸¦ ÆòźÇÏ°Ô Á¶¼ºÇÑ °¡ÀåÇü ÅäÁö·Î¼­, µµ½ÃÇü»ýȰÁÖÅÃ(´ÜÁöÇü´Ù¼¼´ë) °ÇºÎÁö·Î ÀÌ¿ëÁßÀÓ.

7) ÀÎÁ¢ µµ·Î»óŵî=º»°Ç µ¿ÃøÀ¸·Î ³ëÆø ¾à 4m ³»¿Ü µµ·Î¿Í Á¢ÇÔ.

8) ÅäÁöÀÌ¿ë°èȹ ¹× Á¦ÇÑ»óÅÂ=µµ½ÃÁö¿ª, Á¦2Á¾ÀϹÝÁÖ°ÅÁö¿ª(7ÃþÀÌÇÏ), Áß¿ä½Ã¼³¹°º¸È£Áö±¸(°øÇ×), °¡Ãà»çÀ°Á¦Çѱ¸¿ª(Áö¿ª°æÁ¦°ú È®ÀÎ ¿ä¸Á)<°¡ÃàºÐ´¢ÀÇ °ü¸® ¹× À̿뿡 °üÇÑ ¹ý·ü>, ¿øÃßÇ¥¸é±¸¿ª(¿øÃßÇ¥¸é)<°øÇ׽ü³¹ý>, »ó´ëº¸È£±¸¿ª(2015-03-24)(°­¼­±³À°Áö¿øÃ» ¹Ýµå½Ã È®Àοä¸Á)<±³À°È¯°æ º¸È£¿¡ °üÇÑ ¹ý·ü>, ´ë°ø¹æ¾îÇùÁ¶±¸¿ª(À§Å¹°íµµ:77-257m)<±º»ç±âÁö ¹× ±º»ç½Ã¼³ º¸È£¹ý>, °ú¹Ð¾ïÁ¦±Ç¿ª<¼öµµ±ÇÁ¤ºñ°èȹ¹ý>ÀÓ.

9) °øºÎ¿ÍÀÇ Â÷ÀÌ=¾øÀ½.

10) ±âŸÂü°í»çÇ×(ÀÓ´ë°ü·Ê ¹× ±âŸ)=ÀÓ´ë°ü°è ¹Ì»óÀÓ.




°ÇÃ๰ÇöȲ

¼ÒÀçÁö ¼­¿ïƯº°½Ã °­¼­±¸ µîÃ̵¿ 574-3¹øÁö
´ëÁö¸éÀû 416.78§³
(126.3Æò)
¿¬¸éÀû 417.06§³
(126.38Æò)
°ÇÃà¸éÀû 106.02§³
(32.13Æò)
¿ëÀû·ü»êÁ¤
¿¬¸éÀû
417.06§³
(126.38Æò)
°ÇÆóÀ² 25.44% ¿ëÀû·ü 100.07%
Áö»óÃþ¼ö 6Ãþ ÁöÇÏÃþ¼ö  
ÁÖ¿ëµµ °øµ¿ÁÖÅà ±¸Á¶ ö±ÙÄÜÅ©¸®Æ®±¸Á¶
Âø°øÀÏÀÚ 2016.10.13 »ç¿ë½ÂÀÎÀÏÀÚ 2017.03.03


µî±âºÎµîº» ¿ä¾à(°Ç¹°)

  Á¢¼öÀÏÀÚ µî±â¸ñÀû/±Ç¸®ÀÚ ±Ç¸®±Ý¾× ±âÁØ
1
¼ÒÀ¯±Ç
°­OO
¼Ò¸ê
2 2020³â4¿ù9ÀÏ
±ÙÀú´ç±Ç
°­OO
150,000,000 ¼Ò¸ê±âÁØ
3 2021³â4¿ù15ÀÏ
°¡¾Ð·ù
ÁÖOOOO
220,000,000 ¼Ò¸ê
4 2022³â1¿ù20ÀÏ
¾Ð·ù
°­OO
¼Ò¸ê
5 2022³â10¿ù27ÀÏ
¾Ð·ù
±¹
¼Ò¸ê
6 2024³â3¿ù22ÀÏ
°­Á¦°æ¸Å
ÇÏOO
¼Ò¸ê
7 2024³â4¿ù8ÀÏ
¾Ð·ù
±¹OOOO
¼Ò¸ê
8 2024³â8¿ù30ÀÏ
ÀÓÂ÷±Ç¼³Á¤
ÇÏOO
198,000,000 ¼Ò¸ê

ÀÓÂ÷ÀÎÇöȲ (¹è´ç¿ä±¸Á¾±âÀÏ: 2024-06-25)

ÀÓÂ÷ÀÎ ¿ëµµ/Á¡À¯ º¸Áõ±Ý/¿ù¼¼ ´ëÇ×·Â
ÀüÀÔÀÏ/È®Á¤ÀÏ ¹è´ç¿ä±¸ ºñ°í
ÇÏOO 202È£. 198,000,000
O
2020.02.28.
2020.03.30.
2024.03.18 2020.02.28.~2022.02.27.

¿©ÀÇÁÖ°æ¸Å Á¶¾ð ÇÑ ¸¶µð


ÁÖÀÇ»çÇ× (ÃÖ¼±¼øÀ§ ¼³Á¤ÀÏ: )

¸Å°¢À¸·Î ¼Ò¸êµÇÁö ¾Ê´Â µî±âºÎ±Ç¸®: ¸Å¼öÀο¡°Ô ´ëÇ×ÇÒ ¼ö ÀÖ´Â ÀÓÂ÷ÀÎÀÌ ÀÖÀ½(ÀÓ´ëÂ÷º¸Áõ±Ý 198,000,000¿ø, ÀüÀÔÀÏÀÚ 2020.02.28., È®Á¤ÀÏÀÚ 2020.03.30.). ¹è´ç¿¡¼­ º¸Áõ±ÝÀÌ Àü¾× º¯Á¦µÇÁö ¾Æ´ÏÇÏ¸é ¸Å¼öÀÎÀÌ ÀμöÇÔ
¸Å°¢À¸·Î ¼³Á¤µÈ °ÍÀ¸·Î º¸´Â Áö»ó±Ç:

 

Áö¿ªºÐ¼®

ÁöÇÏö¸í Á÷¼±°Å¸®

Çб³¸í ÀüÈ­¹øÈ£ ÁÖ¼Ò Á÷¼±°Å¸®

¹ý¿ø

¼­¿ï³²ºÎÁö¹æ¹ý¿ø (080-88)¼­¿ïƯº°½Ã ¾çõ±¸ ½Å¿ù·Î 386(½ÅÁ¤µ¿)
´ëÇ¥ : 02)2192-1114
°üÇÒÁö¿ª : ¿µµîÆ÷±¸, °­¼­±¸, ¾çõ±¸, ±¸·Î±¸, ±Ýõ±¸

µî±â¼Ò ¼­¿ï³²ºÎÁö¹æ¹ý¿ø º»¿ø µî±â±¹ (´ëÇ¥:1544-0773, ÆÑ½º:(02)2629-7307, ¼­¿ïƯº°½Ã ¿µµîÆ÷±¸ °æÀηΠ772 (¹®·¡µ¿ 1°¡))
¼¼¹«¼­ °­¼­¼¼¹«¼­ (´ëÇ¥:02-2630-42, ÆÑ½º:02-2679-8777, ¼­¿ïƯº°½Ã °­¼­±¸ ¸¶°î¼­1·Î 60 (¸¶°îµ¿))

Àαٳ«ÂûÅë°è

±â°£ ¸Å°¢°Ç¼ö Æò±Õ°¨Á¤°¡
Æò±Õ¸Å°¢°¡
¸Å°¢°¡À²
Æò±ÕÀ¯Âû¼ö
3°³¿ù 284 78
200952728

2.5
6°³¿ù 533 78
197680641

3
12°³¿ù 1107 77
195750176

4.2


º» °æ¸ÅÁ¤º¸´Â ¹ý¿øÀÚ·á¿Í ÀÏÄ¡Çϵµ·Ï ÇÏ¿´À¸³ª ±Ç¸®»çÇ׺¯µ¿, ÀÔ·ÂÂø¿À µîÀÇ ¿øÀÎÀ¸·Î »ç½Ç°ú ´Ù¸¦ ¼ö ÀÖ½À´Ï´Ù. ÀÌ¿ë¾à°ü¿¡ ÀǰЏéÃ¥Á¶°ÇÀ¸·Î Á¦°øµÊÀ» ¾Ë¸®¸ç, °æ¸ÅÀÔÂû½Ã ¹Ýµå½Ã °ü·Ã °øºÎ¸¦ ÀçÈ®ÀÎÇϽñ⠹ٶø´Ï´Ù. º¸´Ù Æí¸®ÇÑ °æ¸ÅÁ¤º¸ Á¦°øÀ» À§ÇØ Áö¼ÓÀûÀ¸·Î °³¼±ÇϰڽÀ´Ï´Ù. ÀÌ¿ëÇØ Áּż­ °¨»çÇÕ´Ï´Ù.