·Î±×ÀÎ
2
´Ù¼¼´ë(ºô¶ó)
¼ö¿øÁö¹æ¹ý¿ø ¼º³²Áö¿ø
 °¨Á¤°¡372,000,000 ¿ø
 ÃÖÀú°¡(34%) 127,596,000 ¿ø
 º¸Áõ±Ý(10%) 12,759,600 ¿ø
 Ã»±¸¾×1,613,598,860 ¿ø
°æ±âµµ ±¤Áֽà ÃÊ¿ùÀ¾ Áø»õ°ñ±æ 43-40, 4Ãþ402È£
°æ±âµµ ±¤Áֽà ÃÊ¿ùÀ¾ ´ë½Ö·É¸® 301-58
»ç°Ç¹øÈ£ 2024Ÿ°æ56653 ¹°°Ç¹øÈ£
°æ¸ÅÁ¾·ùºÎµ¿»êÀÓÀǰæ¸Å
¸Å°¢´ë»óÅäÁö ¹× °Ç¹°Àϰý¸Å°¢
¸Å°¢±âÀÏ    2025.11.24(¿ù) 10:00 ÀÔÂû 9ÀÏÀü    
ÅäÁö¸éÀû62.75§³(18.98 Æò)
°Ç¹°¸éÀû58.22§³(17.61 Æò)
乫/¼ÒÀ¯ÀÚÁÖOOO OOOO / ¹ÚOO
ä±ÇÀÚ¼ºOOO OOOOO
ÆäÀ̽ººÏ Æ®À§ÅÍ ±¸±Û+
īī¿À½ºÅ丮
īī¿ÀÅå sms¹®ÀÚº¸³»±â
 

±âÀϳ»¿ª

°æ°ú ³¯Â¥ Àú°¨ ÃÖÀú°¡ °á°ú
Á¢¼öÀÏ 2024-04-22 °æ¸ÅÁ¢¼ö
~1ÀÏ 
2024-04-23 °æ¸Å°³½Ã°áÁ¤
~64ÀÏ 
2024-06-25 ¹è´ç¿ä±¸Á¾±âÀÏ
~217ÀÏ 
2024-11-25 100%
372,000,000
À¯Âû
~266ÀÏ 
2025-01-13 70%
260,400,000
À¯Âû
~301ÀÏ 
2025-02-17 49%
182,280,000
º¯°æ
~476ÀÏ 
2025-08-11 49%
182,280,000
À¯Âû
~511ÀÏ 
2025-09-15 34%
127,596,000
º¯°æ
~581ÀÏ 
2025-11-24 34%
127,596,000
ÁøÇà
¹°°Ç¸í¼¼¼­ ÇöȲÁ¶»ç¼­ ¹®°ÇÁ¢¼ö ¼Û´Þ³»¿ª

°¨Á¤Æò°¡ÇöȲ

¸ñ·Ï ÁÖ¼Ò ±¸Á¶/¿ëµµ/´ëÁö±Ç ¸éÀû ºñ°í
´ëÁö±Ç
Áø»õ°ñ±æ 43-40 502.0 ºÐÀÇ 62.75 62.75 §³
(18.98Æò)
°Ç¹°
Áø»õ°ñ±æ 43-40 4Ãþ402È£ ö±ÙÄÜÅ©¸®Æ®±¸Á¶ 58.22 §³
(17.61Æò)
°æ±âµµ ±¤Áֽà ÃÊ¿ùÀ¾ ´ë½Ö·É¸® ¼ÒÀç ¡®ÃÊ¿ùÀ¾ ÇàÁ¤º¹Áö¼¾ÅÍ¡¯³²¼­Ãø Àαٿ¡ À§Ä¡/°èȹ°ü¸®Áö¿ª/º¸Àü»êÁö/Â÷·®ÀÇ Á¢±ÙÀÌ °¡´É/³ë¼±¹ö½ºÁ¤·ùÀå/ö±ÙÄÜÅ©¸®Æ®±¸Á¶/°æ»çÁöºØ/µµ½Ã°¡½º ´õº¸±â
°¨Á¤Æò°¡ ¿äÇ×Ç¥
1) À§Ä¡ ¹× ÁÖÀ§È¯°æ=º»°ÇÀº °æ±âµµ ±¤Áֽà ÃÊ¿ùÀ¾ ´ë½Ö·É¸® ¼ÒÀç ¡®ÃÊ¿ùÀ¾ ÇàÁ¤º¹Áö¼¾ÅÍ¡¯³²¼­Ãø Àαٿ¡ À§Ä¡Çϰí ÁÖÀ§´Â ´Ù¼¼´ëÁÖÅÃ, ´Üµ¶ÁÖÅÃ, ±Ù¸°»ýȰ½Ã¼³, ÀÓ¾ß µîÀÌ È¥ÀçÇÏ´Â Áö¿ªÀÓ.

2) ±³Åë»óȲ=º»°Ç±îÁö Á¦¹Ý Â÷·®ÀÇ Á¢±ÙÀÌ °¡´ÉÇϰí Àα٠´ë·Îº¯¿¡ ³ë¼±¹ö½ºÁ¤·ùÀåÀÌ ¼ÒÀçÇϳª ¿îÇàȽ¼ö, ¹èÂ÷°£°Ý µîÀ» º¼ ¶§ ´ëÁß±³ÅëÀÌ¿ë»çÁ¤Àº ´Ù¼Ò ºÒÆíÇÔ.

3) °Ç¹°ÀÇ ±¸Á¶=ö±ÙÄÜÅ©¸®Æ®±¸Á¶ °æ»çÁöºØ ÁöÇÏ1Ãþ Áö»ó4Ãþ°Ç ³» º¹¼öÃþ101È£ ¿Ü 6°³È£·Î¼­,

(»ç¿ë½ÂÀÎÀÏ: 2022.11.14.)

¿Üº®: º®µ¹½×±â ¹× ¼®ÀçºÙÀÓ ¸¶°¨ µî,
³»º®: º®Áöµµ¹è ¹× ŸÀϺÙÀÓ, ³»ºÎÀÎÅ׸®¾î ¸¶°¨ µî,
âȣ: »þ½Ã âȣ ¸¶°¨ µîÀÓ.



4) ÀÌ¿ë»óÅÂ=º»°Ç ±âÈ£ 1)-7) °øÈ÷ ´Ù¼¼´ëÁÖÅÃÀ¸·Î ÀÌ¿ë ÁßÀÓ.

5) ¼³ºñ³»¿ª=À§»ý ±Þ¹è¼ö ¼³ºñ, ³­¹æ¼³ºñ, ³Ã¹æ¼³ºñ, µµ½Ã°¡½º ¼³ºñ, ¼ÒÈ­Àü¼³ºñ, È­ÀçŽÁö ¹× °æº¸ ¼³ºñ, ½Â°­±â ¼³ºñ µîÀÌ µÇ¾îÀÖÀ½.

6) ÅäÁöÀÇ Çü»ó ¹× ÀÌ¿ë»óÅÂ=2ÇÊÁö ÀÏ´ÜÀÇ ´Ù¼¼´ëÁÖÅà °ÇºÎÁö·Î ÀÌ¿ë ÁßÀ̸ç, ÀÎÁ¢ÇÊÁö¿Í ÆòźÇÏ°Ô Á¶¼ºµÈ ´ëü·Î »ç´Ù¸®ÇüÀÇ ÅäÁöÀÓ.

7) ÀÎÁ¢ µµ·Î»óŵî=º»°Ç ³²ÃøÀ¸·Î ³ëÆú ¾à 6¹ÌÅÍ ³»¿ÜÀÇ Æ÷Àåµµ·Î¿Í Á¢ÇÔ.

8) ÅäÁöÀÌ¿ë°èȹ ¹× Á¦ÇÑ»óÅÂ=´ë½Ö·É¸® 301-58: °èȹ°ü¸®Áö¿ª(°èȹ°ü¸®), ¼ºÀå°ü¸®°èȹ±¸¿ª(¼ºÀå°ü¸®Áö¿ª(ÁÖ°ÅÇü)), ÀϹÝöµµ(ÀúÃË) °¡Ãà»çÀ°Á¦Çѱ¸¿ª(ÀϺÎÁ¦Çѱ¸¿ª)<°¡ÃàºÐ´¢ÀÇ °ü¸® ¹× À̿뿡 °üÇÑ ¹ý·ü>, ¹èÃâ½Ã¼³¼³Ä¡Á¦ÇÑÁö¿ª<¹°È¯°æº¸Àü¹ý>, Áغ¸Àü»êÁö<»êÁö°ü¸®¹ý>, ÀÚ¿¬º¸Àü±Ç¿ª<¼öµµ±ÇÁ¤ºñ°èȹ¹ý>, °øÀå¼³¸³½ÂÀÎÁö¿ª<¼öµµ¹ý>, öµµº¸È£Áö±¸<öµµ¾ÈÀü¹ý>, Ưº°´ëÃ¥Áö¿ª<ȯ°æÁ¤Ã¥±âº»¹ý>
´ë½Ö·É¸® 308-7: °èȹ°ü¸®Áö¿ª(°èȹ°ü¸®), ¼ºÀå°ü¸®°èȹ±¸¿ª(¼ºÀå°ü¸®Áö¿ª(ÁÖ°ÅÇü)) °¡Ãà»çÀ°Á¦Çѱ¸¿ª(ÀϺÎÁ¦Çѱ¸¿ª)<°¡ÃàºÐ´¢ÀÇ °ü¸® ¹× À̿뿡 °üÇÑ ¹ý·ü>, ¹èÃâ½Ã¼³¼³Ä¡Á¦ÇÑÁö¿ª<¹°È¯°æº¸Àü¹ý>, ÀÚ¿¬º¸Àü±Ç¿ª<¼öµµ±ÇÁ¤ºñ°èȹ¹ý>, °øÀå¼³¸³½ÂÀÎÁö¿ª<¼öµµ¹ý>, öµµº¸È£Áö±¸<öµµ¾ÈÀü¹ý>, Ưº°´ëÃ¥Áö¿ª<ȯ°æÁ¤Ã¥±âº»¹ý> ¿µ³ó¿©°ÇºÒ¸®³óÁö

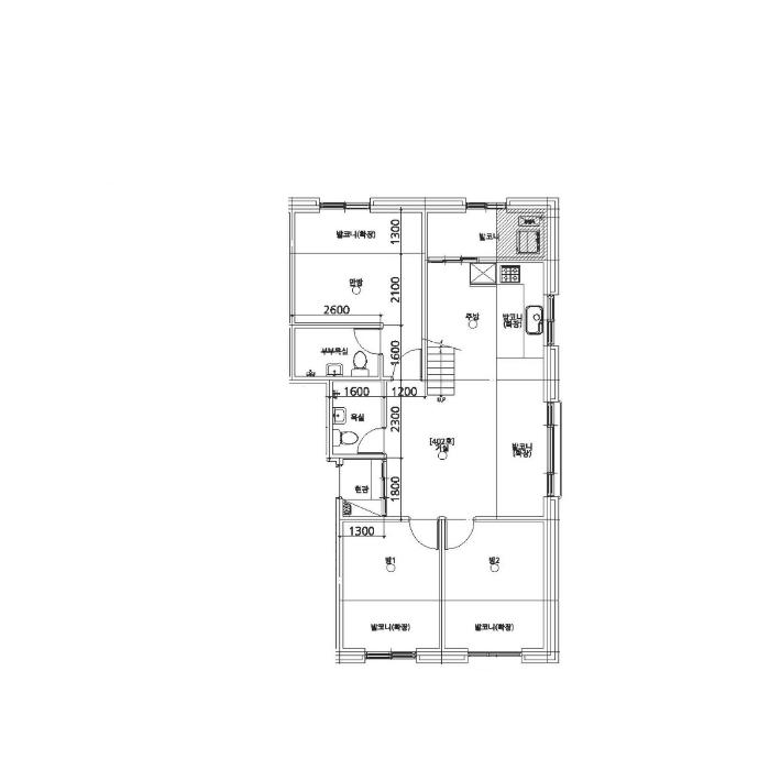
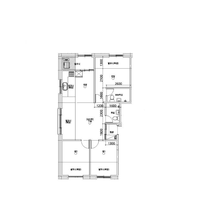
9) °øºÎ¿ÍÀÇ Â÷ÀÌ=º»°Ç ±âÈ£ 7¹ø 402È£´Â ³»ºÎ¿¡ ´Ù¶ôÀÌ ÀÖÀ½.(ÈÄ÷ ³»ºÎ±¸Á¶µµ ÂüÁ¶)

10) ±âŸÂü°í»çÇ×(ÀÓ´ë°ü·Ê ¹× ±âŸ)=ÀÓ´ë°ü°è´Â ¹Ì»óÀÓ.


Âü°í
»çÇ×

°¢ Æó¹®ºÎÀç

°ÇÃ๰ÇöȲ

¼ÒÀçÁö °æ±âµµ ±¤Áֽà ÃÊ¿ùÀ¾ ´ë½Ö·É¸® 301-58¹øÁö
´ëÁö¸éÀû 502§³
(152.12Æò)
¿¬¸éÀû 614.7§³
(186.27Æò)
°ÇÃà¸éÀû 200.14§³
(60.65Æò)
¿ëÀû·ü»êÁ¤
¿¬¸éÀû
501.46§³
(151.96Æò)
°ÇÆóÀ² 39.87% ¿ëÀû·ü 99.89%
Áö»óÃþ¼ö 4Ãþ ÁöÇÏÃþ¼ö 1Ãþ
ÁÖ¿ëµµ °øµ¿ÁÖÅà ±¸Á¶ ö±ÙÄÜÅ©¸®Æ®±¸Á¶
Âø°øÀÏÀÚ 2020.03.09 »ç¿ë½ÂÀÎÀÏÀÚ 2022.11.14
°ÇÃ๰Ãþº°ÇöȲ [º¸±â]


±¹ÅäºÎ½Ç°Å·¡°¡ °æ±âµµ ±¤Áֽà ÃÊ¿ùÀ¾

¡Ü ¸Å¸Å

¸éÀû(§³), ±Ý¾×(¸¸¿ø)

¡Ü Àü¼¼

¸éÀû(§³), ±Ý¾×(¸¸¿ø)

°è¾àÀϰǹ°¸íĪÃþ¿¬¸éÀû´ëÁö±Ý¾×°ÇÃà
24.03.29´ÙÀ̺꾾Ƽ101µ¿272.9987.7525,0002020
24.03.29³×Ãò·²ÆÄÅ©ºô(102µ¿)173.45132.9718,0002016
24.03.28ÆÄ½ºÅÚºô(105µ¿)257.296517,6002018
24.03.28´ÙÀ̺꾾Ƽ101µ¿272.9987.7524,9002020
24.03.25³»Ãß·²ÇϿ콺102µ¿364.7771.62516,2002016
¢Ñ ´õº¸±â

µî±âºÎµîº» ¿ä¾à(°Ç¹°)

  Á¢¼öÀÏÀÚ µî±â¸ñÀû/±Ç¸®ÀÚ ±Ç¸®±Ý¾× ±âÁØ
1
¼ÒÀ¯±Ç
¹ÚOO
¼Ò¸ê
2 2022³â12¿ù14ÀÏ
±ÙÀú´ç±Ç
¼ºOOOO
2,160,000,000 ¼Ò¸ê±âÁØ
3 2023³â4¿ù27ÀÏ
±ÙÀú´ç±Ç
ÀÌOO
225,000,000 ¼Ò¸ê
4 2023³â4¿ù27ÀÏ
±ÙÀú´ç±Ç
ÀåOO
75,000,000 ¼Ò¸ê
5 2024³â1¿ù18ÀÏ
¾Ð·ù
±¤OO
¼Ò¸ê
6 2024³â4¿ù23ÀÏ
ÀÓÀǰæ¸Å
¼ºOOOO
¼Ò¸ê

ÀÓÂ÷ÀÎÇöȲ (¹è´ç¿ä±¸Á¾±âÀÏ: 2024-06-25)


Á¶»çµÈ ÀÓÂ÷³»¿ªÀÌ ¾ø½À´Ï´Ù


¿©ÀÇÁÖ°æ¸Å Á¶¾ð ÇÑ ¸¶µð


ÁÖÀÇ»çÇ× (ÃÖ¼±¼øÀ§ ¼³Á¤ÀÏ: 2022.12.14.±ÙÀú´ç±Ç ¼³Á¤)

¸Å°¢À¸·Î ¼Ò¸êµÇÁö ¾Ê´Â µî±âºÎ±Ç¸®: 1ÅäÁö(À»±¸ 17¹ø, 23¹ø, 24¹ø, 25¹ø) ±¸ºÐÁö»ó±Ç¼³Á¤ µî±â
¸Å°¢À¸·Î ¼³Á¤µÈ °ÍÀ¸·Î º¸´Â Áö»ó±Ç:
2025.02.12 ½Â°èÀÎ ÄÉOOOOOOOOOOOO OOOO ±âÀϺ¯°æ½Åû¼­ Á¦Ãâ
2025.09.09 ½Â°èÀÎ ÄÉOOOOOOOOOOOO OOOO ±âÀϺ¯°æ½Åû¼­ Á¦Ãâ
¡Ø¹Ì³³°ü¸®ºñ(°ø¿ë) Àμö¿©ºÎ¸¦ ÀÔÂû Àü¿¡ È®ÀÎÇϽñ⠹ٶø´Ï´Ù

 

Áö¿ªºÐ¼®

ÁöÇÏö¸í Á÷¼±°Å¸®

Çб³¸í ÀüÈ­¹øÈ£ ÁÖ¼Ò Á÷¼±°Å¸®

¹ý¿ø

¼ö¿øÁö¹æ¹ý¿ø ¼º³²Áö¿ø (131-43)°æ±âµµ ¼º³²½Ã ¼öÁ¤±¸ »ê¼º´ë·Î 451 (´Ü´ëµ¿)
´ëÇ¥ : 031)737-1558, ¾ß°£ : 031)737-1120
°üÇÒÁö¿ª : ¼º³²½Ã, ±¤ÁÖ½Ã, Çϳ²½Ã

µî±â¼Ò ¼ö¿øÁö¹æ¹ý¿ø ¼º³²Áö¿ø ±¤ÁÖµî±â¼Ò (´ëÇ¥:1544-0773, ÆÑ½º:(031)765-2388, °æ±âµµ ±¤Áֽà ÇàÁ¤Å¸¿î·Î 49-15 (¼ÛÁ¤µ¿ 346-4))
¼¼¹«¼­ °æ±â±¤ÁÖ¼¼¹«¼­ (´ëÇ¥:031-880-92, ÆÑ½º:031-769-0417, °æ±âµµ ±¤Áֽà ¹®È­·Î 127)

Àαٳ«ÂûÅë°è

±â°£ ¸Å°¢°Ç¼ö Æò±Õ°¨Á¤°¡
Æò±Õ¸Å°¢°¡
¸Å°¢°¡À²
Æò±ÕÀ¯Âû¼ö
3°³¿ù 35°Ç 239,614,286¿ø
138,363,446¿ø
58%
2.8ȸ
6°³¿ù 90°Ç 239,700,667¿ø
139,726,210¿ø
58%
2.8ȸ
12°³¿ù 195°Ç 234,492,615¿ø
143,097,309¿ø
61%
2.4ȸ


º» °æ¸ÅÁ¤º¸´Â ¹ý¿øÀÚ·á¿Í ÀÏÄ¡Çϵµ·Ï ÇÏ¿´À¸³ª ±Ç¸®»çÇ׺¯µ¿, ÀÔ·ÂÂø¿À µîÀÇ ¿øÀÎÀ¸·Î »ç½Ç°ú ´Ù¸¦ ¼ö ÀÖ½À´Ï´Ù. ÀÌ¿ë¾à°ü¿¡ ÀǰЏéÃ¥Á¶°ÇÀ¸·Î Á¦°øµÊÀ» ¾Ë¸®¸ç, °æ¸ÅÀÔÂû½Ã ¹Ýµå½Ã °ü·Ã °øºÎ¸¦ ÀçÈ®ÀÎÇϽñ⠹ٶø´Ï´Ù. º¸´Ù Æí¸®ÇÑ °æ¸ÅÁ¤º¸ Á¦°øÀ» À§ÇØ Áö¼ÓÀûÀ¸·Î °³¼±ÇϰڽÀ´Ï´Ù. ÀÌ¿ëÇØ Áּż­ °¨»çÇÕ´Ï´Ù.