·Î±×ÀÎ
1012
¾ÆÆÄÆ®
¼ö¿øÁö¹æ¹ý¿ø
 °¨Á¤°¡386,000,000 ¿ø
 ÃÖÀú°¡(70%) 270,200,000 ¿ø
 º¸Áõ±Ý(10%) 27,020,000 ¿ø
 Ã»±¸¾×198,382,903 ¿ø
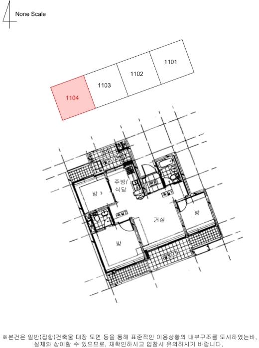
°æ±âµµ ¼ö¿ø½Ã ±Ç¼±±¸ °í»ö·Î 8, 103µ¿ 11Ãþ1104È£ (°í»öµ¿,¿ì¸²ÇÊÀ¯)
°æ±âµµ ¼ö¿ø½Ã ±Ç¼±±¸ °í»öµ¿ 915
»ç°Ç¹øÈ£ 2023Ÿ°æ12226
°æ¸ÅÁ¾·ùºÎµ¿»êÀÓÀǰæ¸Å
¸Å°¢´ë»óÅäÁö ¹× °Ç¹°Àϰý¸Å°¢
¸Å°¢±âÀÏ    2026.04.17(±Ý) 10:00 ÀÔÂû 12ÀÏÀü    
ÅäÁö¸éÀû32.08§³(9.70 Æò)
°Ç¹°¸éÀû59.88§³(18.11 Æò)
乫/¼ÒÀ¯ÀÚ±èOO / ±èOO
ä±ÇÀÚÁÖOOO OOOOOO
ÆäÀ̽ººÏ Æ®À§ÅÍ ±¸±Û+
īī¿À½ºÅ丮
īī¿ÀÅå sms¹®ÀÚº¸³»±â
 

±âÀϳ»¿ª

°æ°ú ³¯Â¥ Àú°¨ ÃÖÀú°¡ °á°ú
Á¢¼öÀÏ 2023-11-29 °æ¸ÅÁ¢¼ö
~1ÀÏ 
2023-11-30 °æ¸Å°³½Ã°áÁ¤
~76ÀÏ 
2024-02-13 ¹è´ç¿ä±¸Á¾±âÀÏ
~327ÀÏ 
2024-10-21 100%
386,000,000
À¯Âû
~357ÀÏ 
2024-11-20 70%
270,200,000
¸Å°¢
³«Âû°¡ 330,088,000 (86%)
~364ÀÏ 
2024-11-27 ¸Å°¢ºÒÇã°¡
~870ÀÏ 
2026-04-17 70%
270,200,000
¹°°Ç¸í¼¼¼­ ÇöȲÁ¶»ç¼­ ¹®°ÇÁ¢¼ö ¼Û´Þ³»¿ª

°¨Á¤Æò°¡ÇöȲ

¸ñ·Ï ÁÖ¼Ò ±¸Á¶/¿ëµµ/´ëÁö±Ç ¸éÀû ºñ°í
´ëÁö±Ç
°í»ö·Î 8 20913.9 ºÐÀÇ 32.0818 32.081 §³
(9.70Æò)
°Ç¹°
°í»ö·Î 8 11Ãþ1104È£ (°í»öµ¿,¿ì¸²ÇÊÀ¯) ö±ÙÄÜÅ©¸®Æ®±¸Á¶ 59.878 §³
(18.11Æò)
°æ±âµµ ¼ö¿ø½Ã ±Ç¼±±¸ °í»öµ¿ "°í»öÃʵîÇб³" ³²Ãø Àαٿ¡ À§Ä¡/µµ½ÃÁö¿ª/Á¦2Á¾ÀϹÝÁÖ°ÅÁö¿ª/Áö±¸´ÜÀ§°èȹ±¸¿ª/ÁöÇÏö/³ë¼±¹ö½ºÁ¤·ùÀå/ÁöÇÏÁÖÂ÷Àå/ö±ÙÄÜÅ©¸®Æ®Á¶/°æ»çÁöºØ ´õº¸±â
°¨Á¤Æò°¡ ¿äÇ×Ç¥
1) À§Ä¡ ¹× ÁÖÀ§È¯°æ= °æ±âµµ ¼ö¿ø½Ã ±Ç¼±±¸ °í»öµ¿ "°í»öÃʵîÇб³" ³²Ãø Àαٿ¡ À§Ä¡ÇÏ´Â ¾ÆÆÄÆ®·Î, ÁÖÀ§´Â ¾ÆÆÄÆ®´ÜÁö ¹× ±Ù¸°»ýȰ½Ã¼³, Áß¼Ò±Ô¸ðÀÇ °øÀå ¹× Ã¢°í µîÀÌ È¥ÀçÇÏ´Â Áö¿ªÀ¸·Î Á¦¹ÝÁÖÀ§È¯°æÀº º¸ÅëÀÓ.

2) ±³Åë»óȲ= Àαٿ¡ ÁöÇÏö ºÐ´ç¼öÀμ± "°í»ö¿ª"ÀÌ ¼ÒÀçÇϰí, ³ë¼±¹ö½ºÁ¤·ùÀåÀÌ ¼ÒÀçÇÏ¿© ´ëÁß±³Åë¿©°ÇÀº ¾çÈ£ÇÑ ÆíÀÓ.

3) °Ç¹°ÀÇ ±¸Á¶= ö±ÙÄÜÅ©¸®Æ®Á¶ ±Ý¼Ó±â¿Í °æ»çÁöºØ ¹× ÆòÁöºØ 15Ãþ ¾ÆÆÄÆ® ³» 11Ãþ 1104È£·Î¼­,

¿Üº®: ½Ã¸àÆ®¸ôÅ»À§ ÆäÀÎÆÃ ¸¶°¨
âȣ: ¼¦½Ã âȣ ¸¶°¨ µî

4) ÀÌ¿ë»óÅÂ= ¾ÆÆÄÆ®(³»ºÎ±¸Á¶µµ ÂüÁ¶)·Î ÀÌ¿ëÁßÀÓ.

5) ¼³ºñ³»¿ª= ±Þ¹è¼öÀ§»ý¼³ºñ, ³­¹æ¼³ºñ, ½Â°­±â¼³ºñ, ÁöÇÏÁÖÂ÷Àå ¼³ºñ,È­ÀçŽÁö¼³ºñ µîÀÓ.

6) ÅäÁöÀÇ Çü»ó ¹× ÀÌ¿ë»óÅÂ= ºÎÁ¤Çü ´ëü·Î ÆòÁö·Î ¾ÆÆÄÆ®°ÇºÎÁö·Î ÀÌ¿ëÁßÀÓ.

7) ÀÎÁ¢ µµ·Î»óŵî= ´ÜÁö³» µµ·Î °³¼³µÇ¾î ÀÖÀ¸¸ç ¿Ü°û°øµµ¿Í ¿¬°áµÊ.

8) ÅäÁöÀÌ¿ë°èȹ ¹× Á¦ÇÑ»óÅÂ=µµ½ÃÁö¿ª, Á¦2Á¾ÀϹÝÁÖ°ÅÁö¿ª, ½Ã°¡Áö°æ°üÁö±¸(ÀϹÝ), Áö±¸´ÜÀ§°èȹ±¸¿ª, ´ë·Î1·ù(Æø 35m-40m)(Á¢ÇÕ), ¼Ò·Î1·ù(Æø 10m-12m)(Á¢ÇÕ), ¼Ò·Î2·ù(Æø 8m-10m)(Á¢ÇÕ) »ó´ëº¸È£±¸¿ª(°í»öÃʵîÇб³(¼ö¿ø±³À°Áö¿øÃ»¹®ÀÇ))<±³À°È¯°æ º¸È£¿¡ °üÇÑ ¹ý·ü>, ºñÇà¾ÈÀüÁ¦5±¸¿ª(Àü¼ú)<±º»ç±âÁö ¹× ±º»ç½Ã¼³ º¸È£¹ý>, µµ½Ã±³ÅëÁ¤ºñÁö¿ª<µµ½Ã±³ÅëÁ¤ºñÃËÁø¹ý>, °ú¹Ð¾ïÁ¦±Ç¿ª<¼öµµ±ÇÁ¤ºñ°èȹ¹ý>

9) °øºÎ¿ÍÀÇ Â÷ÀÌ= ¾øÀ½.

10) ±âŸÂü°í»çÇ×(ÀÓ´ë°ü·Ê ¹× ±âŸ)= ÀÓ´ë°ü°è ¹Ì»óÀÓ.


Âü°í
»çÇ×

ÇØ´ç ºÎµ¿»êÀÇ ÇöȲÀº ¿Ü°ü»ó °øºÎÀÇ ³»¿ë°ú ÀÏÄ¡ÇÏ´Â °ÍÀ¸·Î º¸ÀÓ.

°ÇÃ๰ÇöȲ

¼ÒÀçÁö °æ±âµµ ¼ö¿ø½Ã ±Ç¼±±¸ °í»öµ¿ 915¹øÁö
´ëÁö¸éÀû   ¿¬¸éÀû 10605.082§³
(3213.66Æò)
°ÇÃà¸éÀû   ¿ëÀû·ü»êÁ¤
¿¬¸éÀû
 
°ÇÆóÀ²   ¿ëÀû·ü  
Áö»óÃþ¼ö   ÁöÇÏÃþ¼ö 1Ãþ
ÁÖ¿ëµµ °øµ¿ÁÖÅà ±¸Á¶ ö±ÙÄÜÅ©¸®Æ®±¸Á¶
Âø°øÀÏÀÚ 2003.10.01 »ç¿ë½ÂÀÎÀÏÀÚ 2005.09.30
°ÇÃ๰Ãþº°ÇöȲ [º¸±â]


µî±âºÎµîº» ¿ä¾à(°Ç¹°)

  Á¢¼öÀÏÀÚ µî±â¸ñÀû/±Ç¸®ÀÚ ±Ç¸®±Ý¾× ±âÁØ
1
¼ÒÀ¯±Ç
±èOO
¼Ò¸ê
2 2015³â3¿ù20ÀÏ
±ÙÀú´ç±Ç
³óOOOO
164,800,000 ¼Ò¸ê±âÁØ
3 2021³â10¿ù26ÀÏ
±ÙÀú´ç±Ç
(OOOO
247,000,000 ¼Ò¸ê
4 2023³â5¿ù4ÀÏ
¾Ð·ù
±¹
¼Ò¸ê
5 2023³â11¿ù27ÀÏ
°¡¾Ð·ù
°æOOOO
37,472,000 ¼Ò¸ê
6 2023³â11¿ù30ÀÏ
ÀÓÀǰæ¸Å
(OOOO
¼Ò¸ê
7 2024³â1¿ù17ÀÏ
°¡¾Ð·ù
³óOOOO
8,020,881 ¼Ò¸ê
8 2024³â1¿ù23ÀÏ
¾Ð·ù
±¹
¼Ò¸ê
9 2024³â9¿ù5ÀÏ
¾Ð·ù
±¹OOOO
¼Ò¸ê

ÀÓÂ÷ÀÎÇöȲ (¹è´ç¿ä±¸Á¾±âÀÏ: 2024-02-13)


Á¶»çµÈ ÀÓÂ÷³»¿ªÀÌ ¾ø½À´Ï´Ù


¿©ÀÇÁÖ°æ¸Å Á¶¾ð ÇÑ ¸¶µð


ÁÖÀÇ»çÇ× (ÃÖ¼±¼øÀ§ ¼³Á¤ÀÏ: 2015.03.20.±ÙÀú´ç±Ç ¼³Á¤)

¸Å°¢À¸·Î ¼Ò¸êµÇÁö ¾Ê´Â µî±âºÎ±Ç¸®:
¸Å°¢À¸·Î ¼³Á¤µÈ °ÍÀ¸·Î º¸´Â Áö»ó±Ç:
2024.11.21 乫ÀÚ°â¼ÒÀ¯ÀÚ ±èOO °æ¸ÅÀýÂ÷Á¤Áö½Åû¼­ Á¦Ãâ
2024.11.25 ÃÖ°í°¡¸Å¼ö½Å°íÀÎ ¸Å¼ö½Åûº¸Áõ±Ýȯ±Þ½Åû¼­ Á¦Ãâ
¡Ø¹Ì³³°ü¸®ºñ(°ø¿ë) Àμö¿©ºÎ¸¦ ÀÔÂû Àü¿¡ È®ÀÎÇϽñ⠹ٶø´Ï´Ù

 

Áö¿ªºÐ¼®

ÁöÇÏö¸í Á÷¼±°Å¸®

Çб³¸í ÀüÈ­¹øÈ£ ÁÖ¼Ò Á÷¼±°Å¸®

¹ý¿ø

¼ö¿øÁö¹æ¹ý¿ø (165-12)°æ±âµµ ¼ö¿ø½Ã ¿µÅ뱸 ¹ýÁ¶·Î 105, Çϵ¿, ¼ö¿ø¹ý¿øÁ¾ÇÕû»ç
´ëÇ¥ : 031)210-1114, ¾ß°£ : 031)210-1111
°üÇÒÁö¿ª : ¼ö¿ø½Ã, ¿À»ê½Ã, È­¼º½Ã, ¿ëÀνÃ

µî±â¼Ò ¼ö¿øÁö¹æ¹ý¿ø º»¿ø µ¿¼ö¿øµî±â¼Ò (´ëÇ¥:1544-0773, ÆÑ½º:(031)206-1934, 204-4677, °æ±âµµ ¼ö¿ø½Ã ¿µÅ뱸 û¸í·Î 127 (¿µÅ뵿 961-16))
¼¼¹«¼­ ¼ö¿ø¼¼¹«¼­ (´ëÇ¥:031-250-42, ÆÑ½º:031-258-9411, °æ±âµµ ¼ö¿ø½Ã ÆÈ´Þ±¸ ¸Å»ê·Î 61 (¸Å»ê·Î3°¡))

Àαٳ«ÂûÅë°è

±â°£ ¸Å°¢°Ç¼ö Æò±Õ°¨Á¤°¡
Æò±Õ¸Å°¢°¡
¸Å°¢°¡À²
Æò±ÕÀ¯Âû¼ö
3°³¿ù 16°Ç 512,250,000¿ø
471,526,455¿ø
91%
0.9ȸ
6°³¿ù 46°Ç 389,565,217¿ø
327,403,984¿ø
77%
1.5ȸ
12°³¿ù 96°Ç 390,427,083¿ø
333,882,508¿ø
82%
1.3ȸ


º» °æ¸ÅÁ¤º¸´Â ¹ý¿øÀÚ·á¿Í ÀÏÄ¡Çϵµ·Ï ÇÏ¿´À¸³ª ±Ç¸®»çÇ׺¯µ¿, ÀÔ·ÂÂø¿À µîÀÇ ¿øÀÎÀ¸·Î »ç½Ç°ú ´Ù¸¦ ¼ö ÀÖ½À´Ï´Ù. ÀÌ¿ë¾à°ü¿¡ ÀǰЏéÃ¥Á¶°ÇÀ¸·Î Á¦°øµÊÀ» ¾Ë¸®¸ç, °æ¸ÅÀÔÂû½Ã ¹Ýµå½Ã °ü·Ã °øºÎ¸¦ ÀçÈ®ÀÎÇϽñ⠹ٶø´Ï´Ù. º¸´Ù Æí¸®ÇÑ °æ¸ÅÁ¤º¸ Á¦°øÀ» À§ÇØ Áö¼ÓÀûÀ¸·Î °³¼±ÇϰڽÀ´Ï´Ù. ÀÌ¿ëÇØ Áּż­ °¨»çÇÕ´Ï´Ù.