·Î±×ÀÎ
990
´Ù¼¼´ë(ºô¶ó)
¼­¿ïºÏºÎÁö¹æ¹ý¿ø
 °¨Á¤°¡77,000,000 ¿ø
 ÃÖÀú°¡(80%) 61,600,000 ¿ø
 º¸Áõ±Ý(10%) 6,160,000 ¿ø
 Ã»±¸¾×27,566,914 ¿ø
¼­¿ïƯº°½Ã µµºÀ±¸ ½Ã·çºÀ·Î17°¡±æ 4-7, ÁöÇÏÃþ1È£
¼­¿ïƯº°½Ã µµºÀ±¸ ¹æÇе¿ 386-62
»ç°Ç¹øÈ£ 2023Ÿ°æ3346
°æ¸ÅÁ¾·ùºÎµ¿»êÀÓÀǰæ¸Å
¸Å°¢´ë»óÅäÁö ¹× °Ç¹°Àϰý¸Å°¢
¸Å°¢±âÀÏ    2024.09.24(È­) 10:00    
ÅäÁö¸éÀû22.06§³(6.67 Æò)
°Ç¹°¸éÀû46.71§³(14.13 Æò)
乫/¼ÒÀ¯ÀÚÀÌOO / ÀÌOO
ä±ÇÀÚ¾çO OOOOOOO
ÆäÀ̽ººÏ Æ®À§ÅÍ ±¸±Û+
īī¿À½ºÅ丮
īī¿ÀÅå sms¹®ÀÚº¸³»±â
 

±âÀϳ»¿ª

°æ°ú ³¯Â¥ Àú°¨ ÃÖÀú°¡ °á°ú
Á¢¼öÀÏ 2023-08-02 °æ¸ÅÁ¢¼ö
~1ÀÏ 
2023-08-03 °æ¸Å°³½Ã°áÁ¤
~72ÀÏ 
2023-10-13 ¹è´ç¿ä±¸Á¾±âÀÏ
~377ÀÏ 
2024-08-13 100%
77,000,000
À¯Âû
~419ÀÏ 
2024-09-24 80%
61,600,000
¸Å°¢
³«Âû°¡ 62,524,000 (81%)
~426ÀÏ 
2024-10-01 º¯°æ
~464ÀÏ 
2024-11-08 ÁøÇà
¹°°Ç¸í¼¼¼­ ÇöȲÁ¶»ç¼­ ¹®°ÇÁ¢¼ö ¼Û´Þ³»¿ª

°¨Á¤Æò°¡ÇöȲ

¸ñ·Ï ÁÖ¼Ò ±¸Á¶/¿ëµµ/´ëÁö±Ç ¸éÀû ºñ°í
´ëÁö±Ç
½Ã·çºÀ·Î17°¡±æ 4-7 247.0 ºÐÀÇ 22.06 22.06 §³
(6.67Æò)
°Ç¹°
½Ã·çºÀ·Î17°¡±æ 4-7 ÁöÇÏÃþ1È£ ö±ÙÄáÅ©¸®Æ®±¸Á¶ 46.71 §³
(14.13Æò)
 
¼­¿ïƯº°½Ã µµºÀ±¸ ¹æÇе¿ ¼ÒÀç "¹æÇÐÁßÇб³" ºÏµ¿Ãø Àαٿ¡ À§Ä¡/µµ½ÃÁö¿ª/Á¦1Á¾ÀϹÝÁÖ°ÅÁö¿ª/Áö±¸´ÜÀ§°èȹ±¸¿ª/Â÷·®ÀÇ Á¢±ÙÀÌ °¡´É/³ë¼±¹ö½º Á¤·ùÀå/½½·¡ºêÁöºØ/µµ½Ã°¡½º/¹æ3 ´õº¸±â
°¨Á¤Æò°¡ ¿äÇ×Ç¥
1) À§Ä¡ ¹× ÁÖÀ§È¯°æ=º»°ÇÀº ¼­¿ïƯº°½Ã µµºÀ±¸ ¹æÇе¿ ¼ÒÀç "¹æÇÐÁßÇб³" ºÏµ¿Ãø Àαٿ¡ À§Ä¡Çϸç, ÁÖÀ§´Â
´Ù¼¼´ë µî °øµ¿ÁÖÅÃ,´Ù°¡±¸ µî ´Üµ¶ÁÖÅÃ,±Ù¸°»ó°¡ µîÀ¸·Î Çü¼ºµÈ ÀÏ¹Ý ÁÖ°ÅÁö´ë·Î¼­
Á¦¹ÝÁÖÀ§È­°æÀº º¸ÅëÀÓ.

2) ±³Åë»óȲ=º»°Ç±îÁö Â÷·®ÀÇ Á¢±ÙÀÌ °¡´ÉÇϸç, ÀαٰŸ® µµ·Îº¯¿¡ ³ë¼±¹ö½º Á¤·ùÀåÀÌ À§Ä¡ÇÏ´Â µî
´ëÁß±³Åë ¿©°ÇÀº ´Ù¼Ò ºÒÆíÇÑÆíÀÓ.

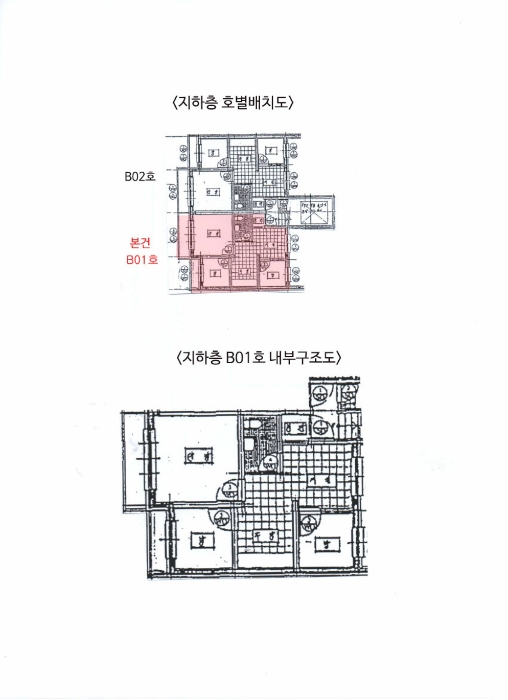
3) °Ç¹°ÀÇ ±¸Á¶=ö±ÙÄáÅ©¸®Æ®Á¶ ½½·¡ºêÁöºØ 4Ãþ°ÇÁß ÁöÇÏÃþ1È£·Î¼­
¿Üº®:Ä¡À庮µ¹ ¸¶°¨.
³»º®:º»Å¸ÀÏ,º®Áö ¸¶°¨.
âȣ:ÇÏÀ̼¦½Ã ¸¶°¨.

4) ÀÌ¿ë»óÅÂ=1992.11.19ÀÏÀÚ·Î »ç¿ë½ÂÀεǰí,
¹æ3,°Å½Ç,ÁÖ¹æ,¿å½Ç,Çö°ü µîÀ¸·Î ÀÌ¿ëÁßÀÓ.


5) ¼³ºñ³»¿ª=±Þ¹è¼ö ¹× À§»ý¼³ºñ,µµ½Ã°¡½º °³º° ³­¹æ¼³ºñ µîÀ» °®Ãß¾úÀ½.

6) ÅäÁöÀÇ Çü»ó ¹× ÀÌ¿ë»óÅÂ=¼­Ãø ÇÏÇâÀÇ Á¤¹æÇü ÅäÁö·Î¼­ ´Ù¼¼´ëÁÖÅà °ÇºÎÁö·Î ÀÌ¿ëÁßÀÓ.

7) ÀÎÁ¢ µµ·Î»óŵî=³²ÃøÀ¸·Î ³ëÆø ¾à 6¹ÌÅÍ ³»¿ÜÀÇ µµ·Î¿Í Á¢ÇÔ.

8) ÅäÁöÀÌ¿ë°èȹ ¹× Á¦ÇÑ»óÅÂ=µµ½ÃÁö¿ª, Á¦1Á¾ÀϹÝÁÖ°ÅÁö¿ª, °íµµÁö±¸(20mÀÌÇÏ(¿ÏÈ­½Ã28mÀÌÇÏ)), °íµµÁö±¸(ÆóÁöÀÔ¾È),
Áö±¸´ÜÀ§°èȹ±¸¿ª(¹æ¾Æ°ñ)
°¡Ãà»çÀ°Á¦Çѱ¸¿ª<°¡ÃàºÐ´¢ÀÇ °ü¸® ¹× À̿뿡 °üÇÑ ¹ý·ü>,
´ë°ø¹æ¾îÇùÁ¶±¸¿ª(À§Å¹°íµµ:77-257m)<±º»ç±âÁö ¹× ±º»ç½Ã¼³ º¸È£¹ý>,
Á¤ºñ±¸¿ª<µµ½Ã ¹× ÁÖ°Åȯ°æÁ¤ºñ¹ý>, °ú¹Ð¾ïÁ¦±Ç¿ª<¼öµµ±ÇÁ¤ºñ°èȹ¹ý>


9) °øºÎ¿ÍÀÇ Â÷ÀÌ=¾øÀ½.

10) ±âŸÂü°í»çÇ×(ÀÓ´ë°ü·Ê ¹× ±âŸ)=ÀÓ´ë°ü°è ¹Ì»óÀÓ.


Âü°í
»çÇ×

* Æó¹®ºÎÀç·Î ¼ÒÀ¯ÀÚ ¹× Á¡À¯ÀÚµéÀ» ¸¸³ªÁö ¸øÇÏ¿© ¾È³»¹®À» Çö°ü¹®¿¡ ºÎÂøÇÏ¿´À¸³ª ¾Æ¹« ¿¬¶ôÀÌ ¾ø¾î Á¡À¯ÀÚ È®ÀÎ ºÒ´ÉÀÓ.

°ÇÃ๰ÇöȲ

¼ÒÀçÁö ¼­¿ïƯº°½Ã µµºÀ±¸ ¹æÇе¿ 386-62¹øÁö
´ëÁö¸éÀû 247§³
(74.85Æò)
¿¬¸éÀû 590.88§³
(179.05Æò)
°ÇÃà¸éÀû 136.99§³
(41.51Æò)
¿ëÀû·ü»êÁ¤
¿¬¸éÀû
472.04§³
(143.04Æò)
°ÇÆóÀ² 55.46% ¿ëÀû·ü 191.51%
Áö»óÃþ¼ö 4Ãþ ÁöÇÏÃþ¼ö 1Ãþ
ÁÖ¿ëµµ °øµ¿ÁÖÅà ±¸Á¶ ö±ÙÄÜÅ©¸®Æ®±¸Á¶
Âø°øÀÏÀÚ 1992.04.23 »ç¿ë½ÂÀÎÀÏÀÚ 1992.11.19
°ÇÃ๰Ãþº°ÇöȲ [º¸±â]


±¹ÅäºÎ½Ç°Å·¡°¡ ¼­¿ïƯº°½Ã µµºÀ±¸ ¹æÇе¿

¡Ü ¸Å¸Å

¸éÀû(§³), ±Ý¾×(¸¸¿ø)

¡Ü Àü¼¼

¸éÀû(§³), ±Ý¾×(¸¸¿ø)

°è¾àÀϰǹ°¸íĪÃþ¿¬¸éÀûº¸Áõ±Ý¿ù¼¼°ÇÃà
26.03.30¿Â¸®À¯258.655,121532022
26.03.27ÁÖ¿ø¸®Ä¡ºô353.8222,5002009
26.03.26¼­°æÇÏÀÌÃ÷384.6621,00002002
26.03.25´ë¿øÁ¦´Ï½ººô528.6519,0002017
26.03.25ûÇкô¶óAµ¿-140.955,800201989
¢Ñ ´õº¸±â

µî±âºÎµîº» ¿ä¾à(°Ç¹°)

  Á¢¼öÀÏÀÚ µî±â¸ñÀû/±Ç¸®ÀÚ ±Ç¸®±Ý¾× ±âÁØ
1
¼ÒÀ¯±Ç
ÀÌOO
¼Ò¸ê
2 2012³â6¿ù22ÀÏ
±ÙÀú´ç±Ç
¾çOOOO
48,000,000 ¼Ò¸ê±âÁØ
3 2020³â11¿ù17ÀÏ
¾Ð·ù
³ëOO
¼Ò¸ê
4 2023³â8¿ù3ÀÏ
ÀÓÀǰæ¸Å
¾çOOOO
¼Ò¸ê

ÀÓÂ÷ÀÎÇöȲ (¹è´ç¿ä±¸Á¾±âÀÏ: 2023-10-13)

ÀÓÂ÷ÀÎ ¿ëµµ/Á¡À¯ º¸Áõ±Ý/¿ù¼¼ ´ëÇ×·Â
ÀüÀÔÀÏ/È®Á¤ÀÏ ¹è´ç¿ä±¸ ºñ°í
±èOO ÀüºÎ ¹Ì»ó
X
2017.07.26.
¹Ì»ó
 
ÇÑOOOOOOOOOOOO ÀüºÎ 26,000,000
X
2017.07.26.
2017.07.10
2023.08.23  

¿©ÀÇÁÖ°æ¸Å Á¶¾ð ÇÑ ¸¶µð


ÁÖÀÇ»çÇ× (ÃÖ¼±¼øÀ§ ¼³Á¤ÀÏ: 2012.06.22. ±ÙÀú´ç±Ç)

¸Å°¢À¸·Î ¼Ò¸êµÇÁö ¾Ê´Â µî±âºÎ±Ç¸®: ÇØ´ç»çÇ× ¾øÀ½
¸Å°¢À¸·Î ¼³Á¤µÈ °ÍÀ¸·Î º¸´Â Áö»ó±Ç: ÇØ´ç»çÇ× ¾øÀ½

 

Áö¿ªºÐ¼®

ÁöÇÏö¸í Á÷¼±°Å¸®

Çб³¸í ÀüÈ­¹øÈ£ ÁÖ¼Ò Á÷¼±°Å¸®

¹ý¿ø

¼­¿ïºÏºÎÁö¹æ¹ý¿ø (013-22)¼­¿ïƯº°½Ã µµºÀ±¸ ¸¶µé·Î749 (µµºÀ2µ¿ 626)
´ëÇ¥ : 02)910-3114
°üÇÒÁö¿ª : °­ºÏ±¸, ³ë¿ø±¸, µµºÀ±¸, µ¿´ë¹®±¸, ¼ººÏ±¸, Áß¶û±¸

µî±â¼Ò ¼­¿ïºÏºÎÁö¹æ¹ý¿ø º»¿ø µî±â±¹ (´ëÇ¥:1544-0773, ÆÑ½º:(02)2030-2330, ¼­¿ïƯº°½Ã µµºÀ±¸ ³ëÇØ·Î 325 (⵿ 337¹øÁö))
¼¼¹«¼­ µµºÀ¼¼¹«¼­ (´ëÇ¥:02-944-020, ÆÑ½º:02-984-2580, ¼­¿ïƯº°½Ã °­ºÏ±¸ µµºÀ·Î 117 (¹Ì¾Æµ¿))

Àαٳ«ÂûÅë°è

±â°£ ¸Å°¢°Ç¼ö Æò±Õ°¨Á¤°¡
Æò±Õ¸Å°¢°¡
¸Å°¢°¡À²
Æò±ÕÀ¯Âû¼ö
3°³¿ù 31°Ç 231,568,203¿ø
181,209,477¿ø
79%
3.3ȸ
6°³¿ù 55°Ç 253,055,949¿ø
198,051,370¿ø
79%
2.9ȸ
12°³¿ù 83°Ç 246,217,797¿ø
188,765,984¿ø
77%
3.2ȸ


º» °æ¸ÅÁ¤º¸´Â ¹ý¿øÀÚ·á¿Í ÀÏÄ¡Çϵµ·Ï ÇÏ¿´À¸³ª ±Ç¸®»çÇ׺¯µ¿, ÀÔ·ÂÂø¿À µîÀÇ ¿øÀÎÀ¸·Î »ç½Ç°ú ´Ù¸¦ ¼ö ÀÖ½À´Ï´Ù. ÀÌ¿ë¾à°ü¿¡ ÀǰЏéÃ¥Á¶°ÇÀ¸·Î Á¦°øµÊÀ» ¾Ë¸®¸ç, °æ¸ÅÀÔÂû½Ã ¹Ýµå½Ã °ü·Ã °øºÎ¸¦ ÀçÈ®ÀÎÇϽñ⠹ٶø´Ï´Ù. º¸´Ù Æí¸®ÇÑ °æ¸ÅÁ¤º¸ Á¦°øÀ» À§ÇØ Áö¼ÓÀûÀ¸·Î °³¼±ÇϰڽÀ´Ï´Ù. ÀÌ¿ëÇØ Áּż­ °¨»çÇÕ´Ï´Ù.