·Î±×ÀÎ
995
´Ù¼¼´ë(ºô¶ó)
¼­¿ïºÏºÎÁö¹æ¹ý¿ø
 °¨Á¤°¡285,000,000 ¿ø
 ÃÖÀú°¡(80%) 228,000,000 ¿ø
 º¸Áõ±Ý(10%) 22,800,000 ¿ø
 Ã»±¸¾×278,000,000 ¿ø
¼­¿ïƯº°½Ã °­ºÏ±¸ ´ö¸ª·Î3±æ 16, Á¦4Ãþ Á¦401È£ (¼öÀ¯µ¿,ÈÞÀÚÀÎ)
¼­¿ïƯº°½Ã °­ºÏ±¸ ¼öÀ¯µ¿ 455-24
»ç°Ç¹øÈ£ 2023Ÿ°æ111179
°æ¸ÅÁ¾·ùºÎµ¿»ê°­Á¦°æ¸Å
¸Å°¢´ë»óÅäÁö ¹× °Ç¹°Àϰý¸Å°¢
¸Å°¢±âÀÏ    2024.08.27(È­) 10:00    
ÅäÁö¸éÀû22.21§³(6.72 Æò)
°Ç¹°¸éÀû37.65§³(11.39 Æò)
乫/¼ÒÀ¯ÀÚÀÌOO / ÀÌOO
ä±ÇÀÚÀÌOO
ÆäÀ̽ººÏ Æ®À§ÅÍ ±¸±Û+
īī¿À½ºÅ丮
īī¿ÀÅå sms¹®ÀÚº¸³»±â
 

±âÀϳ»¿ª

°æ°ú ³¯Â¥ Àú°¨ ÃÖÀú°¡ °á°ú
Á¢¼öÀÏ 2023-08-14 °æ¸ÅÁ¢¼ö
~3ÀÏ 
2023-08-17 °æ¸Å°³½Ã°áÁ¤
~78ÀÏ 
2023-10-31 ¹è´ç¿ä±¸Á¾±âÀÏ
~344ÀÏ 
2024-07-23 100%
285,000,000
À¯Âû
~379ÀÏ 
2024-08-27 80%
228,000,000
¸Å°¢
³«Âû°¡ 228,000,000 (80%)
¹°°Ç¸í¼¼¼­ ÇöȲÁ¶»ç¼­ ¹®°ÇÁ¢¼ö ¼Û´Þ³»¿ª

°¨Á¤Æò°¡ÇöȲ

¸ñ·Ï ÁÖ¼Ò ±¸Á¶/¿ëµµ/´ëÁö±Ç ¸éÀû ºñ°í
´ëÁö±Ç
´ö¸ª·Î3±æ 16 314.0 ºÐÀÇ 22.21 22.21 §³
(6.72Æò)
°Ç¹°
´ö¸ª·Î3±æ 16 Á¦4Ãþ Á¦401È£ (¼öÀ¯µ¿,ÈÞÀÚÀÎ) ö±ÙÄÜÅ©¸®Æ®±¸Á¶ 37.65 §³
(11.39Æò)
 
¼­¿ïƯº°½Ã °­ºÏ±¸ ¼öÀ¯µ¿ ¼ÒÀç ¿ìÀ̽ż³¼± "È­°è¿ª" ºÏ¼­Ãø Àαٿ¡ À§Ä¡/µµ½ÃÁö¿ª/Á¦2Á¾ÀϹÝÁÖ°ÅÁö¿ª/ÁÖÂ÷Àå/Â÷·®ÀÇ Á¢±ÙÀÌ °¡´É/³ë¼±¹ö½ºÁ¤·ùÀå/ö±ÙÄÜÅ©¸®Æ®±¸Á¶ ´õº¸±â
°¨Á¤Æò°¡ ¿äÇ×Ç¥
1) À§Ä¡ ¹× ÁÖÀ§È¯°æ=º»°ÇÀº ¼­¿ïƯº°½Ã °­ºÏ±¸ ¼öÀ¯µ¿ ¼ÒÀç ¿ìÀ̽ż³¼± "È­°è¿ª" ºÏ¼­Ãø Àαٿ¡ À§Ä¡Çϰí ÀÖÀ¸¸ç, º»°Ç ÁÖÀ§´Â ´Ù¼¼´ë¡¤¿¬¸³ÁÖÅÃ, ´Üµ¶ÁÖÅÃ, ±Ù¸°»ýȰ½Ã¼³, Çб³ µîÀÌ È¥ÀçÇÏ´Â Áö¿ªÀ¸·Î Á¦¹Ý ÁÖÀ§È¯°æ º¸Åë½ÃµÊ.

2) ±³Åë»óȲ=º»°Ç±îÁö Á¦¹Ý Â÷·®ÀÇ Á¢±ÙÀÌ °¡´ÉÇϸç, Àαٿ¡ ¿ìÀ̽ż³¼± "È­°è¿ª" ¹× ³ë¼±¹ö½ºÁ¤·ùÀåÀÌ ¼ÒÀçÇÏ´Â µî ±³Åë»óȲÀº º¸Åë½Ã µÊ.

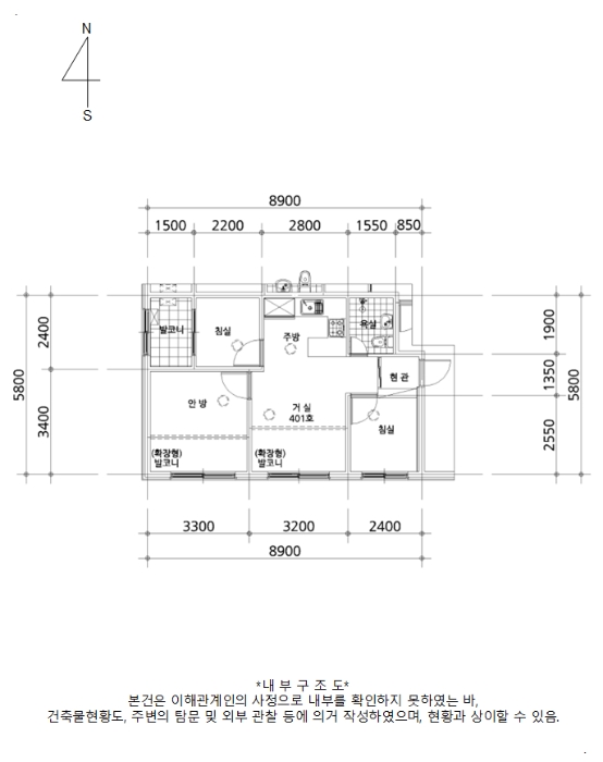
3) °Ç¹°ÀÇ ±¸Á¶=ö±ÙÄÜÅ©¸®Æ®±¸Á¶, (ö±Ù)ÄÜÅ©¸®Æ®ÁöºØ 5Ãþ °Ç¹° ³» Á¦4Ãþ Á¦401È£·Î¼­
¿Üº®: µ¹ºÙÀÓ ¸¶°¨ µî
âȣ: »õ½Ãâȣ µî ÀÓ.

4) ÀÌ¿ë»óÅÂ=ÁÖ°Å¿ëÀ¸·Î ÀÌ¿ë ÁßÀÓ.(Èĸé "°Ç¹°°³È²µµ" ÂüÁ¶)

5) ¼³ºñ³»¿ª=½Â°­±â¼³ºñ, ³­¹æ¼³ºñ, À§»ý¼³ºñ ¹× ±Þ¹è¼ö¼³ºñ µîÀÌ µÇ¾îÀÖÀ½.

6) ÅäÁöÀÇ Çü»ó ¹× ÀÌ¿ë»óÅÂ=ÇöȲÁÖ°Å¿ë °ÇºÎÁö·Î ÀÌ¿ëÁßÀÎ À广ÇüÀÇ ÅäÁöÀÓ. ÀÎÁ¢ ÇÊÁö ´ëºñ ³²Ãø±âÁØ µî°íÆòźÇÑÇϰí ÁöÇÏ1Ãþ ÃâÀÔ±¸ ¹× ÁÖÂ÷Àå ÁøÀÔ·ÎÀ̸ç, ¼­Ãø±âÁØ °æ»ç·Î¿¡ ÀÎÁ¢ÇÏ¿© Áö»ó1Ãþ ÃâÀÔ±¸ ¹× ÁÖÂ÷Àå ÁøÀÔ·ÎÀÓ.

7) ÀÎÁ¢ µµ·Î»óŵî=º»°Ç ¼­Ãø, ³²ÃøÀ¸·Î °¢°¢ ¾à 4m ³»¿ÜÀÇ Æ÷Àåµµ·Î¿Í Á¢ÇÔ.

8) ÅäÁöÀÌ¿ë°èȹ ¹× Á¦ÇÑ»óÅÂ=µµ½ÃÁö¿ª, Á¦2Á¾ÀϹÝÁÖ°ÅÁö¿ª(7ÃþÀÌÇÏ), °íµµÁö±¸(20mÀÌÇÏ-¿ÏÈ­½Ã28mÀÌÇÏ), °íµµÁö±¸(28mÀÌÇÏ(ÀÔ¾È)) °¡Ãà»çÀ°Á¦Çѱ¸¿ª<°¡ÃàºÐ´¢ÀÇ °ü¸® ¹× À̿뿡 °üÇÑ ¹ý·ü>, »ó´ëº¸È£±¸¿ª(ÃÖÁ¾È®ÀÎÀº°üÇÒ±³À°Ã»¿¡È®ÀÎ)<±³À°È¯°æ º¸È£¿¡ °üÇÑ ¹ý·ü>, ´ë°ø¹æ¾îÇùÁ¶±¸¿ª(77-257m)<±º»ç±âÁö ¹× ±º»ç½Ã¼³ º¸È£¹ý>, °ú¹Ð¾ïÁ¦±Ç¿ª<¼öµµ±ÇÁ¤ºñ°èȹ¹ý>ÀÓ.

9) °øºÎ¿ÍÀÇ Â÷ÀÌ=¾ø À½.

10) ±âŸÂü°í»çÇ×(ÀÓ´ë°ü·Ê ¹× ±âŸ)=ÀÓ´ë°ü°è ¹Ì»óÀÓ.



°ÇÃ๰ÇöȲ

¼ÒÀçÁö ¼­¿ïƯº°½Ã °­ºÏ±¸ ¼öÀ¯µ¿ 455-24¹øÁö
´ëÁö¸éÀû 310.07§³
(93.96Æò)
¿¬¸éÀû 818.72§³
(248.1Æò)
°ÇÃà¸éÀû 185.51§³
(56.22Æò)
¿ëÀû·ü»êÁ¤
¿¬¸éÀû
620.04§³
(187.89Æò)
°ÇÆóÀ² 59.83% ¿ëÀû·ü 199.97%
Áö»óÃþ¼ö 5Ãþ ÁöÇÏÃþ¼ö 1Ãþ
ÁÖ¿ëµµ °øµ¿ÁÖÅà ±¸Á¶ ö±ÙÄÜÅ©¸®Æ®±¸Á¶
Âø°øÀÏÀÚ 2019.08.27 »ç¿ë½ÂÀÎÀÏÀÚ 2020.03.03
°ÇÃ๰Ãþº°ÇöȲ [º¸±â]


±¹ÅäºÎ½Ç°Å·¡°¡ ¼­¿ïƯº°½Ã °­ºÏ±¸ ¼öÀ¯µ¿

¡Ü ¸Å¸Å

¸éÀû(§³), ±Ý¾×(¸¸¿ø)

¡Ü Àü¼¼

¸éÀû(§³), ±Ý¾×(¸¸¿ø)

°è¾àÀϰǹ°¸íĪÃþ¿¬¸éÀûº¸Áõ±Ý¿ù¼¼°ÇÃà
26.03.31¹ßÇØÇϿ콺540.1820,00002017
26.03.31È­ÀÎÇϿ콺247.4316,00002015
26.03.31Çý¼º·çþ¸®552.9321,00002015
26.03.30(709-24)559.391,000502019
26.03.30Á¤Àº½ºÀ§Æ®ºô534.2612,00002013
¢Ñ ´õº¸±â

µî±âºÎµîº» ¿ä¾à(°Ç¹°)

  Á¢¼öÀÏÀÚ µî±â¸ñÀû/±Ç¸®ÀÚ ±Ç¸®±Ý¾× ±âÁØ
1
¼ÒÀ¯±Ç
ÀÌOO
¼Ò¸ê
2 2022³â1¿ù21ÀÏ
¾Ð·ù
±¹
¼Ò¸ê±âÁØ
3 2023³â6¿ù27ÀÏ
ÀÓÂ÷±Ç¼³Á¤
ÀÌOO
278,000,000 ¼Ò¸ê
4 2023³â8¿ù17ÀÏ
°­Á¦°æ¸Å
ÀÌOO
¼Ò¸ê

ÀÓÂ÷ÀÎÇöȲ (¹è´ç¿ä±¸Á¾±âÀÏ: 2023-10-31)

ÀÓÂ÷ÀÎ ¿ëµµ/Á¡À¯ º¸Áõ±Ý/¿ù¼¼ ´ëÇ×·Â
ÀüÀÔÀÏ/È®Á¤ÀÏ ¹è´ç¿ä±¸ ºñ°í
ÀÌOO ÀüºÎ 278,000,000
O
2020.09.12
2020.08.19
2023.08.25  
ºñ°í
(¸Å°¢¹°°Ç
¸í¼¼¼­)

¿©ÀÇÁÖ°æ¸Å Á¶¾ð ÇÑ ¸¶µð


ÁÖÀÇ»çÇ× (ÃÖ¼±¼øÀ§ ¼³Á¤ÀÏ: 2022.01.21 ¾Ð·ù)

¸Å°¢À¸·Î ¼Ò¸êµÇÁö ¾Ê´Â µî±âºÎ±Ç¸®: ÇØ´ç»çÇ× ¾øÀ½
¸Å°¢À¸·Î ¼³Á¤µÈ °ÍÀ¸·Î º¸´Â Áö»ó±Ç: ÇØ´ç»çÇ× ¾øÀ½

 

Áö¿ªºÐ¼®

ÁöÇÏö¸í Á÷¼±°Å¸®

Çб³¸í ÀüÈ­¹øÈ£ ÁÖ¼Ò Á÷¼±°Å¸®

¹ý¿ø

¼­¿ïºÏºÎÁö¹æ¹ý¿ø (013-22)¼­¿ïƯº°½Ã µµºÀ±¸ ¸¶µé·Î749 (µµºÀ2µ¿ 626)
´ëÇ¥ : 02)910-3114
°üÇÒÁö¿ª : °­ºÏ±¸, ³ë¿ø±¸, µµºÀ±¸, µ¿´ë¹®±¸, ¼ººÏ±¸, Áß¶û±¸

µî±â¼Ò ¼­¿ïºÏºÎÁö¹æ¹ý¿ø º»¿ø µî±â±¹ (´ëÇ¥:1544-0773, ÆÑ½º:(02)2030-2330, ¼­¿ïƯº°½Ã µµºÀ±¸ ³ëÇØ·Î 325 (⵿ 337¹øÁö))
¼¼¹«¼­ µµºÀ¼¼¹«¼­ (´ëÇ¥:02-944-020, ÆÑ½º:02-984-2580, ¼­¿ïƯº°½Ã °­ºÏ±¸ µµºÀ·Î 117 (¹Ì¾Æµ¿))

Àαٳ«ÂûÅë°è

±â°£ ¸Å°¢°Ç¼ö Æò±Õ°¨Á¤°¡
Æò±Õ¸Å°¢°¡
¸Å°¢°¡À²
Æò±ÕÀ¯Âû¼ö
3°³¿ù 38°Ç 234,752,368¿ø
170,715,999¿ø
73%
3.7ȸ
6°³¿ù 59°Ç 232,925,254¿ø
172,288,235¿ø
75%
3.2ȸ
12°³¿ù 86°Ç 227,971,977¿ø
170,848,821¿ø
75%
3.4ȸ


º» °æ¸ÅÁ¤º¸´Â ¹ý¿øÀÚ·á¿Í ÀÏÄ¡Çϵµ·Ï ÇÏ¿´À¸³ª ±Ç¸®»çÇ׺¯µ¿, ÀÔ·ÂÂø¿À µîÀÇ ¿øÀÎÀ¸·Î »ç½Ç°ú ´Ù¸¦ ¼ö ÀÖ½À´Ï´Ù. ÀÌ¿ë¾à°ü¿¡ ÀǰЏéÃ¥Á¶°ÇÀ¸·Î Á¦°øµÊÀ» ¾Ë¸®¸ç, °æ¸ÅÀÔÂû½Ã ¹Ýµå½Ã °ü·Ã °øºÎ¸¦ ÀçÈ®ÀÎÇϽñ⠹ٶø´Ï´Ù. º¸´Ù Æí¸®ÇÑ °æ¸ÅÁ¤º¸ Á¦°øÀ» À§ÇØ Áö¼ÓÀûÀ¸·Î °³¼±ÇϰڽÀ´Ï´Ù. ÀÌ¿ëÇØ Áּż­ °¨»çÇÕ´Ï´Ù.