·Î±×ÀÎ
1071
±Ù¸°»ó°¡
¼­¿ïÁß¾ÓÁö¹æ¹ý¿ø
 °¨Á¤°¡50,100,000 ¿ø
 ÃÖÀú°¡(9%) 4,304,000 ¿ø
 º¸Áõ±Ý(10%) 430,400 ¿ø
 Ã»±¸¾×14,452,188 ¿ø
¼­¿ïƯº°½Ã Áß±¸ À»Áö·Î45±æ 62, 4Ãþ620È£ (½Å´çµ¿,´©ÁÔºôµù)
¼­¿ïƯº°½Ã Áß±¸ ½Å´çµ¿ 200-5
»ç°Ç¹øÈ£ 2023Ÿ°æ5107
°æ¸ÅÁ¾·ùºÎµ¿»ê°­Á¦°æ¸Å
¸Å°¢´ë»óÅäÁöÁ¦¿Ü ¹× °Ç¹°¸Å°¢
¸Å°¢±âÀÏ    2025.09.04(¸ñ) 10:00    
ÅäÁö¸éÀû
°Ç¹°¸éÀû5.04§³(1.52 Æò)
乫/¼ÒÀ¯ÀÚÁ¤O / Á¤O
ä±ÇÀÚÁÖOOO OOOOO
ÆäÀ̽ººÏ Æ®À§ÅÍ ±¸±Û+
īī¿À½ºÅ丮
īī¿ÀÅå sms¹®ÀÚº¸³»±â
 

±âÀϳ»¿ª

°æ°ú ³¯Â¥ Àú°¨ ÃÖÀú°¡ °á°ú
Á¢¼öÀÏ 2023-10-19 °æ¸ÅÁ¢¼ö
~18ÀÏ 
2023-11-06 °æ¸Å°³½Ã°áÁ¤
~91ÀÏ 
2024-01-18 ¹è´ç¿ä±¸Á¾±âÀÏ
~252ÀÏ 
2024-06-27 100%
50,100,000
À¯Âû
~287ÀÏ 
2024-08-01 80%
40,080,000
À¯Âû
~322ÀÏ 
2024-09-05 64%
32,064,000
À¯Âû
~364ÀÏ 
2024-10-17 51%
25,651,000
À¯Âû
~392ÀÏ 
2024-11-14 41%
20,521,000
À¯Âû
~427ÀÏ 
2024-12-19 33%
16,417,000
À¯Âû
~476ÀÏ 
2025-02-06 26%
13,134,000
À¯Âû
~511ÀÏ 
2025-03-13 21%
10,507,000
À¯Âû
~581ÀÏ 
2025-05-22 17%
8,406,000
À¯Âû
~616ÀÏ 
2025-06-26 13%
6,725,000
À¯Âû
~651ÀÏ 
2025-07-31 11%
5,380,000
À¯Âû
~686ÀÏ 
2025-09-04 9%
4,304,000
¸Å°¢
³«Âû°¡ 4,400,000 (9%)
¹°°Ç¸í¼¼¼­ ÇöȲÁ¶»ç¼­ ¹®°ÇÁ¢¼ö ¼Û´Þ³»¿ª

°¨Á¤Æò°¡ÇöȲ

¸ñ·Ï ÁÖ¼Ò ±¸Á¶/¿ëµµ/´ëÁö±Ç ¸éÀû ºñ°í
°Ç¹°
À»Áö·Î45±æ 62 4Ãþ620È£ (½Å´çµ¿,´©ÁÔºôµù) ö°ñö±ÙÄÜÅ©¸®Æ®±¸Á¶ 5.040 §³
(1.52Æò)
 
¼­¿ïƯº°½Ã Áß±¸ ½Å´çµ¿ ¼ÒÀç "µ¿´ë¹®¿ª»ç¹®È­°ø¿ø" µ¿Ãø Àαٿ¡ À§Ä¡/ÀϹݻó¾÷Áö¿ª/Áö±¸´ÜÀ§°èȹ±¸¿ª/¹ö½ºÁ¤·ùÀå/ö°ñö±ÙÄÜÅ©¸®Æ®Á¶/Æò½½·¡ºêÁöºØ ´õº¸±â
°¨Á¤Æò°¡ ¿äÇ×Ç¥
1) À§Ä¡ ¹× ÁÖÀ§È¯°æ=º»°ÇÀº ¼­¿ïƯº°½Ã Áß±¸ ½Å´çµ¿ ¼ÒÀç "µ¿´ë¹®¿ª»ç¹®È­°ø¿ø" µ¿Ãø Àαٿ¡ À§Ä¡Çϸç, ÁÖÀ§´Â ¾÷¹«½Ã¼³, ±Ù¸°»ýȰ½Ã¼³ ¹× ÆÇ¸Å½Ã¼³ µîÀÌ ¼ÒÀçÇϰí ÀÖÀ½.

2) ±³Åë»óȲ=Àαٿ¡ µ¿´ë¹®¿ª, µ¿¹¦¾Õ¿ª, µ¿´ë¹®¿ª»ç¹®È­°ø¿ø¿ª, ½Å´ç¿ª ¹× ¹ö½ºÁ¤·ùÀå µîÀÌ ¼ÒÀçÇÏ¿© ´ëÁß±³ÅëÀÌ¿ëÀº ¾çÈ£ÇÔ.

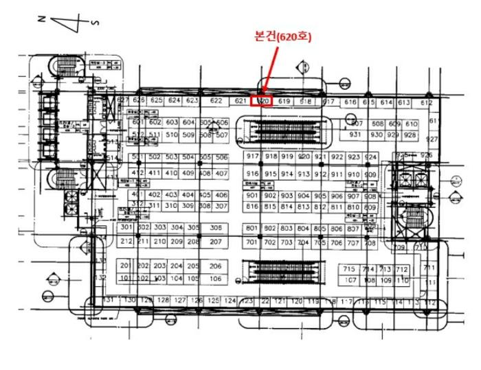
3) °Ç¹°ÀÇ ±¸Á¶=ö°ñö±ÙÄÜÅ©¸®Æ®Á¶ ö°ñÆò½½·¡ºêÁöºØ ÁöÇÏ6Ãþ/Áö»ó15Ãþ Áß Á¦4Ãþ Á¦620È£·Î¼­,
(»ç¿ë½ÂÀÎÀÏ: 2000-12-30)

¿Üº®: µ¹ºÙÀÓ, ÆÇ³Ú, °­È­À¯¸® , ¸ð¸£Å¸¸£À§ÆäÀÎÆÃ ¹× ÀÎÅ׸®¾î ¸¶°¨ µî
âȣ: °­È£À¯¸® ¸¶°¨ µî

4) ÀÌ¿ë»óÅÂ=ÆÇ¸Å½Ã¼³·Î ÀÌ¿ë ÁßÀÓ.

5) ¼³ºñ³»¿ª=Àü±â¼³ºñ, ½Â°­±â¼³ºñ, ¼ÒÈ­Àü¼³ºñ, ȯ±â½Ã¼³, À§»ý ¹× ±Þ¹è¼ö½Ã¼³ µîÀÌ °®Ãß¾îÁ® ÀÖÀ½.



6) ÅäÁöÀÇ Çü»ó ¹× ÀÌ¿ë»óÅÂ=ÀÏ´ÜÀÇ ºÎÁ¤ÇüÀÇ ÅäÁö·Î¼­, »ó¾÷¾÷¹«½Ã¼³ °ÇºÎÁö·Î ÀÌ¿ë ÁßÀÓ.

7) ÀÎÁ¢ µµ·Î»óŵî=¼­ÃøÀ¸·Î ±¤´ë·Î, ³²Ãø ¹× µ¿ÃøÀ¸·Î °¢°¢ ¼¼·Î(°¡)ÀÇ Æ÷Àåµµ·Î¿Í Á¢Çϰí ÀÖÀ½.

8) ÅäÁöÀÌ¿ë°èȹ ¹× Á¦ÇÑ»óÅÂ=ÀϹݻó¾÷Áö¿ª , Áö±¸´ÜÀ§°èȹ±¸¿ª(2015-04-30)(µ¿´ë¹®¿ª»ç¹®È­°ø¿ø ÁÖº¯ Áö±¸´ÜÀ§°èȹ±¸¿ª) , µµ·Î(Á¢ÇÕ), °¡Ãà»çÀ°Á¦Çѱ¸¿ª<°¡ÃàºÐ´¢ÀÇ °ü¸® ¹× À̿뿡 °üÇÑ ¹ý·ü>, °¡·Î±¸¿ªº° ÃÖ°í³ôÀÌ Á¦ÇÑÁö¿ª(2015-08-27)<°ÇÃà¹ý>, »ó´ëº¸È£±¸¿ª<±³À°È¯°æ º¸È£¿¡ °üÇÑ ¹ý·ü>, ´ë°ø¹æ¾îÇùÁ¶±¸¿ª(À§Å¹°íµµ:77-257m)<±º»ç±âÁö ¹× ±º»ç½Ã¼³ º¸È£¹ý>, °ú¹Ð¾ïÁ¦±Ç¿ª<¼öµµ±ÇÁ¤ºñ°èȹ¹ý>, ÁßÁ¡°æ°ü°ü¸®±¸¿ª(2016-11-24),¿ª»çµµ½É(4´ë¹®¾È)

9) °øºÎ¿ÍÀÇ Â÷ÀÌ=-

10) ±âŸÂü°í»çÇ×(ÀÓ´ë°ü·Ê ¹× ±âŸ)=ÀÓ´ë³»¿ªÀº ¹Ì»óÀÓ.



°ÇÃ๰ÇöȲ

¼ÒÀçÁö ¼­¿ïƯº°½Ã Áß±¸ ½Å´çµ¿ 200-5¹øÁö
´ëÁö¸éÀû 3666§³
(1110.91Æò)
¿¬¸éÀû 42595.9§³
(12907.85Æò)
°ÇÃà¸éÀû 2201.05§³
(666.98Æò)
¿ëÀû·ü»êÁ¤
¿¬¸éÀû
23179.68§³
(7024.15Æò)
°ÇÆóÀ² 59.99% ¿ëÀû·ü 632.28%
Áö»óÃþ¼ö 15Ãþ ÁöÇÏÃþ¼ö 6Ãþ
ÁÖ¿ëµµ ÆÇ¸Å½Ã¼³ ±¸Á¶ ö°ñö±ÙÄÜÅ©¸®Æ®±¸Á¶
Âø°øÀÏÀÚ 1996.10.04 »ç¿ë½ÂÀÎÀÏÀÚ 2000.12.30
°ÇÃ๰Ãþº°ÇöȲ [º¸±â]


µî±âºÎµîº» ¿ä¾à(°Ç¹°)

  Á¢¼öÀÏÀÚ µî±â¸ñÀû/±Ç¸®ÀÚ ±Ç¸®±Ý¾× ±âÁØ
1
¼ÒÀ¯±Ç
Á¤O
¼Ò¸ê
2 2018³â11¿ù8ÀÏ
¾Ð·ù
ÀÇOOO
¼Ò¸ê±âÁØ
3 2023³â11¿ù7ÀÏ
°­Á¦°æ¸Å
(OOOO
¼Ò¸ê

ÀÓÂ÷ÀÎÇöȲ (¹è´ç¿ä±¸Á¾±âÀÏ: 2024-01-18)

ÀÓÂ÷ÀÎ ¿ëµµ/Á¡À¯ º¸Áõ±Ý/¿ù¼¼ ´ëÇ×·Â
ÀüÀÔÀÏ/È®Á¤ÀÏ ¹è´ç¿ä±¸ ºñ°í
¹ÚOO 4Ãþ620È£ 1,500¸¸¿ø
[¿ù]132¸¸¿ø
O
2013.07.11
 

¿©ÀÇÁÖ°æ¸Å Á¶¾ð ÇÑ ¸¶µð

ÃëÇÏ ¶Ç´Â Ãë¼ÒµÉ °¡´É¼º ÀÖ½À´Ï´Ù
ÀÌ ¹°°ÇÀÇ °¨Á¤°¡°ÝÀº 50,100,000¿øÀÔ´Ï´Ù. °æ¸Å¸¦ ½ÅûÇÑ Ã¤±ÇÀÚ°¡ ¹è´ç ¹Þ¾Æ¾ß ÇÒ ±Ý¾×Àº 14,452,188¿øÀ¸·Î °¨Á¤°¡°Ý ´ëºñ »ó´çÈ÷ ÀûÀº ±Ý¾×ÀÔ´Ï´Ù. ÀÌ·± °æ¿ì, 乫°¡°¡ º¯Á¦ÇÏ¿© °æ¸Å¸¦ ÃëÇϽÃŰ°Å³ª °æ¸Å½Åûä±ÇÀÚ°¡ ¹è´ç¹ÞÀº ±Ý¿øÀÌ ¾ø°ÔµÇ¾î À̸¥ ¹Ù "¹«À׿©¿¡ ÀÇÇÑ Ãë¼Ò"°¡ µÉ °¡´É¼ºÀÌ ÀÖ½À´Ï´Ù.

ÁÖÀÇ»çÇ× (ÃÖ¼±¼øÀ§ ¼³Á¤ÀÏ: 2018.11.8. ¾Ð·ù ¼³Á¤)

¸Å°¢À¸·Î ¼Ò¸êµÇÁö ¾Ê´Â µî±âºÎ±Ç¸®:
¸Å°¢À¸·Î ¼³Á¤µÈ °ÍÀ¸·Î º¸´Â Áö»ó±Ç:
- ÀÌ »ç°Ç ´©ÁÔ»ó°¡´Â °¢ ¼ÒÀ¯ÀÚµéÀÌ Ã¤¹«ÀÚ Á¶ÇÕÀ» ±¸¼ºÇÏ¿© ½ÅÃàÇÑ °Ç¹°Àε¥ °¢ ÅäÁöÀÇ ±Ç¸®°ü°è¿Í ÁöºÐÀÌ º¹ÀâÇÏ¿© ´ëÁö±Ç µî±â¸¦ ¸¶Ä¡Áö ¸øÇÏ¿´°í, ´Ù¸¸ ´ëÁöÀÇ »ç¿ë±Ç¿¡ ´ëÇÏ¿©´Â °¢ ¼öºÐ¾çÀڵ鿡°Ô 30³â°£ÀÇ Áö»ó±ÇÀ» º¸ÀåÇØ ÁÖ°í ÀÖÀ¸¸ç(Á¡Æ÷ºÐ¾ç ¹× ÅäÁö»ç¿ë°è¾à¼­ Á¦2Á¶ 2Ç× ÂüÁ¶), ´ëÁö»ç¿ë±ÇÀÌ ÀüÀ¯ºÎºÐ°ú ºÐ¸®Ã³ºÐÀÌ °¡´ÉÇÏ´Ù´Â ±Ô¾àÀ̳ª °øÁ¤Áõ¼­´Â Á¸ÀçÇÏÁö ¾ÊÀ½(ÀÌ »ç°Ç ½Åû¿øÀÎ ÂüÁ¶). - Æò°¡½Ã º»°Ç À¯»ç ºÎµ¿»êÀÌ ´ëÁö±ÇÀº Æ÷ÇÔÇÏÁö ¾Ê°í °Å·¡µÇ´Â °üÇàÀÌ ÀÖ´Â ¹Ù À̸¦ °í·ÁÇÏ¿© °Ç¹°¸¸À» °¨Á¤Æò°¡ÇÏ¿´À½, ÆÇ ¸Å½Ã¼³·Î ÀÌ¿ë ÁßÀÓ(°¨Á¤Æò°¡¼­ ÂüÁ¶).
¡Ø¹Ì³³°ü¸®ºñ(°ø¿ë) Àμö¿©ºÎ¸¦ ÀÔÂû Àü¿¡ È®ÀÎÇϽñ⠹ٶø´Ï´Ù

 

Áö¿ªºÐ¼®

ÁöÇÏö¸í Á÷¼±°Å¸®

Çб³¸í ÀüÈ­¹øÈ£ ÁÖ¼Ò Á÷¼±°Å¸®

¹ý¿ø

¼­¿ïÁß¾ÓÁö¹æ¹ý¿ø (065-94)¼­¿ïƯº°½Ã ¼­Ãʱ¸ ¼­ÃÊÁß¾Ó·Î 157 (¼­Ãʵ¿)
´ëÇ¥ : 02)530-1114, ¾ß°£ : 02)530-1280/536-8003
°üÇÒÁö¿ª : Á¾·Î±¸, Áß±¸, °­³²±¸, ¼­Ãʱ¸, °ü¾Ç±¸, µ¿ÀÛ±¸

µî±â¼Ò ¼­¿ïÁß¾ÓÁö¹æ¹ý¿ø º»¿ø Áߺεî±â¼Ò (´ëÇ¥:1544-0773, ÆÑ½º:(02)756-0999, ¼­¿ïƯº°½Ã Áß±¸ ¼­¼Ò¹®·Î11±æ 34 (¼­¼Ò¹®µ¿ 37-8))
¼¼¹«¼­ Áߺμ¼¹«¼­ (´ëÇ¥:02-2260-92, ÆÑ½º:02-2268-0582, ¼­¿ï Áß±¸ ¼Ò°ø·Î 70(Ãæ¹«·Î1°¡ 21-1))

Àαٳ«ÂûÅë°è

±â°£ ¸Å°¢°Ç¼ö Æò±Õ°¨Á¤°¡
Æò±Õ¸Å°¢°¡
¸Å°¢°¡À²
Æò±ÕÀ¯Âû¼ö
3°³¿ù 4°Ç 80,075,000¿ø
19,729,000¿ø
24%
7.8ȸ
6°³¿ù 5°Ç 101,060,000¿ø
17,837,200¿ø
21%
8.8ȸ
12°³¿ù 21°Ç 671,656,500¿ø
481,972,605¿ø
41%
5.8ȸ


º» °æ¸ÅÁ¤º¸´Â ¹ý¿øÀÚ·á¿Í ÀÏÄ¡Çϵµ·Ï ÇÏ¿´À¸³ª ±Ç¸®»çÇ׺¯µ¿, ÀÔ·ÂÂø¿À µîÀÇ ¿øÀÎÀ¸·Î »ç½Ç°ú ´Ù¸¦ ¼ö ÀÖ½À´Ï´Ù. ÀÌ¿ë¾à°ü¿¡ ÀǰЏéÃ¥Á¶°ÇÀ¸·Î Á¦°øµÊÀ» ¾Ë¸®¸ç, °æ¸ÅÀÔÂû½Ã ¹Ýµå½Ã °ü·Ã °øºÎ¸¦ ÀçÈ®ÀÎÇϽñ⠹ٶø´Ï´Ù. º¸´Ù Æí¸®ÇÑ °æ¸ÅÁ¤º¸ Á¦°øÀ» À§ÇØ Áö¼ÓÀûÀ¸·Î °³¼±ÇϰڽÀ´Ï´Ù. ÀÌ¿ëÇØ Áּż­ °¨»çÇÕ´Ï´Ù.