·Î±×ÀÎ
986
¾ÆÆÄÆ®
¼ö¿øÁö¹æ¹ý¿ø
 °¨Á¤°¡205,000,000 ¿ø
 ÃÖÀú°¡(100%) 205,000,000 ¿ø
 º¸Áõ±Ý(10%) 20,500,000 ¿ø
 Ã»±¸¾×48,155,822 ¿ø
°æ±âµµ ¿ëÀνà óÀα¸ ÇÑÅÍ·Î152¹ø±æ 45, 105µ¿ 13Ãþ1304È£ (°í¸²µ¿,ÀÎÁ¤ÇÇ·»Ã¼ºô¸®Áö1Â÷¾ÆÆÄÆ®)
°æ±âµµ ¿ëÀνà óÀα¸ °í¸²µ¿ 264-8
»ç°Ç¹øÈ£ 2023Ÿ°æ10169
°æ¸ÅÁ¾·ùºÎµ¿»êÀÓÀǰæ¸Å
¸Å°¢´ë»óÅäÁö ¹× °Ç¹°Àϰý¸Å°¢
¸Å°¢±âÀÏ    2024.06.19(¼ö) 10:00    
ÅäÁö¸éÀû41.40§³(12.52 Æò)
°Ç¹°¸éÀû59.93§³(18.13 Æò)
乫/¼ÒÀ¯ÀÚ¹ÚOO / ÇüOO
ä±ÇÀÚÇÏOOOO OOOO
ÆäÀ̽ººÏ Æ®À§ÅÍ ±¸±Û+
īī¿À½ºÅ丮
īī¿ÀÅå sms¹®ÀÚº¸³»±â
 

±âÀϳ»¿ª

°æ°ú ³¯Â¥ Àú°¨ ÃÖÀú°¡ °á°ú
Á¢¼öÀÏ 2023-10-10 °æ¸ÅÁ¢¼ö
~1ÀÏ 
2023-10-11 °æ¸Å°³½Ã°áÁ¤
~78ÀÏ 
2023-12-27 ¹è´ç¿ä±¸Á¾±âÀÏ
~253ÀÏ 
2024-06-19 100%
205,000,000
ÃëÇÏ
¹°°Ç¸í¼¼¼­ ÇöȲÁ¶»ç¼­ ¹®°ÇÁ¢¼ö ¼Û´Þ³»¿ª

°¨Á¤Æò°¡ÇöȲ

¸ñ·Ï ÁÖ¼Ò ±¸Á¶/¿ëµµ/´ëÁö±Ç ¸éÀû ºñ°í
´ëÁö±Ç
ÇÑÅÍ·Î152¹ø±æ 45 26904.0 ºÐÀÇ 41.399 41.399 §³
(12.52Æò)
°Ç¹°
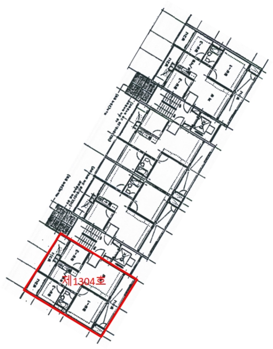
ÇÑÅÍ·Î152¹ø±æ 45 13Ãþ1304È£ (°í¸²µ¿,ÀÎÁ¤ÇÇ·»Ã¼ºô¸®Áö1Â÷¾ÆÆÄÆ®) ö±ÙÄÜÅ©¸®Æ®±¸Á¶ 59.930 §³
(18.13Æò)
 
°æ±âµµ ¿ëÀνà óÀα¸ °í¸²µ¿ ¼ÒÀç "°í¸²ÃʵîÇб³" ³²µ¿Ãø Àαٿ¡ À§Ä¡/µµ½ÃÁö¿ª/Á¦2Á¾ÀϹÝÁÖ°ÅÁö¿ª/³ë¼±¹ö½ºÁ¤·ùÀå/°£¼±µµ·Î/ö±ÙÄÜÅ©¸®Æ®Á¶/½º¶óºêÁöºØ/µµ½Ã°¡½º/¹æ3/È­Àå½Ç1 ´õº¸±â
°¨Á¤Æò°¡ ¿äÇ×Ç¥
1) À§Ä¡ ¹× ÁÖÀ§È¯°æ=º»°ÇÀº °æ±âµµ ¿ëÀνà óÀα¸ °í¸²µ¿ ¼ÒÀç "°í¸²ÃʵîÇб³" ³²µ¿Ãø Àαٿ¡ À§Ä¡Çϸç, ÁÖÀ§´Â ÀÓ¾ß, ¾ÆÆÄÆ®, ´Üµ¶ÁÖÅÃ, ±Ù¸°»ýȰ½Ã¼³ µîÀÌ ¼ÒÀçÇÏ´Â ±Ù±³ÁÖ°ÅÁö´ëÀÓ.

2) ±³Åë»óȲ=º»°Ç±îÁö Â÷·®À¸·Î Á¢±ÙÀÌ °¡´ÉÇϸç, ³ë¼±¹ö½ºÁ¤·ùÀå±îÁöÀÇ °Å¸® µîÀ» °í·Á½Ã ´ëÁß±³Åëȯ°æÀº º¸ÅäÀÓ.

3) °Ç¹°ÀÇ ±¸Á¶=ö±ÙÄÜÅ©¸®Æ®Á¶ ½º¶óºêÁöºØ 15Ãþ °Ç(»ç¿ë½ÂÀÎ: 2001.01.25)³»
Á¦13Ãþ Á¦1304È£·Î,

¿Üº®: ¸ôÅ»À§ ÆäÀÎÆÃ ¸¶°¨ µî,
³»º®: º®Áöµµ¹è ¹× ŸÀÏ ¸¶°¨ µî,
âȣ: ÇÏÀ̼¦½Ã âȣ µîÀÓ.

4) ÀÌ¿ë»óÅÂ=¾ÆÆÄÆ®(¹æ3, °Å½Ç ¹× ÁÖ¹æ, È­Àå½Ç1)·Î ÀÌ¿ëÁßÀÓ.

5) ¼³ºñ³»¿ª=±âº»±Þ¹è¼ö ¹× À§»ý¼³ºñ, µµ½Ã°¡½º¼³ºñ, ½Â°­±â¼³ºñ µîÀ» ±¸ºñÇϰí ÀÖÀ½.


6) ÅäÁöÀÇ Çü»ó ¹× ÀÌ¿ë»óÅÂ=¿Ï°æ»çÁö´ëÀÇ »ç´Ù¸®Çü ÅäÁö·Î ¾ÆÆÄÆ®°ÇºÎÁö·Î ÀÌ¿ëÁßÀÓ.

7) ÀÎÁ¢ µµ·Î»óŵî=º»°Ç ³²¼­Ãø ¹× ºÏ¼­ÃøÀ¸·Î °£¼±µµ·Î¿¡ ¿¬°áµÇ´Â ³ëÆø ¾à 18m³»¿ÜÀÇ ¾Æ½ºÆÈÆ®Æ÷Àåµµ·Î¿¡ Á¢ÇÔ.

8) ÅäÁöÀÌ¿ë°èȹ ¹× Á¦ÇÑ»óÅÂ=±âÈ£(1)
µµ½ÃÁö¿ª , Á¦2Á¾ÀϹÝÁÖ°ÅÁö¿ª , Áß·Î2·ù(Æø 15m-20m)(±¹Áöµµ·Î)(Á¢ÇÕ)
°¡Ãà»çÀ°Á¦Çѱ¸¿ª<°¡ÃàºÐ´¢ÀÇ °ü¸® ¹× À̿뿡 °üÇÑ ¹ý·ü> , »ó´ëº¸È£±¸¿ª<±³À°È¯°æ º¸È£¿¡ °üÇÑ ¹ý·ü> , ¹èÃâ½Ã¼³¼³Ä¡Á¦ÇÑÁö¿ª<¹°È¯°æº¸Àü¹ý> , ¼ÒÇÏõ±¸¿ª(2018-02-22)(´Ü»ç°ñõ)<¼ÒÇÏõÁ¤ºñ¹ý> , ÀÚ¿¬º¸Àü±Ç¿ª<¼öµµ±ÇÁ¤ºñ°èȹ¹ý> , ¼öÁúº¸ÀüƯº°´ëÃ¥Áö¿ª<ȯ°æÁ¤Ã¥±âº»¹ý> ÀÓ.

±âÈ£(2)
µµ½ÃÁö¿ª , Á¦2Á¾ÀϹÝÁÖ°ÅÁö¿ª
°¡Ãà»çÀ°Á¦Çѱ¸¿ª<°¡ÃàºÐ´¢ÀÇ °ü¸® ¹× À̿뿡 °üÇÑ ¹ý·ü> , »ó´ëº¸È£±¸¿ª<±³À°È¯°æ º¸È£¿¡ °üÇÑ ¹ý·ü> , ¹èÃâ½Ã¼³¼³Ä¡Á¦ÇÑÁö¿ª<¹°È¯°æº¸Àü¹ý> , ÀÚ¿¬º¸Àü±Ç¿ª<¼öµµ±ÇÁ¤ºñ°èȹ¹ý> , ¼öÁúº¸ÀüƯº°´ëÃ¥Áö¿ª<ȯ°æÁ¤Ã¥±âº»¹ý> ÀÓ.

±âÈ£(3)

µµ½ÃÁö¿ª , Á¦2Á¾ÀϹÝÁÖ°ÅÁö¿ª
°¡Ãà»çÀ°Á¦Çѱ¸¿ª<°¡ÃàºÐ´¢ÀÇ °ü¸® ¹× À̿뿡 °üÇÑ ¹ý·ü> , ¹èÃâ½Ã¼³¼³Ä¡Á¦ÇÑÁö¿ª<¹°È¯°æº¸Àü¹ý> , ÀÚ¿¬º¸Àü±Ç¿ª<¼öµµ±ÇÁ¤ºñ°èȹ¹ý> , ¼öÁúº¸ÀüƯº°´ëÃ¥Áö¿ª<ȯ°æÁ¤Ã¥±âº»¹ý> ÀÓ.

9) °øºÎ¿ÍÀÇ Â÷ÀÌ=-

10) ±âŸÂü°í»çÇ×(ÀÓ´ë°ü·Ê ¹× ±âŸ)=ÀÓ´ë°ü°è´Â ¹Ì»óÀÓ.


Âü°í
»çÇ×

º»°Ç ºÎµ¿»êÀº °øµ¿ÁÖÅÃÀ¸·Î ÇöȲÀº ¿Ü°ü»ó ºÎµ¿»êÀÇ Ç¥½Ã¿Í ÀÏÄ¡ÇÏ´Â °ÍÀ¸·Î º¸ÀÓ

°ÇÃ๰ÇöȲ

¼ÒÀçÁö °æ±âµµ ¿ëÀνà óÀα¸ °í¸²µ¿ 264-8¹øÁö
´ëÁö¸éÀû   ¿¬¸éÀû 4361.77§³
(1321.75Æò)
°ÇÃà¸éÀû 299.64§³
(90.8Æò)
¿ëÀû·ü»êÁ¤
¿¬¸éÀû
4361.77§³
(1321.75Æò)
°ÇÆóÀ²   ¿ëÀû·ü  
Áö»óÃþ¼ö 15Ãþ ÁöÇÏÃþ¼ö  
ÁÖ¿ëµµ °øµ¿ÁÖÅà ±¸Á¶ ö±ÙÄÜÅ©¸®Æ®±¸Á¶
Âø°øÀÏÀÚ 1997.05 »ç¿ë½ÂÀÎÀÏÀÚ 2000.01.25
°ÇÃ๰Ãþº°ÇöȲ [º¸±â]

¾ÆÆÄÆ® ´ÜÁöÁ¤º¸ ( ´ÜÁö¸í : ÀÎÁ¤ÇÇ·»Ã¼ºô¸®Áö1Â÷ )

¹ýÁ¤ÁÖ¼Ò°æ±âµµ ¿ëÀÎóÀα¸ °í¸²µ¿ 264-8 ÀÎÁ¤ÇÇ·»Ã¼ºô¸®Áö1Â÷
´ÜÁö¸íÀÎÁ¤ÇÇ·»Ã¼ºô¸®Áö1Â÷
´ÜÁöºÐ·ù¾ÆÆÄÆ®ºÐ¾çÇüźоç
³­¹æ¹æ½Ä°³º°³­¹æ¿¬¸éÀû66394.593§³
(20119.57Æò)
µ¿¼ö10¼¼´ë¼ö639
½Ã°ø»çÀÎÁ¤°Ç¼³½ÃÇà»çÀÎÁ¤°Ç¼³
°ü¸®»ç¹«¼Ò
¿¬¶ôó
031-321-2514°ü¸®ºñ
ºÎ°ú¸éÀû
50660.559§³
(15351.68Æò)
º¹µµÀ¯Çü°è´Ü½Ä°ü¸®¹æ½ÄÀ§Å¹°ü¸®
»ç¿ë½ÂÀÎÀÏ2000³â01¿ù25ÀÏÈ£¼ö639
¼¼´ëÇöȲ
60§³ÀÌÇÏ
639¼¼´ëÇöȲ
85§³ÀÌÇÏ
0
¼¼´ëÇöȲ
135§³ÀÌÇÏ
0¼¼´ëÇöȲ
135§³Ãʰú
0

µî±âºÎµîº» ¿ä¾à(°Ç¹°)

  Á¢¼öÀÏÀÚ µî±â¸ñÀû/±Ç¸®ÀÚ ±Ç¸®±Ý¾× ±âÁØ
1
¼ÒÀ¯±Ç
ÇüOO
¼Ò¸ê
2 2015³â9¿ù4ÀÏ
±ÙÀú´ç±Ç
(OOOO
129,600,000 ¼Ò¸ê±âÁØ
3 2022³â6¿ù3ÀÏ
±ÙÀú´ç±Ç
ÇÏOOOO
55,200,000 ¼Ò¸ê
4 2023³â10¿ù12ÀÏ
ÀÓÀǰæ¸Å
ÇÏOOOO
¼Ò¸ê

ÀÓÂ÷ÀÎÇöȲ (¹è´ç¿ä±¸Á¾±âÀÏ: 2023-12-27)


Á¶»çµÈ ÀÓÂ÷³»¿ªÀÌ ¾ø½À´Ï´Ù


¿©ÀÇÁÖ°æ¸Å Á¶¾ð ÇÑ ¸¶µð

ÃëÇÏ ¶Ç´Â Ãë¼ÒµÉ °¡´É¼º ÀÖ½À´Ï´Ù
ÀÌ ¹°°ÇÀÇ °¨Á¤°¡°ÝÀº 205,000,000¿øÀÔ´Ï´Ù. °æ¸Å¸¦ ½ÅûÇÑ Ã¤±ÇÀÚ°¡ ¹è´ç ¹Þ¾Æ¾ß ÇÒ ±Ý¾×Àº 48,155,822¿øÀ¸·Î °¨Á¤°¡°Ý ´ëºñ »ó´çÈ÷ ÀûÀº ±Ý¾×ÀÔ´Ï´Ù. ÀÌ·± °æ¿ì, 乫°¡°¡ º¯Á¦ÇÏ¿© °æ¸Å¸¦ ÃëÇϽÃŰ°Å³ª °æ¸Å½Åûä±ÇÀÚ°¡ ¹è´ç¹ÞÀº ±Ý¿øÀÌ ¾ø°ÔµÇ¾î À̸¥ ¹Ù "¹«À׿©¿¡ ÀÇÇÑ Ãë¼Ò"°¡ µÉ °¡´É¼ºÀÌ ÀÖ½À´Ï´Ù.

ÁÖÀÇ»çÇ× (ÃÖ¼±¼øÀ§ ¼³Á¤ÀÏ: )

¸Å°¢À¸·Î ¼Ò¸êµÇÁö ¾Ê´Â µî±âºÎ±Ç¸®:
¸Å°¢À¸·Î ¼³Á¤µÈ °ÍÀ¸·Î º¸´Â Áö»ó±Ç:
¡Ø¹Ì³³°ü¸®ºñ(°ø¿ë) Àμö¿©ºÎ¸¦ ÀÔÂû Àü¿¡ È®ÀÎÇϽñ⠹ٶø´Ï´Ù

 

Áö¿ªºÐ¼®

ÁöÇÏö¸í Á÷¼±°Å¸®

Çб³¸í ÀüÈ­¹øÈ£ ÁÖ¼Ò Á÷¼±°Å¸®

¹ý¿ø

¼ö¿øÁö¹æ¹ý¿ø (165-12)°æ±âµµ ¼ö¿ø½Ã ¿µÅ뱸 ¹ýÁ¶·Î 105, Çϵ¿, ¼ö¿ø¹ý¿øÁ¾ÇÕû»ç
´ëÇ¥ : 031)210-1114, ¾ß°£ : 031)210-1111
°üÇÒÁö¿ª : ¼ö¿ø½Ã, ¿À»ê½Ã, È­¼º½Ã, ¿ëÀνÃ

µî±â¼Ò ¼ö¿øÁö¹æ¹ý¿ø º»¿ø ¿ëÀεî±â¼Ò (´ëÇ¥:1544-0773, ÆÑ½º:(031)321-3919, °æ±âµµ ¿ëÀνà óÀα¸ ¼º»ê·Î 7 (¿ªºÏµ¿ 391-28))
¼¼¹«¼­ ¿ëÀμ¼¹«¼­ (´ëÇ¥:031-329-22, ÆÑ½º:031-329-2328, °æ±âµµ ¿ëÀνà óÀα¸ Áߺδë·Î1161¹ø±æ 71 (»ï°¡µ¿))

Àαٳ«ÂûÅë°è

±â°£ ¸Å°¢°Ç¼ö Æò±Õ°¨Á¤°¡
Æò±Õ¸Å°¢°¡
¸Å°¢°¡À²
Æò±ÕÀ¯Âû¼ö
3°³¿ù 15°Ç 284,733,333¿ø
248,008,327¿ø
84%
1.1ȸ
6°³¿ù 27°Ç 277,259,259¿ø
242,998,552¿ø
86%
1ȸ
12°³¿ù 58°Ç 360,706,897¿ø
297,984,064¿ø
84%
1ȸ


º» °æ¸ÅÁ¤º¸´Â ¹ý¿øÀÚ·á¿Í ÀÏÄ¡Çϵµ·Ï ÇÏ¿´À¸³ª ±Ç¸®»çÇ׺¯µ¿, ÀÔ·ÂÂø¿À µîÀÇ ¿øÀÎÀ¸·Î »ç½Ç°ú ´Ù¸¦ ¼ö ÀÖ½À´Ï´Ù. ÀÌ¿ë¾à°ü¿¡ ÀǰЏéÃ¥Á¶°ÇÀ¸·Î Á¦°øµÊÀ» ¾Ë¸®¸ç, °æ¸ÅÀÔÂû½Ã ¹Ýµå½Ã °ü·Ã °øºÎ¸¦ ÀçÈ®ÀÎÇϽñ⠹ٶø´Ï´Ù. º¸´Ù Æí¸®ÇÑ °æ¸ÅÁ¤º¸ Á¦°øÀ» À§ÇØ Áö¼ÓÀûÀ¸·Î °³¼±ÇϰڽÀ´Ï´Ù. ÀÌ¿ëÇØ Áּż­ °¨»çÇÕ´Ï´Ù.