·Î±×ÀÎ
20447
¾ÆÆÄÆ®
¼ö¿øÁö¹æ¹ý¿ø ¼º³²Áö¿ø
 °¨Á¤°¡982,000,000 ¿ø
 ÃÖÀú°¡(70%) 687,400,000 ¿ø
 º¸Áõ±Ý(10%) 68,740,000 ¿ø
 Ã»±¸¾×340,978,767 ¿ø
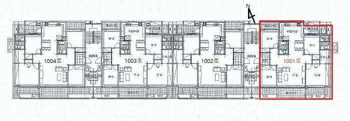
°æ±âµµ ¼º³²½Ã Áß¿ø±¸ µÐÃÌ´ë·Î171¹ø±æ 6, 109µ¿ 10Ãþ1001È£ (¼º³²µ¿,¼º³²µ¿ ¾î¿ï¸²)
°æ±âµµ ¼º³²½Ã Áß¿ø±¸ ¼º³²µ¿ 3126
»ç°Ç¹øÈ£ 2022Ÿ°æ61804
Áߺ¹»ç°ÇÁߺ¹ 2024Ÿ°æ2175,
°æ¸ÅÁ¾·ùºÎµ¿»êÀÓÀǰæ¸Å
¸Å°¢´ë»óÅäÁö ¹× °Ç¹°Àϰý¸Å°¢
¸Å°¢±âÀÏ    2025.11.03(¿ù) 10:00    
ÅäÁö¸éÀû61.17§³(18.50 Æò)
°Ç¹°¸éÀû118.36§³(35.80 Æò)
乫/¼ÒÀ¯ÀÚ±¸OO / ±¸OO
ä±ÇÀÚÄÉOOOOOO OOOO¿Ü 1¸í
ÆäÀ̽ººÏ Æ®À§ÅÍ ±¸±Û+
īī¿À½ºÅ丮
īī¿ÀÅå sms¹®ÀÚº¸³»±â
 

±âÀϳ»¿ª

°æ°ú ³¯Â¥ Àú°¨ ÃÖÀú°¡ °á°ú
Á¢¼öÀÏ 2022-12-14 °æ¸ÅÁ¢¼ö
~6ÀÏ 
2022-12-20 °æ¸Å°³½Ã°áÁ¤
~90ÀÏ 
2023-03-14 ¹è´ç¿ä±¸Á¾±âÀÏ
~446ÀÏ 
2024-03-04 100%
982,000,000
À¯Âû
~481ÀÏ 
2024-04-08 70%
687,400,000
º¯°æ
~1055ÀÏ 
2025-11-03 70%
687,400,000
ÁøÇà
¹°°Ç¸í¼¼¼­ ÇöȲÁ¶»ç¼­ ¹®°ÇÁ¢¼ö ¼Û´Þ³»¿ª

°¨Á¤Æò°¡ÇöȲ

¸ñ·Ï ÁÖ¼Ò ±¸Á¶/¿ëµµ/´ëÁö±Ç ¸éÀû ºñ°í
´ëÁö±Ç
µÐÃÌ´ë·Î171¹ø±æ 6 22929.1 ºÐÀÇ 61.17 61.17 §³
(18.50Æò)
°Ç¹°
µÐÃÌ´ë·Î171¹ø±æ 6 10Ãþ1001È£ (¼º³²µ¿,¼º³²µ¿ ¾î¿ï¸²) ö±ÙÄÜÅ©¸®Æ®±¸Á¶ 118.36 §³
(35.80Æò)
 
°æ±âµµ ¼º³²½Ã Áß¿ø±¸ ¼º³²µ¿ ¼ÒÀç "Áß¿ø±¸Ã»" µ¿Ãø Àαٿ¡ À§Ä¡/µµ½ÃÁö¿ª/Á¦3Á¾ÀϹÝÁÖ°ÅÁö¿ª/Áö±¸´ÜÀ§°èȹ±¸¿ª/Â÷·®ÃâÀÔ °¡´É/¹ö½ºÁ¤·ùÀå/ÁöÇÏö/ö±ÙÄÜÅ©¸®Æ®±¸Á¶/µµ½Ã°¡½º/¹æ4/¿å½Ç2 ´õº¸±â
°¨Á¤Æò°¡ ¿äÇ×Ç¥
1) À§Ä¡ ¹× ÁÖÀ§È¯°æ= º»°ÇÀº °æ±âµµ ¼º³²½Ã Áß¿ø±¸ ¼º³²µ¿ ¼ÒÀç "Áß¿ø±¸Ã»" µ¿Ãø Àαٿ¡ À§Ä¡ÇÏ´Â ¾ÆÆÄÆ®
(¼º³²µ¿ ¾î¿ï¸² Á¦109µ¿ Á¦10Ãþ Á¦1001È£)·Î¼­ ÁÖÀ§´Â ¾ÆÆÄÆ®´ÜÁö, ´Üµ¶ÁÖÅÃ, °øµ¿
ÁÖÅÃ, ±Ù¸°»ýȰ½Ã¼³ µîÀÌ È¥ÀçÇÏ´ÂÁö¿ªÀ¸·Î ÁÖÀ§È¯°æÀº º¸ÅëÀÎ ÆíÀÓ.

2) ±³Åë»óȲ= º»°Ç ¾ÆÆÄÆ® ´ÜÁö³» Â÷·®ÃâÀÔ °¡´ÉÇϸç, º»°Ç Àαٿ¡ ³ë¼± ¹ö½ºÁ¤·ùÀåÀÌ ¼ÒÀçÇϰí
±Ù°Å¸®¿¡ ÁöÇÏö¿ª(¸ð¶õ¿ª) µîÀÌ À§Ä¡ÇÏ¿© ´ëÁß±³ÅëÆíµµ ¾çÈ£ÇÑ ÆíÀÓ.

3) °Ç¹°ÀÇ ±¸Á¶= ö±ÙÄÜÅ©¸®Æ®±¸Á¶ ±Ý¼Ó±â¿Í, ±âŸÁöºØ Áö»ó15Ãþ°Ç ³» 10Ãþ 1001È£·Î¼­

¿Üº® : ¸ôÅ»À§ÆäÀÎÆ®
³»º® : º®Áö ¹× ÀϺΠŸÀϺÙÀÓ µî
âȣ : ¼¦½Ã âȣÀÓ.

4) ÀÌ¿ë»óÅÂ= ¾ÆÆÄÆ®(¹æ4, ¿å½Ç2, °Å½Ç, ÁÖ¹æ, µå·¹½º·ë, ¹ßÄÚ´Ï, Çö°ü µî)À¸·Î ÀÌ¿ëÁßÀÓ.

5) ¼³ºñ³»¿ª= À§»ý ¹× ±Þ¹è¼ö½Ã¼³, ½Â°­±â¼³ºñ, ¼ÒÈ­Àü, µµ½Ã°¡½º¿¡ ÀÇÇÑ °³º°½Ä³­¹æ¼³ºñ µîÀ»
°®Ãß°í ÀÖÀ½.

6) ÅäÁöÀÇ Çü»ó ¹× ÀÌ¿ë»óÅÂ= ´ëü·Î »ç´Ù¸®ÇüÀÇ ³²ÇÏÇ⠿ϰæ»çÁö·Î¼­ ¾ÆÆÄÆ®ÀÇ °ÇºÎÁö·Î ÀÌ¿ëÁßÀÓ.

7) ÀÎÁ¢ µµ·Î»óŵî= º»°Ç ¾ÆÆÄÆ® ´ÜÁö³» µµ·Î°¡ Àα٠°øµµ¿Í ¿¬°èµÇ¾î ÀÖÀ½.

8) ÅäÁöÀÌ¿ë°èȹ ¹× Á¦ÇÑ»óÅÂ= µµ½ÃÁö¿ª, Á¦3Á¾ÀϹÝÁÖ°ÅÁö¿ª, Áö±¸´ÜÀ§°èȹ±¸¿ª(Àç°ÇÃà), ±¤·Î3·ù(Æø 40m-50m)
(Á¢ÇÕ), ¼Ò·Î2·ù(Æø 8m-10m)(±¹Áöµµ·Î)(Á¢ÇÕ), ¼Ò·Î3·ù(Æø 8m ¹Ì¸¸)(±¹Áöµµ·Î)
(Á¢ÇÕ), Áß·Î3·ù(Æø 12m-15m)(Á¢ÇÕ), °¡Ãà»çÀ°Á¦Çѱ¸¿ª, ºñÇà¾ÈÀüÁ¦5±¸¿ª(Àü¼ú)
(ºñÇà¾ÈÀüÁ¦5±¸¿ª), Á¦ÇѺ¸È£±¸¿ª(Àü¼úÇ×°ø:5km), ´ë±âȯ°æ±ÔÁ¦Áö¿ª, µµ½Ã±³Åë
Á¤ºñÁö¿ª, °ú¹Ð¾ïÁ¦±Ç¿ªÀÓ.

9) °øºÎ¿ÍÀÇ Â÷ÀÌ= ÇØ´ç»çÇ× ¾øÀ½.

10) ±âŸÂü°í»çÇ×(ÀÓ´ë°ü·Ê ¹× ±âŸ)= ÀÓ´ë°ü°è µîÀº ¹Ì»óÀÓ.



°ÇÃ๰ÇöȲ

¼ÒÀçÁö °æ±âµµ ¼º³²½Ã Áß¿ø±¸ ¼º³²µ¿ 3126¹øÁö
´ëÁö¸éÀû   ¿¬¸éÀû 5763.54§³
(1746.53Æò)
°ÇÃà¸éÀû 513.7§³
(155.67Æò)
¿ëÀû·ü»êÁ¤
¿¬¸éÀû
5763.54§³
(1746.53Æò)
°ÇÆóÀ²   ¿ëÀû·ü  
Áö»óÃþ¼ö 14Ãþ ÁöÇÏÃþ¼ö  
ÁÖ¿ëµµ °øµ¿ÁÖÅà ±¸Á¶ ö±ÙÄÜÅ©¸®Æ®±¸Á¶
Âø°øÀÏÀÚ 2004.09.15 »ç¿ë½ÂÀÎÀÏÀÚ 2006.08.29
°ÇÃ๰Ãþº°ÇöȲ [º¸±â]

¾ÆÆÄÆ® ´ÜÁöÁ¤º¸ ( ´ÜÁö¸í : ¼º³²µ¿¾î¿ï¸²¾ÆÆÄÆ® )

¹ýÁ¤ÁÖ¼Ò°æ±âµµ ¼º³²Áß¿ø±¸ ¼º³²µ¿ 3126 ¼º³²µ¿¾î¿ï¸²¾ÆÆÄÆ®
´ÜÁö¸í¼º³²µ¿¾î¿ï¸²¾ÆÆÄÆ®
´ÜÁöºÐ·ù¾ÆÆÄÆ®ºÐ¾çÇüźоç
³­¹æ¹æ½Ä°³º°³­¹æ¿¬¸éÀû71200.05§³
(21575.77Æò)
µ¿¼ö11¼¼´ë¼ö507
½Ã°ø»ç±ÝÈ£°Ç¼³(ÁÖ)½ÃÇà»ç±ÝÈ£°Ç¼³(ÁÖ)
°ü¸®»ç¹«¼Ò
¿¬¶ôó
031-758-8005°ü¸®ºñ
ºÎ°ú¸éÀû
54575.7§³
(16538.09Æò)
º¹µµÀ¯Çü°è´Ü½Ä°ü¸®¹æ½ÄÀ§Å¹°ü¸®
»ç¿ë½ÂÀÎÀÏ2006³â08¿ù29ÀÏÈ£¼ö507
¼¼´ëÇöȲ
60§³ÀÌÇÏ
108¼¼´ëÇöȲ
85§³ÀÌÇÏ
312
¼¼´ëÇöȲ
135§³ÀÌÇÏ
87¼¼´ëÇöȲ
135§³Ãʰú
0

µî±âºÎµîº» ¿ä¾à(°Ç¹°)

  Á¢¼öÀÏÀÚ µî±â¸ñÀû/±Ç¸®ÀÚ ±Ç¸®±Ý¾× ±âÁØ
1
¼ÒÀ¯±Ç
±¸OO
¼Ò¸ê
2 2019³â7¿ù1ÀÏ
±ÙÀú´ç±Ç
ÀÌOOOO
534,000,000 ¼Ò¸ê±âÁØ
3 2022³â3¿ù8ÀÏ
±ÙÀú´ç±Ç
½ºOOOO
460,000,000 ¼Ò¸ê
4 2022³â3¿ù8ÀÏ
±ÙÀú´ç±Ç
½ºOOOO
40,000,000 ¼Ò¸ê
5 2022³â3¿ù8ÀÏ
Àü¼¼±Ç
½ºOOOO
5,000,000 ¼Ò¸ê
6 2022³â5¿ù4ÀÏ
±ÙÀú´ç±Ç
½ºOOOO
49,500,000 ¼Ò¸ê
7 2022³â12¿ù19ÀÏ
¾Ð·ù
¼ºOO
¼Ò¸ê
8 2022³â12¿ù20ÀÏ
ÀÓÀǰæ¸Å
ÄÉOOOO
¼Ò¸ê
9 2023³â1¿ù31ÀÏ
°¡¾Ð·ù
(OOOO
17,654,173 ¼Ò¸ê
10 2023³â11¿ù30ÀÏ
¾Ð·ù
±¹OOOO
¼Ò¸ê

ÀÓÂ÷ÀÎÇöȲ (¹è´ç¿ä±¸Á¾±âÀÏ: 2023-03-14)

ÀÓÂ÷ÀÎ ¿ëµµ/Á¡À¯ º¸Áõ±Ý/¿ù¼¼ ´ëÇ×·Â
ÀüÀÔÀÏ/È®Á¤ÀÏ ¹è´ç¿ä±¸ ºñ°í
½ºOOOOOOOOOOOO 1001È£ÀüºÎ 5,000,000

 
ºñ°í
(¸Å°¢¹°°Ç
¸í¼¼¼­)

¿©ÀÇÁÖ°æ¸Å Á¶¾ð ÇÑ ¸¶µð


ÁÖÀÇ»çÇ× (ÃÖ¼±¼øÀ§ ¼³Á¤ÀÏ: 2019.7.1. ±ÙÀú´ç±Ç ¼³Á¤)

¸Å°¢À¸·Î ¼Ò¸êµÇÁö ¾Ê´Â µî±âºÎ±Ç¸®:
¸Å°¢À¸·Î ¼³Á¤µÈ °ÍÀ¸·Î º¸´Â Áö»ó±Ç:
2024.11.21 ±ÙÀú´ç±ÇÀÚ ¿¥OOOOOOOOO(OOOOOOOOOOO) ±ÙÀú´ç±ÇÀÚº¯°æ½Åû ¹× ±ÙÁú±ÇÀÚ½Å°í¼­ Á¦Ãâ
¡Ø¹Ì³³°ü¸®ºñ(°ø¿ë) Àμö¿©ºÎ¸¦ ÀÔÂû Àü¿¡ È®ÀÎÇϽñ⠹ٶø´Ï´Ù

 

Áö¿ªºÐ¼®

ÁöÇÏö¸í Á÷¼±°Å¸®

Çб³¸í ÀüÈ­¹øÈ£ ÁÖ¼Ò Á÷¼±°Å¸®

¹ý¿ø

¼ö¿øÁö¹æ¹ý¿ø ¼º³²Áö¿ø (131-43)°æ±âµµ ¼º³²½Ã ¼öÁ¤±¸ »ê¼º´ë·Î 451 (´Ü´ëµ¿)
´ëÇ¥ : 031)737-1558, ¾ß°£ : 031)737-1120
°üÇÒÁö¿ª : ¼º³²½Ã, ±¤ÁÖ½Ã, Çϳ²½Ã

µî±â¼Ò ¼ö¿øÁö¹æ¹ý¿ø ¼º³²Áö¿ø µî±â°ú (´ëÇ¥:1544-0773, ÆÑ½º:(031)741-2913, °æ±âµµ ¼º³²½Ã ¼öÁ¤±¸ »ê¼º´ë·Î 451 (´Ü´ëµ¿ 75))
¼¼¹«¼­ ¼º³²¼¼¹«¼­ (´ëÇ¥:031-730-62, ÆÑ½º:031-736-1904, °æ±âµµ ¼º³²½Ã ¼öÁ¤±¸ Èñ¸Á·Î 480 (´Ü´ëµ¿))

Àαٳ«ÂûÅë°è

±â°£ ¸Å°¢°Ç¼ö Æò±Õ°¨Á¤°¡
Æò±Õ¸Å°¢°¡
¸Å°¢°¡À²
Æò±ÕÀ¯Âû¼ö
3°³¿ù 4°Ç 584,250,000¿ø
563,567,500¿ø
95%
1ȸ
6°³¿ù 9°Ç 612,888,889¿ø
565,453,555¿ø
92%
1.2ȸ
12°³¿ù 15°Ç 635,866,667¿ø
575,806,529¿ø
91%
1.2ȸ


º» °æ¸ÅÁ¤º¸´Â ¹ý¿øÀÚ·á¿Í ÀÏÄ¡Çϵµ·Ï ÇÏ¿´À¸³ª ±Ç¸®»çÇ׺¯µ¿, ÀÔ·ÂÂø¿À µîÀÇ ¿øÀÎÀ¸·Î »ç½Ç°ú ´Ù¸¦ ¼ö ÀÖ½À´Ï´Ù. ÀÌ¿ë¾à°ü¿¡ ÀǰЏéÃ¥Á¶°ÇÀ¸·Î Á¦°øµÊÀ» ¾Ë¸®¸ç, °æ¸ÅÀÔÂû½Ã ¹Ýµå½Ã °ü·Ã °øºÎ¸¦ ÀçÈ®ÀÎÇϽñ⠹ٶø´Ï´Ù. º¸´Ù Æí¸®ÇÑ °æ¸ÅÁ¤º¸ Á¦°øÀ» À§ÇØ Áö¼ÓÀûÀ¸·Î °³¼±ÇϰڽÀ´Ï´Ù. ÀÌ¿ëÇØ Áּż­ °¨»çÇÕ´Ï´Ù.