·Î±×ÀÎ
995
´Ù¼¼´ë(ºô¶ó)
¼ö¿øÁö¹æ¹ý¿ø
 °¨Á¤°¡237,000,000 ¿ø
 ÃÖÀú°¡(49%) 116,130,000 ¿ø
 º¸Áõ±Ý(10%) 11,613,000 ¿ø
 Ã»±¸¾×220,385,742 ¿ø
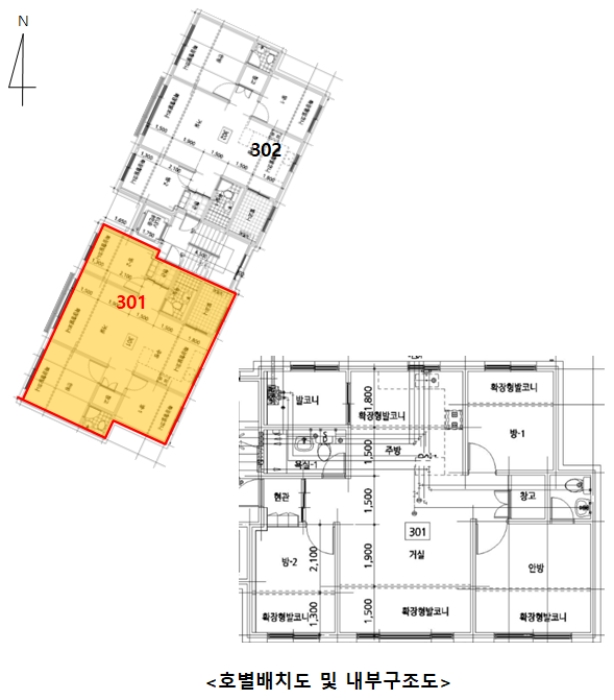
°æ±âµµ ¿ëÀνà óÀα¸ ¾çÁö¸é ³²°î·Î 115-3, 1µ¿ 3Ãþ301È£ (±×¸°ÆÄÅ©)
°æ±âµµ ¿ëÀνà óÀα¸ ¾çÁö¸é ³²°î¸® 339
»ç°Ç¹øÈ£ 2023Ÿ°æ60157
°æ¸ÅÁ¾·ùºÎµ¿»ê°­Á¦°æ¸Å
¸Å°¢´ë»óÅäÁö ¹× °Ç¹°Àϰý¸Å°¢
¸Å°¢±âÀÏ    2024.07.05(±Ý) 10:00    
ÅäÁö¸éÀû66.38§³(20.08 Æò)
°Ç¹°¸éÀû54.05§³(16.35 Æò)
乫/¼ÒÀ¯ÀÚ±ÇOO / ±ÇOO
ä±ÇÀÚÁÖOOOOOOO
ÆäÀ̽ººÏ Æ®À§ÅÍ ±¸±Û+
īī¿À½ºÅ丮
īī¿ÀÅå sms¹®ÀÚº¸³»±â
 

±âÀϳ»¿ª

°æ°ú ³¯Â¥ Àú°¨ ÃÖÀú°¡ °á°ú
Á¢¼öÀÏ 2023-04-18 °æ¸ÅÁ¢¼ö
~2ÀÏ 
2023-04-20 °æ¸Å°³½Ã°áÁ¤
~77ÀÏ 
2023-07-04 ¹è´ç¿ä±¸Á¾±âÀÏ
~231ÀÏ 
2023-12-05 100%
237,000,000
À¯Âû
~274ÀÏ 
2024-01-17 70%
165,900,000
À¯Âû
~309ÀÏ 
2024-02-21 49%
116,130,000
º¯°æ
~343ÀÏ 
2024-03-26 49%
116,130,000
À¯Âû
~377ÀÏ 
2024-04-29 100%
237,000,000
À¯Âû
~377ÀÏ 
2024-04-29 34%
81,291,000
º¯°æ
~412ÀÏ 
2024-06-03 70%
165,900,000
À¯Âû
~444ÀÏ 
2024-07-05 49%
116,130,000
¸Å°¢
³«Âû°¡ 154,050,000 (65%)
~499ÀÏ 
2024-08-29 ±âÇÑÈij³ºÎ
¹°°Ç¸í¼¼¼­ ÇöȲÁ¶»ç¼­ ¹®°ÇÁ¢¼ö ¼Û´Þ³»¿ª

°¨Á¤Æò°¡ÇöȲ

¸ñ·Ï ÁÖ¼Ò ±¸Á¶/¿ëµµ/´ëÁö±Ç ¸éÀû ºñ°í
´ëÁö±Ç
³²°î·Î 115-3 531.0 ºÐÀÇ 66.375 66.375 §³
(20.08Æò)
°Ç¹°
³²°î·Î 115-3 3Ãþ301È£ (±×¸°ÆÄÅ©) ö±ÙÄÜÅ©¸®Æ®±¸Á¶ 54.045 §³
(16.35Æò)
 
°æ±âµµ ¿ëÀνà óÀα¸ ¾çÁö¸é ³²°î¸® ¼ÒÀç "³²°î2¸® ¸¶À»È¸°ü" ³²Ãø Àαٿ¡ ¼ÒÀçÇϰí ÀÖÀ¸¸ç, ÁÖÀ§´Â °øµ¿ÁÖÅÃ, ´Üµ¶ÁÖÅÃ, ±Ù¸°»ýȰ½Ã¼³, °øÀå, â°í, ³ó°æÁöµîÀÌ È¥ÀçÇÔ. À§Ä¡/µµ½ÃÁö¿ª/ÀÚ¿¬³ìÁöÁö¿ª/¹ö½ºÁ¤·ùÀå/ö±ÙÄÜÅ©¸®Æ®±¸Á¶ ´õº¸±â
°¨Á¤Æò°¡ ¿äÇ×Ç¥
1) À§Ä¡ ¹× ÁÖÀ§È¯°æ=°æ±âµµ ¿ëÀνà óÀα¸ ¾çÁö¸é ³²°î¸® ¼ÒÀç "³²°î2¸® ¸¶À»È¸°ü" ³²Ãø Àαٿ¡ ¼ÒÀçÇϰí ÀÖÀ¸¸ç, ÁÖÀ§´Â °øµ¿ÁÖÅÃ, ´Üµ¶ÁÖÅÃ, ±Ù¸°»ýȰ½Ã¼³, °øÀå, â°í, ³ó°æÁöµîÀÌ È¥ÀçÇÔ.

2) ±³Åë»óȲ=º»°Ç±îÁö Â÷·®Á¢±Ù °¡´ÉÇϰí, Àαٿ¡ ¹ö½ºÁ¤·ùÀåÀÌ ¼ÒÀçÇÏ´Â µî ´ëÁß±³Åë»çÁ¤Àº º¸ÅëÀÓ.

3) °Ç¹°ÀÇ ±¸Á¶=ö±ÙÄÜÅ©¸®Æ®±¸Á¶ (ö±Ù)ÄÜÅ©¸®Æ®ÁöºØ Áö»ó4Ãþ °ÇÁß Á¦3Ãþ Á¦301È£·Î¼­,
(»ç¿ë½ÂÀÎÀÏ: 2019.05.10)
¿Üº® : ¼®Àç ¸¶°¨ÀÓ.
³»º® : º®Áöµµ¹è ¹× ÀϺΠŸÀϸ¶°¨ÀÓ.
âȣ : ¼¦½Ã âȣµîÀÓ.

4) ÀÌ¿ë»óÅÂ=µµ½ÃÇü»ýȰÁÖÅÃ(ÈÄ÷ "³»ºÎ±¸Á¶µµ" ÂüÁ¶)À¸·Î ÀÌ¿ëÁßÀÓ.

5) ¼³ºñ³»¿ª=±Þ¹è¼ö, À§»ý¼³ºñ, ³­¹æ¼³ºñ, ½Â°­±â¼³ºñ, °øµ¿Çö°ü º¸¾È¼³ºñµîÀÌ ±¸ºñµÇ¾î ÀÖÀ½.

6) ÅäÁöÀÇ Çü»ó ¹× ÀÌ¿ë»óÅÂ=´ëü·Î »ç´Ù¸®Çü, ÆòÁöÀÇ ÅäÁö·Î¼­, µµ½ÃÇü»ýȰÁÖÅÃÀÇ °ÇºÎÁö·Î ÀÌ¿ëÁßÀÓ.

7) ÀÎÁ¢ µµ·Î»óŵî=º»°Ç ºÏ¼­ÃøÀ¸·Î ¿Õº¹2Â÷¼± Æ÷Àåµµ·Î¿¡ Á¢ÇÔ.

8) ÅäÁöÀÌ¿ë°èȹ ¹× Á¦ÇÑ»óÅÂ=µµ½ÃÁö¿ª , ÀÚ¿¬³ìÁöÁö¿ª , ÀÚ¿¬Ãë¶ôÁö±¸ , ¼Ò·Î2·ù(Æø 8m-10m)(±¹Áöµµ·Î)(Á¢ÇÕ),°¡Ãà»çÀ°Á¦Çѱ¸¿ª(ÀüºÎÁ¦ÇÑÁö¿ª(ÇÏõ¿¡¼­300M))<°¡ÃàºÐ´¢ÀÇ °ü¸® ¹× À̿뿡 °üÇÑ ¹ý·ü>, ¹èÃâ½Ã¼³¼³Ä¡Á¦ÇÑÁö¿ª<¹°È¯°æº¸Àü¹ý>, ÀÚ¿¬º¸Àü±Ç¿ª<¼öµµ±ÇÁ¤ºñ°èȹ¹ý>, ¼öÁúº¸ÀüƯº°´ëÃ¥Áö¿ª<ȯ°æÁ¤Ã¥±âº»¹ý>ÀÓ.

9) °øºÎ¿ÍÀÇ Â÷ÀÌ=¾øÀ½.

10) ±âŸÂü°í»çÇ×(ÀÓ´ë°ü·Ê ¹× ±âŸ)=- ÀÓ´ë¹Ì»óÀÓ.

- º»°Ç ³»ºÎ±¸Á¶´Â ÇöÀåÁ¶»ç½Ã Æó¹® ¹× ÀÌÇØ°ü°èÀÎÀÇ ºÎÀçµîÀ¸·Î ÀÎÇÏ¿© °ÇÃ๰ ÇöȲµµ¸é ¹× ޹®Á¶»çµîÀ» ÅëÇÏ¿© Ç¥ÁØÀû ÀÌ¿ë»óȲÀ» ±âÁØÇÏ¿´À½.

- º»°ÇÀº Æò°¡¸í·É¼­ ¹× µî±â»çÇ×ÀüºÎÁõ¸í¼­, ÁýÇÕ°ÇÃ๰´ëÀå»ó "±×¸°ÆÄÅ© Á¦1µ¿"À¸·Î µîÀçµÇ¾î ÀÖÀ¸³ª, ÇöÀåÁ¶»ç°á°ú ¿Üº®Àº "5µ¿"À¸·Î Ç¥±âµÇ¾î ÀÖÀ¸¸ç, ÀÎÁ¢ÇÊÁöÀÇ "±×¸°ÆÄÅ©"´ÜÁö ³»¿¡´Â 11°³µ¿ÀÌ ¼ÒÀçÇϳª, °¢ µ¿ÀÇ ¿Üº®Ç¥±â»ó µ¿¸íΰú °øºÎ»ó µ¿¸íĪÀÌ ÀÏÄ¡ÇÏÁö ¾Ê´Â °ÍÀ¸·Î ÆÄ¾ÇµÇ¸ç ³²°î¸® 339¹øÁö¿¡´Â º»°Ç 1°³µ¿¸¸ÀÌ ¼ÒÀçÇÏ´Â ¹Ù, °æ¸ÅÁøÇà½Ã ÀçÈ®ÀÎÇϽñ⠹ٶ÷.


Âü°í
»çÇ×
1. °øºÎ»ó '±×¸°ÆÄÅ© Á¦1µ¿'À¸·Î µîÀçµÇ¾î ÀÖÀ¸³ª ¿Üº®Àº '5µ¿'À¸·Î Ç¥±â µÇ¾î ÀÖÀ¸¸ç, ³²°î¸® 339¹øÁö¿¡´Â ÀÌ »ç°Ç °Ç¹° 1°³µ¿¸¸ ¼ÒÀç ÇÔ. 2. ÁÖÅÃÀÓÂ÷±ÇÀÇ ½Â°èÀÎÀÎ ÁÖÅõµ½Ãº¸Áõ°ø»ç°¡ ´ëÇ×·Â Æ÷±â ¹× ÀÓÂ÷±Çµî±â ¸»¼Ò µ¿ÀǼ­ Á¦Ãâ(2023.10.24.È®¾à¼­)
- º»°Ç ºÎµ¿»êÀº °øµ¿ÁÖÅÃÀ¸·Î ÇöȲÀº ¿Ü°ü»ó ºÎµ¿»êÀÇ Ç¥½Ã¿Í ÀÏÄ¡ÇÏ´Â °ÍÀ¸·Î º¸ÀÓ. - º»°Ç ºÎµ¿»êÇ¥½Ã´Â `±×¸°ÆÄÅ© 1µ¿`À¸·Î µÇ¾îÀÖÀ¸³ª ½ÇÁ¦ °Ç¹°ÀÇ ¿Üº®¿¡´Â `±×¸°ÆÄÅ© 5µ¿`À¸·Î Ç¥±âµÇ¾î ÀÖ°í ÀÎÁ¢ °Ç¹°(³²°î¸® 340-1, µµ·Î¸íÁÖ¼Ò ³²°î·Î 113)ÀÇ ¿Üº®¿¡ `±×¸°ÆÄÅ© 1µ¿`À¸·Î Ç¥±âµÇ¾î ÀÖ¾î ÁýÇÕ°ÇÃ๰´ëÀåÀ» ¹ß±Þ¹Þ¾Æ È®ÀÎÇØº» °á°ú ¿Üº®¿¡ Ç¥±âµÈ `5µ¿`Ç¥±â´Â °øºÎ¿Í ´Ù¸¥°ÍÀ¸·Î º¸ÀÓ.

°ÇÃ๰ÇöȲ

¼ÒÀçÁö °æ±âµµ ¿ëÀνà óÀα¸ ¾çÁö¸é ³²°î¸® 339¹øÁö
´ëÁö¸éÀû 531§³
(160.91Æò)
¿¬¸éÀû 497.46§³
(150.75Æò)
°ÇÃà¸éÀû 179.395§³
(54.36Æò)
¿ëÀû·ü»êÁ¤
¿¬¸éÀû
497.46§³
(150.75Æò)
°ÇÆóÀ² 33.78% ¿ëÀû·ü 93.68%
Áö»óÃþ¼ö 4Ãþ ÁöÇÏÃþ¼ö  
ÁÖ¿ëµµ °øµ¿ÁÖÅà ±¸Á¶ ö±ÙÄÜÅ©¸®Æ®±¸Á¶
Âø°øÀÏÀÚ 2018.10.24 »ç¿ë½ÂÀÎÀÏÀÚ 2019.05.10
°ÇÃ๰Ãþº°ÇöȲ [º¸±â]


µî±âºÎµîº» ¿ä¾à(°Ç¹°)

  Á¢¼öÀÏÀÚ µî±â¸ñÀû/±Ç¸®ÀÚ ±Ç¸®±Ý¾× ±âÁØ
1
¼ÒÀ¯±Ç
±ÇOO
¼Ò¸ê
2 2022³â4¿ù4ÀÏ
¾Ð·ù
±¹
¼Ò¸ê±âÁØ
3 2022³â7¿ù20ÀÏ
ÀÓÂ÷±Ç¼³Á¤
¹éOO
210,000,000 ¼Ò¸ê
4 2022³â9¿ù20ÀÏ
°¡¾Ð·ù
ÁÖOOOO
2,071,000,000 ¼Ò¸ê
5 2023³â4¿ù20ÀÏ
°­Á¦°æ¸Å
ÁÖOOOO
¼Ò¸ê

ÀÓÂ÷ÀÎÇöȲ (¹è´ç¿ä±¸Á¾±âÀÏ: 2023-07-04)

ÀÓÂ÷ÀÎ ¿ëµµ/Á¡À¯ º¸Áõ±Ý/¿ù¼¼ ´ëÇ×·Â
ÀüÀÔÀÏ/È®Á¤ÀÏ ¹è´ç¿ä±¸ ºñ°í
¹éOO 210,000,000
O
2020.7.10.
2020.6.22.
 
ÁÖOOOOOOOOOOOOOOOOO 301È£ 210,000,000
O
2020.07.10.
2020.06.22.
2023.06.29  
ºñ°í
(¸Å°¢¹°°Ç
¸í¼¼¼­)

¿©ÀÇÁÖ°æ¸Å Á¶¾ð ÇÑ ¸¶µð

¼±¼øÀ§ ÀÓÂ÷±Çµî±â°¡ µÇ¾î ÀÖ½À´Ï´Ù
´ëÇ×·ÂÀÌ ÀÖ´Â ¼±¼øÀ§ ÀÓÂ÷±Çµî±â ±Ç¸®ÀÚ°¡ ¹è´çÀ» Àü¾× ¹ÞÁö ¸øÇÒ °æ¿ì ³«ÂûÀÚ°¡ ÀÜ¿© º¸Áõ±ÝÀ» ÀμöÇØ¾ßÇÏ´Â °æ¿ìµµ ÀÖ½À´Ï´Ù.

ÁÖÀÇ»çÇ× (ÃÖ¼±¼øÀ§ ¼³Á¤ÀÏ: 2022. 4. 4. ¾Ð·ù)

¸Å°¢À¸·Î ¼Ò¸êµÇÁö ¾Ê´Â µî±âºÎ±Ç¸®: ÇØ´ç»çÇ× ¾øÀ½
¸Å°¢À¸·Î ¼³Á¤µÈ °ÍÀ¸·Î º¸´Â Áö»ó±Ç: ÇØ´ç»çÇ× ¾øÀ½
1. °øºÎ»ó '±×¸°ÆÄÅ© Á¦1µ¿'À¸·Î µîÀçµÇ¾î ÀÖÀ¸³ª ¿Üº®Àº '5µ¿'À¸·Î Ç¥±â µÇ¾î ÀÖÀ¸¸ç, ³²°î¸® 339¹øÁö¿¡´Â ÀÌ »ç°Ç °Ç¹° 1°³µ¿¸¸ ¼ÒÀç ÇÔ. 2. ÁÖÅÃÀÓÂ÷±ÇÀÇ ½Â°èÀÎÀÎ ÁÖÅõµ½Ãº¸Áõ°ø»ç°¡ ´ëÇ×·Â Æ÷±â ¹× ÀÓÂ÷±Çµî±â ¸»¼Ò µ¿ÀǼ­ Á¦Ãâ(2023.10.24.È®¾à¼­)
¡Ø¹Ì³³°ü¸®ºñ(°ø¿ë) Àμö¿©ºÎ¸¦ ÀÔÂû Àü¿¡ È®ÀÎÇϽñ⠹ٶø´Ï´Ù

 

Áö¿ªºÐ¼®

ÁöÇÏö¸í Á÷¼±°Å¸®

Çб³¸í ÀüÈ­¹øÈ£ ÁÖ¼Ò Á÷¼±°Å¸®

¹ý¿ø

¼ö¿øÁö¹æ¹ý¿ø (165-12)°æ±âµµ ¼ö¿ø½Ã ¿µÅ뱸 ¹ýÁ¶·Î 105, Çϵ¿, ¼ö¿ø¹ý¿øÁ¾ÇÕû»ç
´ëÇ¥ : 031)210-1114, ¾ß°£ : 031)210-1111
°üÇÒÁö¿ª : ¼ö¿ø½Ã, ¿À»ê½Ã, È­¼º½Ã, ¿ëÀνÃ

µî±â¼Ò ¼ö¿øÁö¹æ¹ý¿ø º»¿ø ¿ëÀεî±â¼Ò (´ëÇ¥:1544-0773, ÆÑ½º:(031)321-3919, °æ±âµµ ¿ëÀνà óÀα¸ ¼º»ê·Î 7 (¿ªºÏµ¿ 391-28))
¼¼¹«¼­ ¿ëÀμ¼¹«¼­ (´ëÇ¥:031-329-22, ÆÑ½º:031-329-2328, °æ±âµµ ¿ëÀνà óÀα¸ Áߺδë·Î1161¹ø±æ 71 (»ï°¡µ¿))

Àαٳ«ÂûÅë°è

±â°£ ¸Å°¢°Ç¼ö Æò±Õ°¨Á¤°¡
Æò±Õ¸Å°¢°¡
¸Å°¢°¡À²
Æò±ÕÀ¯Âû¼ö
3°³¿ù 2°Ç 164,500,000¿ø
105,360,000¿ø
64%
1.5ȸ
6°³¿ù 3°Ç 183,333,333¿ø
132,296,667¿ø
70%
1.3ȸ
12°³¿ù 4°Ç 202,000,000¿ø
144,622,500¿ø
70%
1.3ȸ


º» °æ¸ÅÁ¤º¸´Â ¹ý¿øÀÚ·á¿Í ÀÏÄ¡Çϵµ·Ï ÇÏ¿´À¸³ª ±Ç¸®»çÇ׺¯µ¿, ÀÔ·ÂÂø¿À µîÀÇ ¿øÀÎÀ¸·Î »ç½Ç°ú ´Ù¸¦ ¼ö ÀÖ½À´Ï´Ù. ÀÌ¿ë¾à°ü¿¡ ÀǰЏéÃ¥Á¶°ÇÀ¸·Î Á¦°øµÊÀ» ¾Ë¸®¸ç, °æ¸ÅÀÔÂû½Ã ¹Ýµå½Ã °ü·Ã °øºÎ¸¦ ÀçÈ®ÀÎÇϽñ⠹ٶø´Ï´Ù. º¸´Ù Æí¸®ÇÑ °æ¸ÅÁ¤º¸ Á¦°øÀ» À§ÇØ Áö¼ÓÀûÀ¸·Î °³¼±ÇϰڽÀ´Ï´Ù. ÀÌ¿ëÇØ Áּż­ °¨»çÇÕ´Ï´Ù.